说在前面~本套房是loft户型,屋主是位留学回来的小姐姐,还有一条可爱的狗狗。 奶呼呼的温暖小屋,一人一宠简单生活,对生活比较有仪式感。

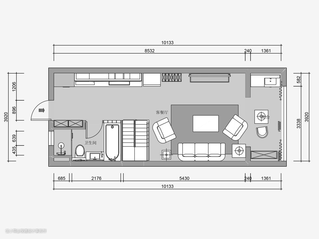
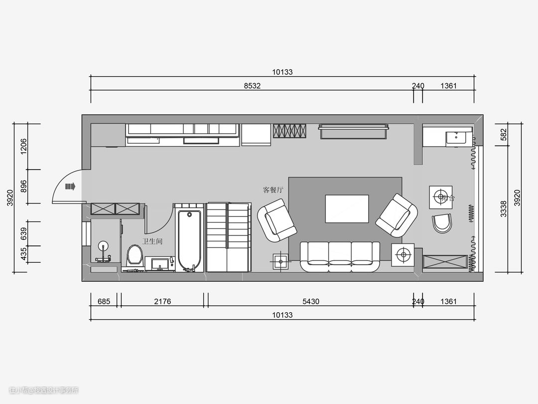
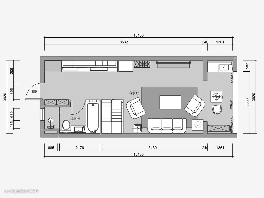
▲ 一楼空间平面图 ⒈ 一楼主要为活动开放空间,入户左侧为开放式厨房区域 ⒉右侧为卫生间,卫生间设计淋浴与浴缸兼具 ⒊楼梯采用的U型,楼梯下方空间可用于宠物区和储物空间 ⒋客厅与阳台无移门隔断,打通空间的界定

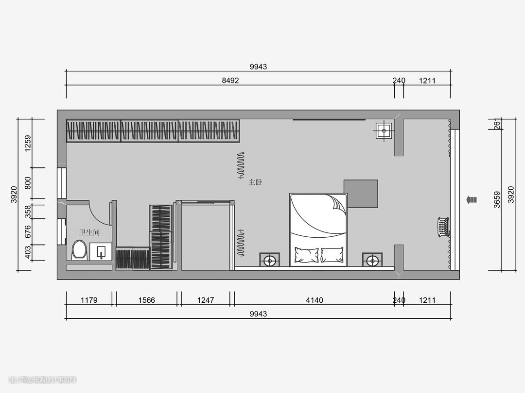
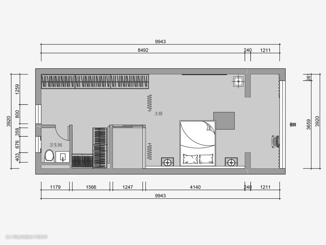
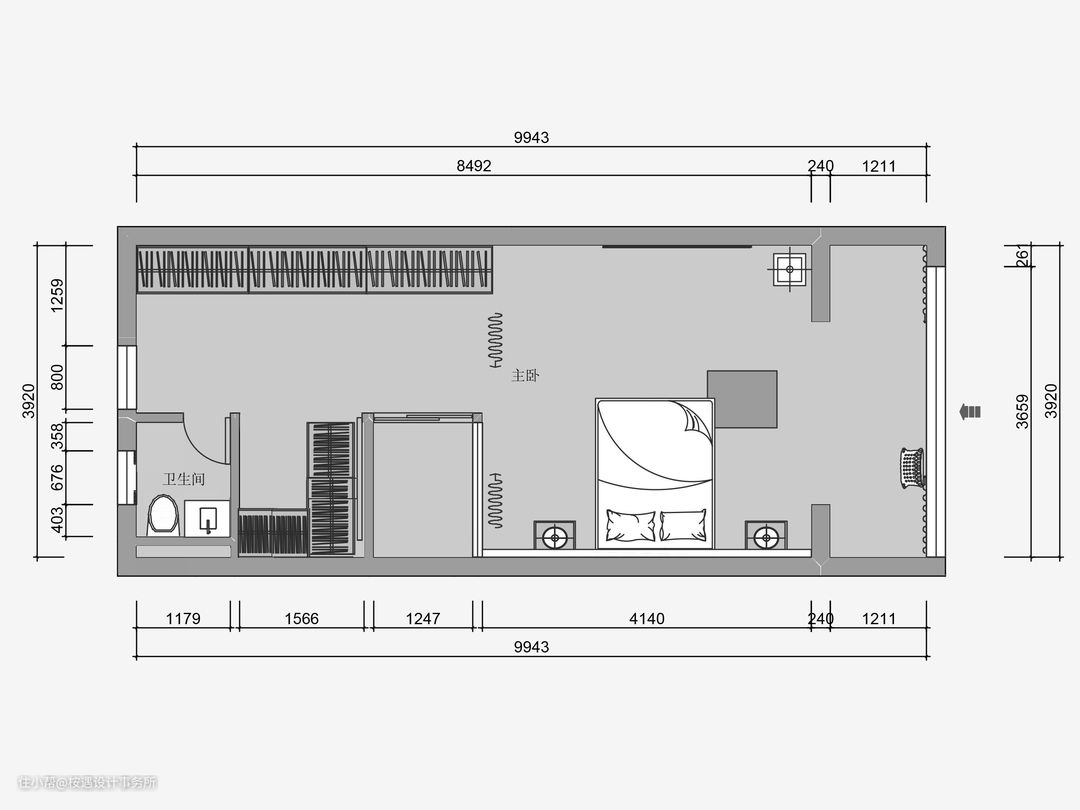
▲ 二楼空间平面图 ⒈ 二楼设计超大收纳衣帽间,满足储物需要 ⒉二楼独立卫生间,方便休息时使用 ⒊家具多为活动家具,方便后期空间更改
有限的空间内做好收纳和楼梯的摆放。考虑整体的利用率,全封楼板无挑空空间。

入户玄关,右侧这里被设计顶天立地的玄关柜,可用于置物换鞋等,储物空间充足。 柜子中间预留开放格,方便顺手放置钥匙包包等,上下柜子选用无把手白色门板,封闭的门板保证一定私密性,同时具有美感和线条感。 #玄关#置物架

业主厨房使用频率相对较少,油烟较小。与设计师沟通后采用了开放厨房的设计。 这样设计可以让整个采光更加通透,业主表示这样做饭也不至于大汗淋漓了,清清爽爽制作美食,美哉!

厨房整体遵循通体白色的原则,规划合理地储物分区。厨房台面右侧安排冰箱区域,整体的操作动线非常清晰。


卫生间区域,在设计的过程中,讨论的比较多。选择浴缸还是淋浴? 业主表示喜欢就都安排进去!于是便有了现在的效果,浴室左边是浴缸,右侧则是淋浴空间。

淋浴和沐浴空间互不干扰,虽然舍弃了一定的干湿分离,但是功能齐全。 整个浴室通铺奶茶色系墙地一体大砖,整体统一又极具风格性,非常出片。这样的浴室一定能帮你带走工作的疲惫,治愈心灵。

大家都会面临这样的选择,在空间不足时只能二选一。我们在设计规划时就可以根据实际情况去有所取舍。

客厅空间设计时预留了很多空间给到可活动家具,以便业主后期可以有灵活的改动。客厅整体选用奶白色+原木色系搭配,轻硬装重软装。 无主灯的设计,通体全封楼板+无挑空+无石膏线+射灯补光。在视觉上可以放大空间,让空间更加立体,搭配合适的氛围灯,后期可以调节不同的环境氛围。 #无踢脚线#无主灯设计

客厅家具选择奶白色云朵沙发,搭配几何设计感茶几。氛围灯选用白色草裙落地灯,曲线设计柔和了整个空间。 #奶油风家具#氛围灯

业主家有一只可爱的拉布拉多,借用楼梯下方的空间做了一个狗窝,小朋友也有自己的新家啦! 狗窝采用圆拱门造型,奶呼呼的太适合狗狗啦~ #狗窝#宠物空间设计

考虑到业主家狗狗属于大型犬,制作的比较宽敞。尺寸宽度达到了87厘米,狗窝内最大高度可达144厘米,这样进去打扫也比较方便。整体底面通铺地板,墙面同客厅乳胶漆颜色。

观影采用三星画境电视,丢掉传统背景墙,可移动的电视可太香了,高级感瞬间拉满。奶白色洞洞柜,是收纳柜,也是艺术画框,提升整个空间搭配的质感。 #高级感装饰 #三星画境电视 #洞洞柜

阳台与客厅之间去掉了推拉门,打通空间的连接,做成了开放式拱形门造型。由于左侧部分墙体为承重墙,无法拆除,只能将右侧做门洞,开放后整体的采光效果得到很好的提升。

阳台隔出一个洗衣烘干区,晾晒洗衣都十分的方便,有了一个很好的归置,整洁统一。

楼梯设计为U型折角楼梯,采用原木色踏步面板+超白玻璃+奶白色立板涂面。搭配奶油风家居,整体十分的清爽整洁。 #超白玻璃 #原木地板


二楼空间规划上只设计了一个卧室+衣帽间+卫生间。这样的设计是基于业主的常驻人口并不需要预留多余的空间。

衣帽间采用的依旧是延续式拱形门元素,内部采用的是金属架结构,收纳空间强大,又十分的稳固,环保与实用兼顾。门帘采用的软隔断,后期还可以根据自己的心情去替换。小tips:如果是可拉平的白色布面,甚至可以之间用于投影仪幕布哦~

更符合业主生活实用的角度出发,将衣帽间一侧的空间留出。之后业主需要设置成休闲区,或者运动有氧区都是可以的,属于一个自由发挥的空间~
二楼卫生间空间较小,设计了迷你台盆和马桶,空间较小,只是为了方便的使用需求,免去了上下楼的麻烦。

卧室的设计化繁为简,遵循断舍离的生活理念。一床一桌一椅,给家做减法,为心情做加法。



越是纯粹越是舒适~午后阳光可以毫无保留的照射进来,你可以和狗狗肆意的打滚玩耍~


△ 业主与设计师的新家毕业照 喜欢本案例的小伙伴点赞收藏哦~
