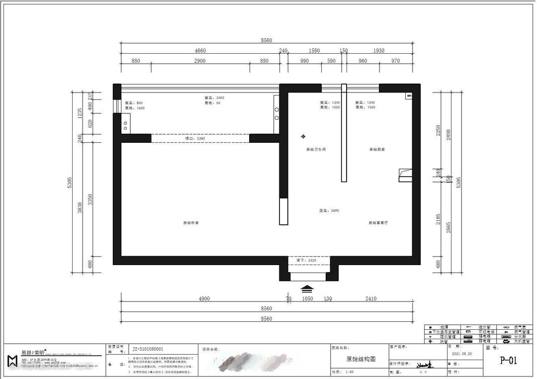
(一)原始户型 1.户型情况概述: 小户型设计的一大特点是面积小、需求多,不管老房、新房,原有布局很少有能满足主人家生活习惯的,很多人一听到小户型,就觉得可能会是一种局促的生活状态,十分拥挤,空间不够用,但是其实可以通过合理的优化布局来改变整体的视觉性,无论是大户型还是小户型。

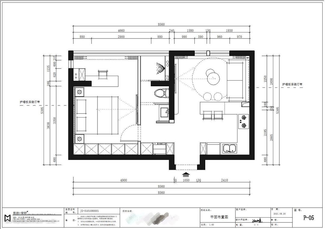
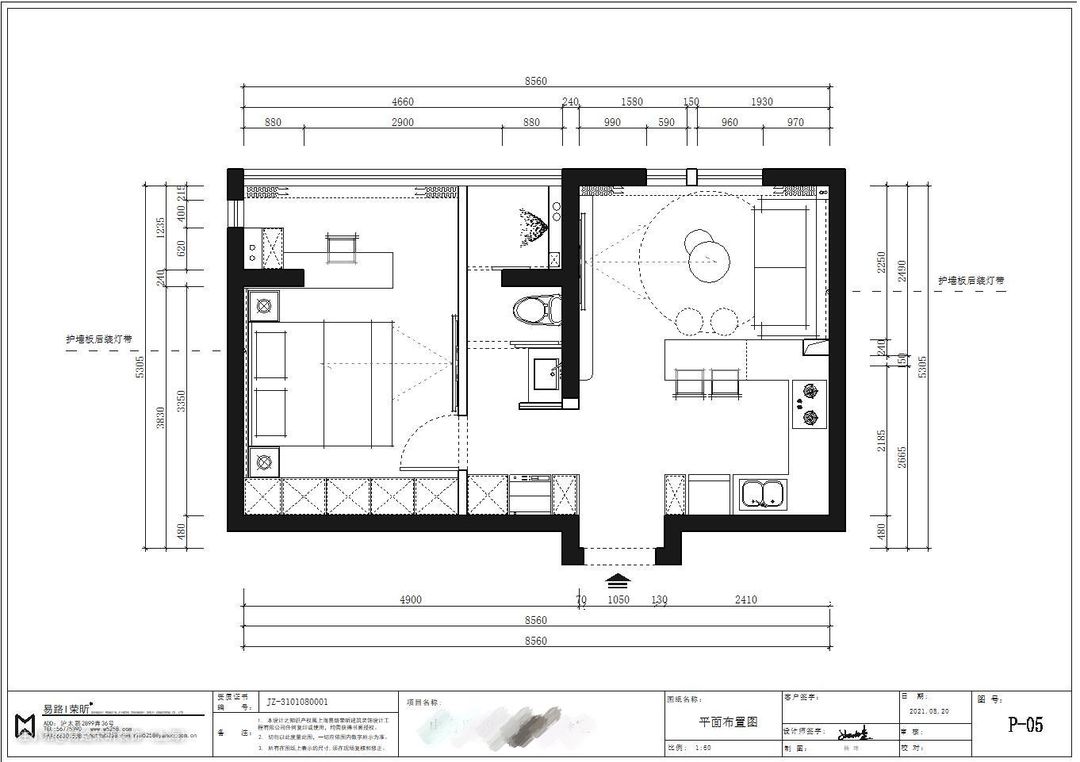
2.问题分析及诉求 (1)原始格局中,厨卫空间靠里,挤压了客餐厅空间并且进门视角凌乱; (2)对餐厅需求是想打造一个吧台式餐台解决二人的就餐需求; (3)原始卫生间无法干湿分离给使用带来诸多不便; (4)原始卧室空间过大,空间浪费不知如何利用。

(二)设计理念 (1)将原始格局打破重新规划,把卫生间及厨房搬移,而原先的厨卫空间改为客餐厅,利用卧室多余的空间辟出给卫生间使用,将阳台1/4规划给淋浴房,这样光线及通风问题都得到了很好的解决; (2)厨房改至原先客厅空间形成开放式厨房,利用吧台中岛自然分割客厅与厨房,就餐区域自然形成,且位置及动线合理,空间通透,并且进门视角开阔清爽; (3)卫生间转移,不仅实现干湿分离,更在过道一边设计储物柜增加储物能力,缩短动线又能保护隐私;

对于忙碌的现代人来说,能够有一个可以真正放松身心的空间,就非常的重要和珍贵,夫妻二人享受闲暇的周末时光,所以对格局需求相对较高,平时做饭频率不高但是希望有质感的用餐体验。

姚老师风格上以简约现代风为主,在灰色调的空间基础,辅以些许原木色增添温馨恬静的氛围,灰色系与木色系的家装碰撞,擦出了不一样的火花,以不失质感的设计,整体呈现安静舒适让人感觉惬意。

客厅无主灯设计,整体空间清爽明亮,大面积的窗户可以营造良好的采光,提升空间明亮度,达到扩大的视觉效果,虽然不大,但还是做了完整的沙发+茶几+电视柜的传统格局。

原木色和灰色是简约风经典搭配,沙发背景墙运用了乳胶漆+半墙木板设计,增加墙面空间的立体感;而对面电视背景同样灰色乳胶漆墙面,挂上液晶电视,再配上一张电视地柜,简洁干净。

屋主摆放的花饰和各种玩偶公仔,显得可爱又童趣十足,让家充满生机和活力,衬托出温馨的氛围,同时增添一丝俏皮趣味。


跟绝大多数小户型一样,房间大、客厅小,客厅即是所谓的饭厅,因为除了放张饭桌外,再想摆张沙发是比较困难的了,我们的设计师对此重新进行功能区域划分,将原先的厨卫空间改为客餐厨一体设计,以开放式的厨房连结餐客厅区域,玄关进入后就会看到这个开放的空间,简单却合理地利用了小户型的缺陷,化弊为利。

用吧台在厨房和客厅之间进行隔断,即能当餐桌同时在下厨的时候,料理台放不下的东西,还能放在吧台上,一个吧台三种用处,整体空间的动线也更加合理。

厨房色调:灰色+原木色。墙地面选择灰色瓷砖,厨房用品和电器主要选择深色系,橱柜以灰色地柜与木色吊柜搭配,简单又不失质感,免拉手柜门设计便于卫生清洁,置物架存放各种调味品和小电器,也符合屋主追求的大方简洁,灶台高度和水槽高度一定要做成高低台面,非常舒适。

厨房是家里最重要的中心,装修布置好真的能提升幸福感,好看的装修加上合理的收纳,小户型也能拥有超好看的开放式厨房。

卧室以灰色与木色作为主基调,墙面选用了灰色的乳胶漆,床头背景采用衣柜+床头柜组合式,一半灰色,一半原木色,成为卧室设计的点睛之笔,简约却富有层次。

浑然一体的衣柜里侧中间开架留空并延伸至悬空床头柜做一体设计,与背景墙完美融合,让木饰面的造型感更加丰富,装饰性更强,满足床头收纳需求的同时也增加了卧室收纳空间。

可爱的Q版情侣装饰画+大大小小的卡通玩偶公仔既是玩具也是房间的装饰品!太萌了!


灰色系与木色系的家装碰撞,擦出了不一样的火花,一贯低调和简单的风格,以不失质感的设计给人带来高贵宁静的视觉感受,它的颜你get到了嘛?

走廊对面就是卫生间了,设计功能丝毫不输!原本卫生间不足3㎡,储物空间基本没有,改造后实现了三分离,洗漱、如厕、洗澡都在独立空间,三个空间、三个功能使用互不影响,空间布局功能性划分清晰。

洗漱区采用半墙+长虹玻璃设计,既保持私密性,又增加透光效果,壁挂浴室柜加上镜柜能收纳不少东西;

独立马桶区利用黑边磨砂玻璃移门隔断,既好看而且透光不透人!利用原有阳台部分空间,被改造出了独立淋浴区,采用平推门设计。

卫生间地面铺设防滑的仿古砖 ,墙面洗漱区与如厕区暖灰色的釉面砖,简洁耐看,而淋浴区墙面则搭配清新绿的艺术砖,清爽又有质感。


当空间受限时,可以把目光投向阳台,打通卧室阳台,空间变大不少,利用阳台垭口设计L型悬空书桌+收纳,清理卫生方便省事;一侧打造一组置物架和地柜,像手办、书籍、工具等都可以收纳在这里了,对于小面积卧室来说,简直不要太合适,空间物尽其用,打造强大的功能性。

姚海堂,上海市装饰装修行业协会注册室内设计师,从业九年, 毕业于西南交通大学,擅长简欧,现代简约,北欧等风格, 现任易路荣昕首席设计师, 秉承用心观察生活,感悟人生真谛,让设计与生活互动的设计理念, 设计案例众多为上百家庭设计温馨的家。
