位于盐田区的君临海域原本是商业楼,后改为商住一体,窗外山景海景应有尽有,与香港大埔区隔海相望。君临海域原为旧房,业主对于房内的改造十分注重敞亮和精致,对个体和单品也有着极高的品质追求。业主二人性格温和幽默,和本案设计师十分投缘,对设计师有着绝对的信任。原来房屋最大的问题是一望无际毫无起伏的大平顶,显得室内格外压抑,在本案的设计中,我们尽量保留不低于2.7米的层高,保留最大的窗外景及采光进入室内,并没有沿用常规户型格局区添加中岛,洄游动线等设计手法,而是最大程度考虑业主夫妇的实际居住情况,未来只是二人世界,所以四房改的两房,为女儿女婿的到来保留了一个套间。原始户型中问题最大的吊顶也在设计师精妙的设计中得到了解决。

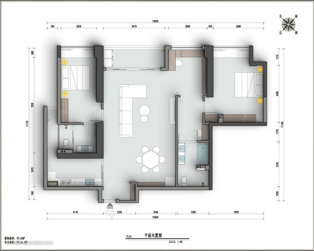
原始户型: ①入户门厅面积狭窄,不好利用,入户视野不开阔。 ②室内格局密集而拥挤,隔断过多,公共区域不够开阔。

改造后: ①将玄关处隔断拆除,新建墙体,增加收纳面积。 ②将客餐厅隔断拆除,新建墙体后移,增加客餐厅面积,视野更加开阔。 ③格局左右两侧为卧室设计,配套洗手间、书房,尽量减少隔断,增加自然采光的利用。

将空间还给空间,这是客厅的设计理念。因此我们没有选择过多的功能性设计,在这个海风能够惬意吹入的室内,享受才是其最大的功能。极简的设计,主题如大海般辽阔,不管是地面还是墙面都是一望无际。

电视背景没有利用电视柜,也没有利用护墙板,而是选择了质感与地砖相仿的艺术涂料进行修饰,基于业主“敞亮”的述求,尽量减少不必要的空间占用是重中之重。 客厅的色彩由墙面和地面承接,地面选择柔光砖,温润如玉的质感减少了传统瓷砖的冰冷属性,配上和煦微风,如此一般岁月静好。

客厅原本横梁众多,大平顶过于压抑,为了修饰横梁,增加顶部的开阔,设计两侧斜顶向上集中,才得以保留最低2.7米最高3.2米的原始层高。横梁周围内嵌灯带,再配合无主灯,满足了业主开阔、敞亮的需求。设计绝不是简单的拼凑,而是在无数细节之中精益求精的结果。

无沙发背景虽然似乎丧失了部分美感修饰,但是也使客厅更加轻盈和自由,家人在客厅之中自由环绕,动线灵活,空间与空间之间的连接也更加通畅直接。

低调百搭的浅灰色布艺沙发,舒适度至上,自然融入整体氛围,业主更注重在大气环境中的温情体验,于是选择了更加亲肤的材质,在传递温暖这一功能上,沙发可谓功不可没。

和传统的气派型室内设计不同的是,本案在设计上格外注重“轻”的质感,不论用材还是线条装饰,丝毫没有厚重,高品质的慢生活需要靠环境一步步养成。 餐厅也没有进行过度堆砌,餐桌椅和餐边柜构成餐厅这个小小世界。与客厅没有明显分割,貌离神合。

结合业主的生活习惯和喜好,平日生活形式十分简约的业主二人,收纳、水吧和酒柜能够包容一切所需。 餐边柜配色和桌椅一致,沉稳简约。玻璃酒柜中设计格间用于收藏酒水和茶具,一日三餐之余的修养身心,这里都是好去处。 圆桌亦有“团团圆圆”之意,接着用餐拉进彼此距离,没有什么比家人围坐共进佳肴更幸福快乐的事。

因为有足够的操作空间,所以厨房采用了一字型设计,橱柜通体白色,结合超晶板,散发瓷器的光泽。墙面选择大砖上墙的方式,自然通透。

经典黑白配色,高雅时尚,水槽处安装了直饮净水器,厨房和餐厅动线简短,取水也十分便捷。

开放式设计,书房拥有极大包容性。因为平日业主二人居住,更注重书房使用的宽松舒适体验,没有设计隔断,书房的位置,出入客厅和卧室,动线都无比流畅。 在外也能直面书架,何尝不是一处新景。

古色古香便是书房的氛围,不管是书架还是书桌,都选择更加天然质朴的材料。书桌架于窗台之上,抬眼便能望见近处的海,远处的山,那怕不是阅读和工作,这里也能成为一个流连忘返之地。

书房往内是主卧和主卫,门洞设计为拱门,减缓原本直角带来的生硬,也具有拉高门洞视觉效果的作用。

家中已有太多休闲享受的角落,主卧的设计主要以实用精简为主。床体和衣柜都选择了尊贵的祖母绿色系,衣柜挂衣区外露,为的是方便日常更衣的使用。

没有利用更多设计去阻挡优秀的自然采光,在这样的风光之下,谁能不感叹一句,此处风景独好。

次卧主要供偶尔回来居住的女儿女婿使用,更注重基础功能。舒适宽阔的硬包床体,容量丰富的衣柜,衣柜下方用于放置行李,家人的关爱在细节之中无处不在。

双台盆对于作息同步的夫妻来说,属实是增加幸福感的一大设计。复古的智能镜面和跳脱的浴室柜门,新颖独特。墙排浴室柜,卫生无死角。 台盆后方利用格局优势设计浴缸,嵌入墙内,拥有比独立浴缸更少的清洁压力。

作为次卧配套的次卫,舒适度依然最被看重。超大圆镜和面积充足的台面,配合浴室柜一起承载卫生间收纳。干湿分离设计,透明玻璃推拉门隔绝水汽,智能马桶自动开合,不用担心淋浴时会被淋湿。
