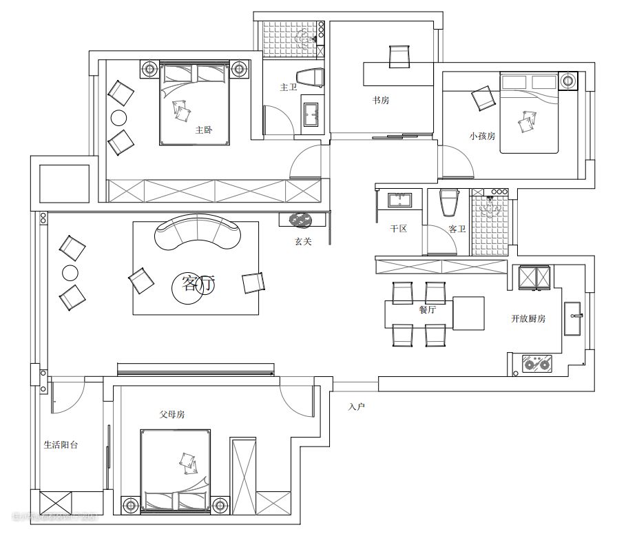
本屋案例的业主赵先生为临平本地人,平时和妻子两人居住,是个体经营户,爱好电竞游戏,所以对于新家的期望一定要有一间属于自己的电竞房,个人偏向无主灯和冷色调的家。 . 现代的风格里,黑白和米色是这里的主角,客餐厅和厨房被连结为一个开放空间,创造了一种宽敞的感觉,足够的舒适。

户型分析: 1.书房改造,原电竞房窗户太小,窗户朝北,没采光,通风也不好; 2.入户即是客餐厅,缺少日常收纳空间; 3.因为是在4楼,采光通风都不是很好;

户型改造: 1.先改造把整面墙打通,做吊轨移门,增加采光,通风; 2.在沙发背景墙放置一个玄关柜,搭配上装饰画,美观实用; 3..现在将原阳台与客厅打通,厨房不做移门,增加客厅采光,做到南北通透;

客厅中硬装多用米色和黑色,简洁干净,让人由衷地感受到优雅和品质的分量。


整体没有考虑设计主灯,而是在中央设置射灯,并搭配磁吸轨道灯、格栅灯,散光灯,格栅折叠灯等灯具,在做到点对点照明的同时,完美拉伸了整体视线,打造一种柔和温馨的氛围,也不会因为主灯的存在,从视觉上压低客厅层高的压抑感。


电视背景墙线条感十足,回字形设计整个空间视觉感受平整舒适,白色柜体配合着黑色格栅,经典cp永不过时,地柜采用了大理石材质,让电视背景墙的层次更分明,也使空间更有年轻和活力。


瓷砖地面搭配做旧灰色沙发和木质薄面茶几,米黄色背景墙削弱了灰色的清冷感,克莱因蓝懒人沙发为空间划出温柔的弧线,圆滚滚的玩偶抱枕灵动十足。



瓷砖地面搭配做旧灰色沙发和木质薄面茶几,米黄色背景墙削弱了灰色的清冷感,克莱因蓝懒人沙发为空间划出温柔的弧线,圆滚滚的玩偶抱枕灵动十足。



在蓝色背景下沙放置斑马纹边柜,莫兰迪橙的小猫装饰画和小人摆件点缀其中,整体构图和配色都十分讲究,各种物体几何轮廓多元、自由,打造摩登时尚的独特氛围。

餐厅区中央是方正餐桌和四人白色餐椅,与客厅形成洄游动线,设计师选用了客厅同色的蓝色背景墙,与白色的餐椅很搭,让每天的就餐时光都有了情调。


整墙的餐边柜上部分装了透明玻璃柜门,精美好酒和高脚杯完完全全展现在大家面前,加上白色灯带,瞬间提亮了空间。

不装门的开放式厨房,空间视野开阔,光线通透,更好地衔接到整个家的风格,灰白色柜体保持极佳的质感,厨房的收纳小技巧很值得我们学习,不常用的瓶瓶罐罐可以暂时放在集成灶上,真的超级节约空间,也维持了很好的空间秩序。



在卧室的设计中,米色与蓝色作为空间的主色调,大面积清爽的米色,浅色的空间渲染,静谧的美感不需刻意营造就悄然呈现到我们面前,也让温暖从脚下开始,打造温馨舒适的休息空间。

床尾增设了办公区,可沐浴在阳光下,翻阅书籍,亦或者在睡前小酌一杯促进睡眠。



内包阳台可以让次卧拥有足够的自然光线,保证室内充足的阳光,白色背景墙围绕着米色床品,营造干练舒适的空间感,无主灯的设计对于卧室来说也是非常有优势,避开了强光的晃眼,搭配床头两侧的线型吊灯,温馨的氛围感呼之欲出。


集游戏、展示、休息于一体电竞房你见过吗?将原本的书房设计成电竞房,是家中一处能完全放松的空间,空间以紫色系的风格为主色调,霓虹的灯光营造出科技感十足的氛围,墙上铺贴各种游戏角色海报,简直就是电竞爱好者的梦中情房!


半包围书桌设计并肩开黑不会觉得空间拥挤,桌面上除了电脑,放耳机、手办再合适不过。


卫生间空间相对有限,但依旧实现了基础的三分离,墙地一体的通铺砖,让空间更显干净整洁,镜柜+悬空置物架的配置,洗漱台区域收纳进一步拉满,里侧则是马桶区及洗浴区,靠墙置物架的设计,一些随身物品及洗浴用具都能妥善安放。
都都装饰-梦想家套餐
