本案的地理位置极佳,位于城市的边缘,从卧室便可以望见山峰连绵,十分惬意。业主人到中年,事业有成,一家三代同堂,其乐融融。安家在此,便是希望给家人安稳幸福的生活。与很多人不同的是,主人喜欢看书、喜欢艺术,历经岁月的沉淀之后,希望自己的家能够有内涵、有文化的表达。接到这个项目后,设计师通过与主人的深度交流,设计出了这个新中式风格的家居,希望借此来表达主人对中国传统美学的热爱与致敬,同时也让这种安宁静谧的美学氛围放在家中当中。

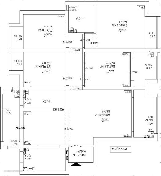
户型分析: 1、原住宅客厅与阳台之间有隔断门,需要优化 2、原儿童房空间较小,需要优化 3、原户型结构中儿童房与次卧室门对门,需要优化。

解决方案: 1、把原有的阳台隔断打掉,扩充了客厅面积,扩大了视野并将原有阳台区域放置钢琴和小茶台,很好的利用了空间。 2将原儿童房的飘窗小阳台纳入到室内,给儿童房增加了一个学习区域,靠墙位置还增加了一个储物柜。 3原住宅结构中儿童房与老人房门对门,将两扇门的开门位置错开,这样增加了生活的舒适度。
新中式风格的家居设计,通过线与面的结合,来营造空间的氛围感。客厅与阳台连同,窗外灿烂的阳光通过透明落地大窗照进房间来,让整个客厅更加明亮。

客厅吊顶以木线勾勒吊顶的框线,并以中式的纹样来强调空间的风格。新中式风格的沙发仍然兼顾了舒适性,浅灰色的布艺沙发以中式木框包裹,既有点睛之笔,又具备舒适度。

沙发背景墙采用定制中式风格护墙板加木格栅的设计,让居室充满新中式风格的浓郁氛围。云山雾绕的画面平添了东方美学的意韵,圆形的造型嵌入金色的山影画面,增添了明丽之感。

从客厅望向餐厅,目光所及,都是中式风格的元素,客厅与餐厅遥遥相望,顶面与墙面的中式设计元素均以方与圆来进行融合,形成一个极有韵致的新中式风格空间。餐厅和客厅之间做了一个隔断柜,既能储物又能装饰,用的传统榫卯结构制作,很是体现设计师的独到和用心。

电视背景采用对称的设计手法,大理石上墙纯净明朗,定制的中式造型框以圆形花鸟图置于其中,平添了东方美学的意境。阳台一侧的开放式展示柜则可以收纳主人的藏品,没有浪费空间的实用功能。

餐厅与生活阳台相连,通光且采光良好,从生活阳台可以眺望远山青翠。餐厨空间包括封闭式厨房,餐厅,以及定制半开放式餐边柜,色调上保持了新中式风格的沉稳,收纳功能也十分强大。

主卧室墙面采用浅咖色硬包与定制画相结合的设计,画面柔美静谧,与米色的软靠大床映衬,营造出一个舒适宁静的睡眠空间。

儿童房利用阳台空间在一侧设计出了一处供孩子学习的区域,另一侧则设计成到顶的储物柜,增加了实用性。睡眠空间用淡淡的绿色涂刷,营造出舒适的卧室氛围。

