屋主是一个做工程的包工头,有两个孩子,还有父母一起住,原本农村也盖了几百平方小洋房。为了孩子方便在城里读书,所以买了这套九十多平方的房子。 屋主大多时间在外地接工程,一两个月回来一次。因为老家离现在买房的地方不远,回来也一般是住在农村。因为做工程的原因,对现在这套房子设计还是有要求,希望装得简洁不容易过时,不想花太多钱。

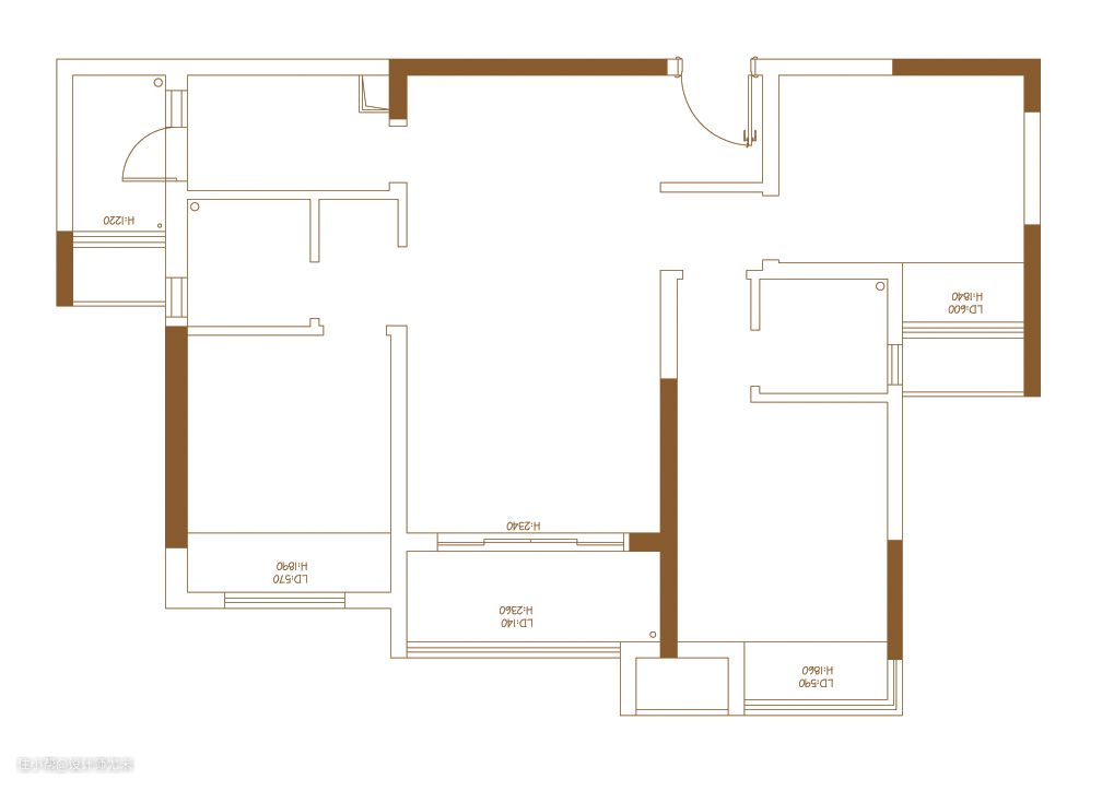
房子的原始结构有一些不合理的地方: ○ 入户玄关有一面墙,距离入户门只有1.1米,如果鞋柜做了之后就只有0.75米,离 门口太近,进门很难受,建议拆除。 ○ 原始客餐厅只有28平方,休闲阳台开发商做了推拉门,使原本不大的客餐厅看起来更小。 ○ 生活阳台在厨房,面积只有两个平方,太小使用很不方便。 ○ 厨房光线比较暗,地柜做完,操作台只有两米多,厨房太小,冰箱也没地方放。 ○ 卧室飘窗太占室内空间,除掉飘窗后,卧室只能摆下1.5米的床,床头柜都摆不下。

解决方案: ○ 将入户玄关处墙面全部拆除,后期直接做鞋柜当墙,做入户玄关。 ○ 把原来厨房单门改成双推滑门,扩大厨房门洞,把客厅光线导入厨房,解决光线暗的问题。 ○ 把生活阳台拆除改成厨房空间,扩大厨房操作台面,两三个人同时操作都没问题。 ○ 把次卫原来规划放浴室柜的位置拆除,把墙往次卧方向移,给厨房留冰箱位置。 ○ 全房做中央空调,保留一个空调位,把多余空调位拆除做收纳空间。 ○ 把飘窗全部拆除,扩大卧室空间。 ○ 拆除原始客厅推拉门,断桥铝封阳台,将晾晒区改到休闲阳台。 ○ 由于晾晒在休闲阳台,帮客户预留了独立的洗衣机,烘干机位置。后期大件衣物通过烘干机解决,小衣物用智能晾衣架晾晒,这样解决全部衣服挂在休闲阳台的尴尬。

通过以上多处的改造,比原始实用空间多了八个平方左右的使用空间。从目前房价8000/平方计算,帮客户多赚了64000元。

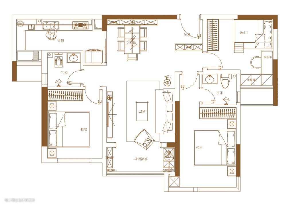
原来开发商安装的推拉门拆除后,客厅大了很多,生活动区更开阔舒适。

厨房门洞由原来的80厘米改成了现在160厘米,整个厨房的光线也好了很多,餐厅光线也好很多,空间更通透。

原来厨房到生活阳台的门窗拆除后,厨房操作台多了一米多,光线也好很多。

卧室飘窗拆除后,多出两个多平方可用空间,摆下1.8米的大床加两个床头柜,靠窗过道还有80厘米,主卧比之前更宽松舒适。

次卧室飘窗拆除后,也多出两个多平方可用空间,原来只放得下1.5米的床,现在也能摆下1.8米大床,靠窗过道还剩下55厘米。

儿童房飘窗拆除后,做了一个1.2米的大书桌和飘窗柜,原来只能做80厘米的书桌。
经过跟屋主的深入沟通后,选择现代简约加一点轻奢元素作为主风格。 原始客厅只有28个平方,客厅作为以后生活的主要活动区,太小会让人很压抑,于是把原来到休闲阳台的推拉门拆除,采用断桥铝封窗,把休闲阳台纳入到客厅。 客厅由原来的28平方变成现在的35平方,瞬间让整个客厅变得更开阔大气。 色彩选择暖色调,让整个家更温馨。

天花采用无主灯吊顶,由于做了中央空调,边上下吊了30厘米。 为不显压抑,中间满吊顶只下吊了8厘米,净空层高尺寸还有2.7米。 根据人体工程学原理,人在层高不低于2.4米的空间里面活动,不会显得压抑。

无主灯设计,光源选择比较重要。选用两条磁吸轨道灯作为主要光源。 中间做悬浮吊顶,暗藏灯带,灯带采用T5灯管,比普通灯珠灯带打光更均匀。 茶几上方采用三个深防眩筒灯,保护小孩视力。全屋灯具选择的是阳光照明品牌,这个品牌的灯具相对性价比高,全屋灯具9500元。 餐厅选择有机玻璃发光吊灯作为点缀,丰富整个空间。

墙面材质采用木饰面护墙板,沙发背景使用深咖护墙板,沙发选择淡一点的奶咖色,形成色彩明暗对比,突出沙发。沙发使用的是科技布材质,坐感舒适,易打理。 整屋采用的暖色系,窗帘、抱枕、茶几采用冷色蓝绿色,作为活跃整个空间的点缀色,让空间色彩不会显得单调。

电视背景使用的是仿天然石材爵士白的大板砖,与深色沙发背景形成材质和颜色的对比,空间更丰富耐看。由于预算考虑,这里没使用岩板,岩板的造价要高出两三倍,但同样达到岩板的视觉效果。

由于沙发背景使用的深胡桃色护墙板,所以使用白色为底色的装饰画提亮整个背景。

地面使用的是1500毫米*750毫米的抛釉大砖,贴好之后做了美缝,美缝的颜色比瓷砖颜色稍深,这样层次更分明,有些人以为美缝颜色要与瓷砖接近,其实这是误区,现在的瓷砖纹理全部是仿天然石材纹理,而且用的是乱纹砖,如果用接近的颜色会是整个地面显得很模糊,更不好看。

蓝绿色抱枕是奶咖色沙发的对比色,也是连接阳台与客厅的关键色彩元素,因为阳台窗帘使用的也是蓝绿色,形成阳台与客厅的相互呼应。
餐厅作为全家人就餐的地方,需要点仪式感,一束黄色的跳舞兰提升了整个餐厅的格调。

餐桌桌面使用的是岩板材质,桌腿是金色不锈钢金属材质。物主长期在外地工作,平时只有父母和两个小孩,用的长方形餐桌更方便使用,也更有现代感。 餐桌尺寸:1.6米X0.8米,材质:橡木加不锈钢材质。 餐吊灯尺寸:1.2米长,材质:铝合金加有机玻璃。

餐椅采用两种颜色搭配,材质使用科技布,坐感舒适,冬暖夏凉。

厨房门到餐厅预留了80厘米的过道,方便进出厨房。

原来厨房的单开门,改成现在的双门推拉门,这个角度空间通透感更强。 厨房推拉门尺寸:1.6米宽X2.1米高,门套尺寸:6厘米宽,材质:1.6毫米壁厚铝合金材质。

酒柜使用的是多层实木柜体,颗粒板柜门加铝框玻璃柜门,玻璃颜色选择灰玻。

餐吊灯外观简洁,光是从有机玻璃里面发出来的,灯体采用拉丝铝合金材质,看上去科技感比较强。 灯光亮度适中,即使对着灯看也不刺眼,对儿童视力有保护作用。

墙面奶咖色的木饰面与酒柜柜门颜色一样,统一了整个空间的色系,深胡桃色的柜体也丰富了整个空间的层次感。 全屋柜子是百信定制厂家定制,柜体色号:jie home C017,柜门色号:jie home C011。单价:750元/平方。

过道处一副蓝绿色的装饰画,其实是与沙发抱枕、茶几、窗帘颜色相呼应的颜色,也是调和整个空间的点睛之色。 装饰画是在网上淘的,尺寸:60厘米X60厘米,材质:油画布加实木黑框。 单价230元/副
厨房是油烟比较重的地方,在材质使用上面一定要考虑易打理清洁的材质。 厨房本身光线偏暗,所以墙面瓷砖选择爵士白亮面砖,铝扣板吊顶使用黑框亮面材质,橱柜门使用高光金刚门材质。

橱柜门的颜色选择根据客厅大体色调来确定,使用奶咖色与客厅墙面进行呼应。

油烟机使用的是方太。传统顶吸油烟机,方太的效果还是非常不错的。自带感应控制,如果手上沾水直接隔空横扫开启烟机,无需用手触摸按钮,这个功能特别方便实用。

灶具也是使用的方太,厨电选择方太更省心。

石英石台面使用大颗粒白色台面,其实这种台面比深色更耐脏。

橱柜地柜柜体是用瓷砖夹的,重庆这边大部分使用的是这种地柜。好处是不怕水,所以门也是使用的金刚门,铝合金材质。 在耐用方面,这种材质是最佳选择。 吊柜单价:700元/米,材质:多层实木柜体,铝合金金刚门。地柜单价:1100元/米,材质:瓷砖柜体,铝合金金刚门,总造价:11000元。

柜门使用奶咖色,颜色与客厅进行了呼应,让整个动区融为了一体。
卧室是一个需要放松的地方,床垫选择了上层5厘米的乳胶床垫,床头靠背选择的是科技布软绒靠背,窗帘采用90%遮光帘加一层白纱帘,晚上睡觉拉遮光帘,白天拉白纱帘。

沙发背景上的挂画有一些黄色,也是呼应了整个空间色系。

物主还未入住,床品暂时未配置,后期的床品色彩搭配也会根据现在的色系来搭配。

窗户旁边原本是一个空调位,做了中央空调后,把这个多余的空调位拆除了,由于这里有两根下水管,做了一个小柜。既把外露的下水管遮住了,又多了一个收纳柜,两全其美。

床头背景加了木格栅,三根0.8厘米的黑色铝合金条,增强了床头背景的线条感。

由于疫情影响,部分家具在成都未能及时发货,导致床头柜未及时到货。 衣柜采用的是1字型拉手,与床头背景的线条是相呼应的。 柜门采用一门到顶,床头柜位置的门分了两截做,下面放床头柜后固定不开,上面可正常开启。
次卧原本面积比较小,根本放不下1.8米的大床,把内飘窗拆除之后,刚好可以摆得下1.8米大床。 床头靠背也是选用科技布材质的软靠背,床垫选择上层5厘米乳胶垫。 天花没有做吊顶,做了一圈双眼皮。 双眼皮厚度:下面一层突出2公分,一块9厘的木工板。上面加一块10厘的石膏板,上面一层也是2公分,两层石膏板的厚度。这样走一圈后,整个天花更具立体感。

窗帘用了两个颜色撞色,窗帘的色彩也是对比色,这样的搭配让整个空间色彩更丰富更耐看。

床头背景与主卧室一样的设计,挂画选择也是根据整个空间的色系来考虑。

色彩搭配不能一味的在同一色系里面选择,适当选择对比色,让整个空间更灵动。

儿童房卡通人物,是小孩子的最爱,使整个空间更充满童趣。

因为屋主的孩子更喜欢蓝色,所以床头背景运用了天蓝色,让孩子充满想象力。 加上蓝色卡通的装饰画,让整个卧室更生动。

一门到顶的卧室门,其实只是在门头上加了一个门楣,这样更显大气。

床头背景是卧室的点睛之处,也不易过于繁复,简单的几根线条,合理的色彩搭配,会让整个空间更具想象力。 儿童房更是如此,天蓝色与奶咖色,又有对比,也有调和。

天花同样使用双眼皮,让整个空间更立体耐看。
卫生间比较小,所以没考虑做干湿分离。很多人喜欢在卫生间做壁龛,其实壁龛有一个缺点就是容易积水产生水渍,洗完澡要及时打理,万一忘记,水渍就形成了。 采用太空铝的挂件,既不会积水也很好打理。

马桶使用的是九牧虹吸式马桶,花洒也是九牧品牌,毕竟老品牌洁具品质都一直不错。

卫生间门使用的长虹玻璃,当初老板量门的时候,跟他说过一定要做极窄长虹玻璃,老板记住了长虹玻璃,却没记住极窄边框,后来做成了中窄边,效果也还好。

地面使用的是防滑砖,400*400的规格,卫生间地砖最大不能超过400*400,因为要走斜水坡,不然容易积水。
阳台封了断桥铝窗,把阳台纳入到客厅空间,整个客厅更大气舒适。

阳台两边都做了收纳柜,一边做了洗衣机加烘干机柜,提升整个阳台的颜值,屋主现在暂时未入住,所以电器暂时没有搬进来。

另外一边做了收纳柜,深度是40厘米,后期的梯子都可以放进去,一些大件的杂物也可以放进去,例如买一些备用的塑料凳子,客人多的时候拿出来使用。

写在最后 整个装修过程,就是一个信任的过程。屋主从陌生到完全的信任,也是设计师的人品征服。在这里要感谢屋主的完全信任,没有屋主的信任和配合,也很难打造出屋主喜欢,满意的效果。 其实装修房子选择设计师很关键,预算也很关键。前期把自己的预算跟设计师沟通好,后期设计师一定是根据预算合理的搭配整个空间的材料,设计出最理想的效果。 本案最出彩的一定是物主认可的木饰面护墙板,墙面材质非常重要,连接天与地,完善丰富整个空间的设计。奶咖色木饰面大面积使用,加上85根8厘宽黑色铝合金线条,让整个空间充满温馨又更具线条感。 无主灯的设计瞬间让整个空间更具时尚现代感,让整个空间更开阔舒适,很多人担心影响层高,其实比有主灯层高更显高。 无主灯设计要注意的是:前期选择好的轨道预埋,磁吸灯轨道的钱不要省,买到差的轨道,后期坏了需要拆吊顶。


吊顶尺寸图

经验问答 住小帮:装修花了多长时间? 尤米:四个月。 住小帮:整个装修过程中要注意什么? 住小帮:前期的设计布局一定要规划到位,避免后期的整改。 住小帮:说说最满意的地方? 尤米:1.建议物主做中央空调后,空间最大化利用。2.将晾晒区改到休闲阳台后,厨房改得更好用。3.全房使用木饰面,提升整体空间的品质感。 住小帮:有没有可提供给自装物主避坑的经验。尤米:自装的物主要注意装修的步骤,前期一定要先把设计做好之后才动工,不能盲目先动工,不然后期会很多返工。尤其是水电,前期一定要把水电先定位好,不然到了后期更改成本相当高。
设计师尤米主创介绍 二十一年从业经历,七百多套家装设计经验,擅长现代简约,轻奢,新中式风格。 住小帮全国TOP50设计师,住小帮软装设计合作设计师,住小帮直播频道干货主播。 每周五周六周日21:00—23:00直播
