楼盘地址:明昇壹城 户型面积:135㎡ 案例风格:现代简约

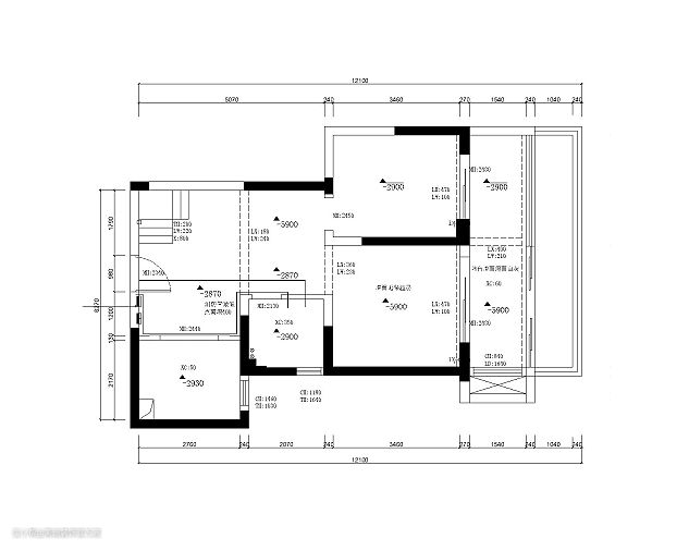
原始结构图

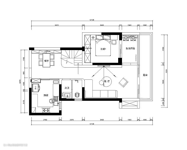
平面布置图 设计亮点: 根据业主需求,把原有进门楼梯改到房间中间,楼梯采用鱼肚白大理石铺贴,这样改进门的空间更加宽敞,餐厅位置跟厨房更近,将上二楼的动线缩短。白色大理石楼梯更突显质感。生活阳台改到对面客厅并与阳台打通,让空间更加宽敞。保留原有露台,没有封窗压抑视野更开阔。

白色的所蕴含的情感,是温暖与纯洁,本案空间都是以白色为主基调,加上室外光线与室内点光源的交织,呈现出一种纯色的高级质感。

客厅摒弃了传统的电视柜,而是通过大理石的地台设计,让整个背景墙面看起来更有层次感,也能满足客厅部分物件摆设放置的需求。

客厅浅灰色的大理石瓷砖铺贴,以及绿色的仙人掌盆栽,石与木的元素加入,让空间不至于冷酷,交流感更强。

餐厨空间在原有的结构基础上进行了扩大,满足了主人对电器摆放及使用的需求,而黑色的餐椅、餐桌、餐具,同客厅的黑色沙发一样,形成了颜色上的对立冲突。

楼梯扶手是由超白玻璃以及极窄的黑色包边组成,在视觉上形成冲突强烈的线条感,使得空间延展性更好,而全屋的摆件,都是以磨砂质感的黑色、或是黑色网格及波点元素组成,明暗交织之间,让空间氛围感更浓郁。

阳台区域将客厅及卧室连接在一起,空间十分充裕,将的左右两侧分成了生活阳台及景观阳台,在生活阳台一侧,将洗衣机、烘干机嵌入洗衣台中,让空间利用率更高,而在洗衣台上方设置的洗衣柜,则更便于储物。

原本处于进门处的楼梯移至户型中间,让全屋的动线更合理,也让上下楼时更为方便,内嵌式灯带、丰富的点光源,使得空间观感更为明亮干净。

卧室设计延续了其他空间一贯明亮干净的风格,低饱和度、低情绪感的颜色空间,能让人更加放松,有助于睡眠。

在卧室及衣帽间地板采用的是鱼骨纹浅色木地板,这样的纹理使得空间更有层次感,在整版纯色的衣柜中,设置了一个陈列区域,让空间变得更有重点。

