访问APP
客厅
餐厅
主卧
次卧
厨房
卫生间
方案解析

三代同堂+二胎家庭,198㎡法式风让居家更从容

深圳岚庭装饰总部
关注
户型
四居
风格
法式风
面积
198㎡
位置
深圳市
方式
全案
预算
41万
方案解析

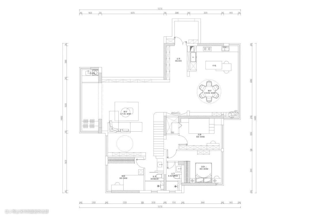
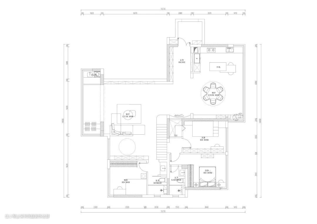
一楼的布局比较方正,动静分离,客厅是横厅户型,将餐厨空间合并,呈现出开放式布局的设计,让空间的动线更流畅的同时也能彰显整屋的大气奢华。 在一楼的设计上,根据屋主一家人的生活习惯和需求进行空间布局,家里有老人,考虑到起夜的需求,在老人房加入卫生间设计,方便老人的日常生活。

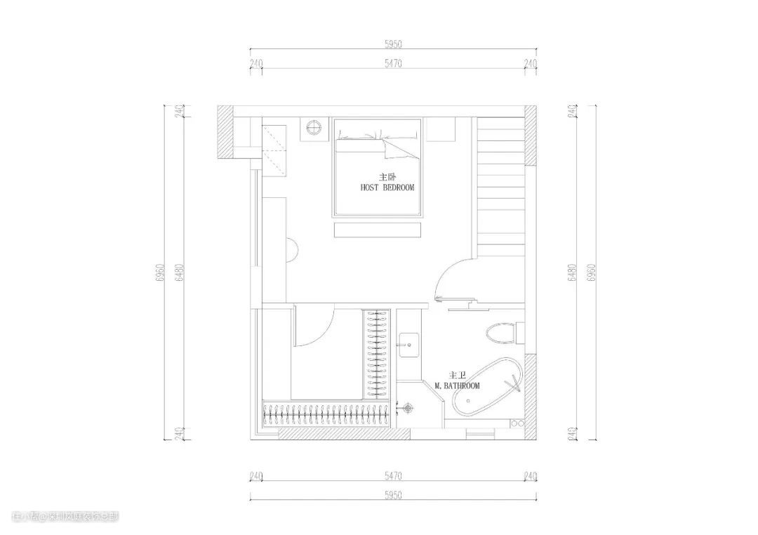
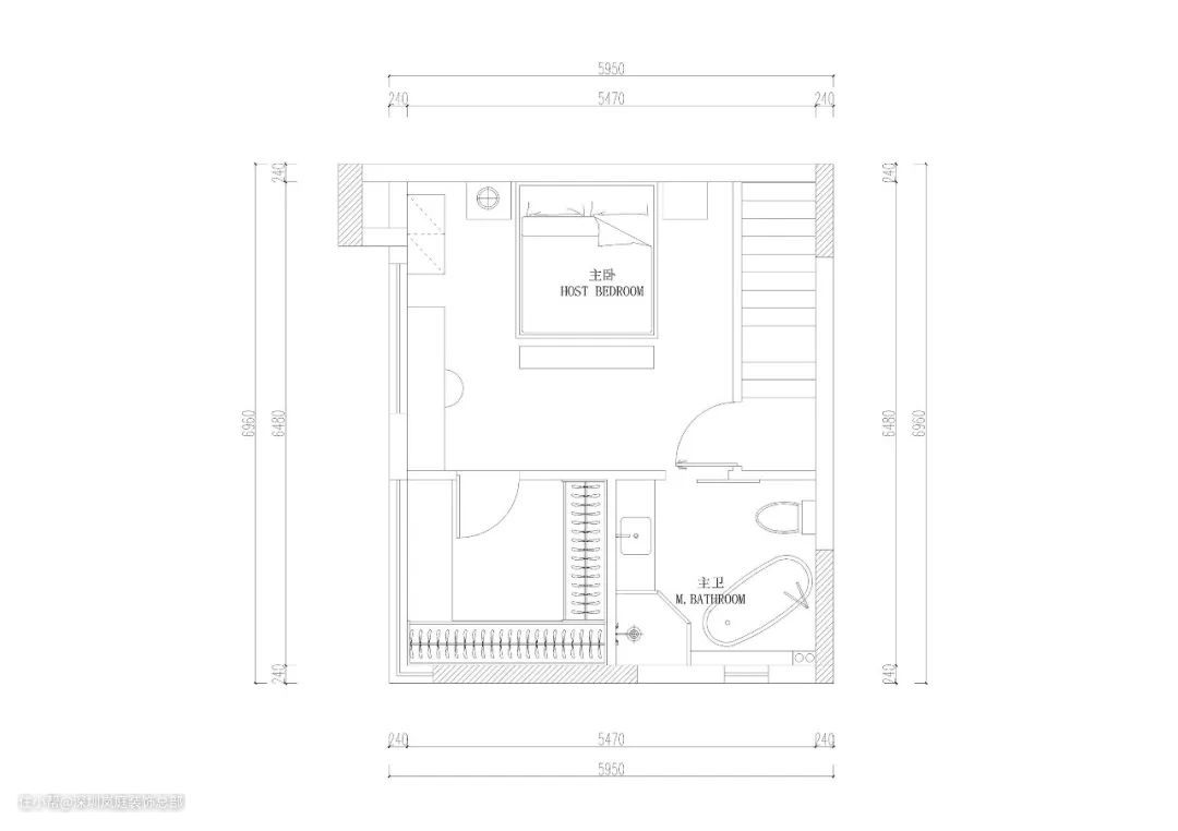
二楼作为主卧,做成套房设计,由于有二胎,在动线布局上都尽量流畅。 主卧呈现出四分离的设计,办公区、睡眠区、衣帽间、卫浴空间,让屋主的居住品质有保证。

客厅

业主喜欢优雅浪漫的法式风,既要对空间合理规划,也要表现空间的便利性。业主三代同堂,同时也是二胎家庭,无论是配色还是造型的设计,都需要保证合理性。没有传统法式的繁琐。

整个空间色彩搭配控制得当,利用渐进式打造阶梯,平衡空间的配色比例。整体的主色调采用白色,唯独书架加入一抹复古绿来提升空间质感,让空间更有色彩层次感。

意式极简的转角沙发,采用科技布面料,在空间中显得更加灵动。这套沙发也是这几年非常流行的,可以说是客厅的理想型沙发了。异形沙发的设计也是非常精准的利用了美学比例。

整个区域没有采用传统法式的繁琐,做了减法设计,让空间的比例过度平衡,线条造型也更加立体。

因为家里有小朋友,会有非常多的儿童绘本,加上业主本身也非常喜欢阅读,在沙发后面做开放式的拱形书柜,富有造型感的同时也能够培养孩子从小养成收拾自己东西的好习惯。

餐厅

开放式餐厨空间,设计师利用三分法合理分配操作区、收纳区、用餐区,结合大落地窗注入的风景和光线,给予居住者更舒适愉快的居住体验。

家里常住人口较多,选择圆桌更有幸福团圆的空间感。选择黑色的餐椅配套,靠背的圆弧造型符合人体工学,坐久了不累腰。

餐厅选择圆顶造型,精致奢华的水晶吊灯搭配石膏灯盘,展露空间高级感。

厨房

选择开放式厨房设计,空间动线更加宽敞大气,在中间设计岛台,既能提升空间格调,也能增加储物空间。厨房的采光是相当通透的,在厨房做无主灯设计,利用筒灯做基础照明,在厨房做L型橱柜设计,最大限度利用空间。

厨房是和生活阳台打通的,两处的吊顶处理有所不同,为了让空间过渡更合理,吊顶处增加线性灯作为辅助照明,既能保证空间的氛围感,也能让空间更有品质感,减少突兀的视觉感。

主卧

主卧是需要一些小清新的视觉感的,在床头背景墙选择清新质感的柠檬图案壁布装饰,下半部分选择浅绿色的护墙板设计,将空间的清新舒适贯穿到底。

由于有了二胎,需要在卧室放置婴儿床,卧室的动线都尽量保证流畅。其余墙面选择留白,恰到好处地配色比例,不会让空间复杂化,在视觉上居住感受更佳。

次卧

儿童房设计是以粉色为主的,延续主卧的洞洞板+护墙板的设计,利用粉色的温馨浪漫给孩子一个快乐的童年。

儿童床的选择是比较有童趣感的,南瓜城堡床给孩子足够的安全感,温馨有趣的造型让孩子独自居住的接受度更高。

老人房的空间不大,但是温馨实用是第一位的,卧室背景墙采用同样的设计手法,网红栗子树壁布不张扬也不平凡,符合老人的喜好。

棕色皮质床给人柔和舒适的居住感受,在床头两边放置不同款式的床头柜,方便老人在床头放置物品。

卫生间

在卫生间做干湿分离设计,业主有安装浴缸的需求,为了保证空间的动线布局,在淋浴区的设计上选择了钻石型转角,有效节省空间,还能保证干湿分离。

次卫的格局是长方形的,直接一字排开,合理划分空间功能区,墙面选择750*1500的墙砖铺贴,更能彰显大气的效果。在马桶区域的墙砖选择绿色的花砖铺贴,在视觉上彰显清新感,成为空间中的一抹亮色调,平衡空间配色比例。