本案是一个二手房改造的项目,整体呈现现代简约风格。因为平时是女主人和孩子居住为主,设计上采用自然色调的木纹和大面积留白处理,做了亲子互动区域与大量的收纳空间。 客餐厅区域在部分墙体和天花的交界处采用了圆弧的形式去连接,呼应天花的圆弧造型。视野通透明亮,开放无拘的格局,摒弃繁杂的装饰,清新明亮。

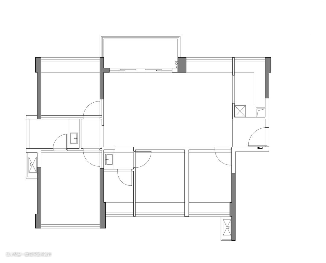
①原户型格局方正,客餐厅空间相对狭小,没有沙发背景墙,比较沉闷单调; ②公卫洗手盘在外面,客厅、公卫旁的位置出门可以直视到公卫洗手台; ③没有收纳空间,不便于孩子绘本与玩具的收纳。

①餐厅区域利用飘窗打造西厨,用于解决简餐需求以及收纳电器功能。中厨增设储物空间,通过玻璃移门隔断,既可关上成为独立成为一间厨房也可打开扩张外部西厨的空间。 ②客厅做无电视设计,背景墙做成收纳柜,放置日常物品。原生活阳台的推拉门拆除,阳台封窗与墙体打通形成开放休闲区域,让客餐厅区域更加视野通透明亮。 ③把公卫旁的卧室更改门的方向做成开放的多功能房,形成亲子互动区域且与客餐厅空间形成对流;公卫洗手台更改方向,运用墙面弧形造型遮挡,同时也增加空间趣味性。 ④多功能房与保姆间的墙体改造成Z字形墙体,分别供于多功能房与保姆房区域空间收纳的同时留下最大的空间给到衣柜、书桌等活动区域。
此案例为二手房改造,我们先来看看改造前后对比吧。

玄关做到顶鞋柜,与墙面统一,中间开放格放置日常物品与绿植,增加储物空间。

餐厅区域利用飘窗打造西厨,用于解决简餐需求以及收纳电器功能,餐厅区域放置岛台与餐桌。

电视背景墙做收纳柜,增加储物空间。

阳台封窗,拆除玻璃移门扩大客厅面积。

由于该房子是家庭居住,把其中一间卧室改造成开放式多功能房给孩子的玩耍阅读空间,避免一开门就是洗手盘的尴尬,洗手盘也更换了方向用弧形造型遮挡,美观舒适且空间通透。
经过设计,我们的实景还原效果图高达90%以上!

客餐厅效果图实景还原对比

沙发背景效果图实景还原对比

背景墙效果图实景还原对比

多功能房效果图实景还原对比

整体呈现现代简约风格。因为平时是女主人和孩子居住为主,设计上采用自然色调的木纹和大面积留白处理,做了亲子阅读互动区域与大量的收纳空间。

阳台与客厅相连,通铺鱼骨拼木地板,白色烤漆面板与墙面颜色统一,让空间延伸感更强。

摒弃了电视配置,在电视背景墙做成收纳柜,用于日常收纳与孩子的绘本读物。收纳柜体尺寸为2120mm*2880mm。

开放格与地面预留300mm,开放柜内设置隐藏灯带,来制造氛围光感,让展示物品更增添了一分颜色。

浅灰色的布艺沙发,给人柔软沉稳的感受,搭配原木色地板,朴实自然,以强大的收纳功能保证了空间极度的简洁。

这里给孩子预留更多的玩耍活动空间。除了休闲晾晒、社交与孩子玩耍的功能外不加入其余功能。

业主给孩子购买了法式VILAC金属滑行车,在家孩子玩耍空间必备!

客厅与餐厅之间没有墙,以沙发作为隔断,客厅与就餐区、厨房相对独立,又融会贯通,简洁实用,干净纯粹。墙面造型运用木饰面与白色乳胶漆打底,制作木饰面定制柜把多余放置其中。

定制的岛台,柜子可以放置电器与其他物品,方便西厨操作。


餐厅餐桌设计有往外拉伸的功能,适用于多人就餐。

透过百叶帘将自然引入生活的日常细微,构成随性朴素的状态。

餐厅岛台同样满足餐饮用品的收纳,洗手盘与有轨排插的设计更便于日常制作简餐的使用。

由于空间格局相对局促,设计师把多功能房做成一个孩子看书,一家人观影的区域。闲暇时光,阅读玩耍、制作手工,乐享亲子互动时光。今后也可以改为儿童房使用。

这里用护墙板做移动推门,当有客人到访的时候可以把各个区域的移动门展开,形成一个整洁的会客空间。

利用飘窗位置做了书桌便于孩子阅读,而且窗外的自然采光很好,可以很好的保护孩子的视力。

桌面的PLAYMOBIL圣诞老人XXL放置在桌面上更突显多功能房的童趣。

慵懒的毛毛虫懒人沙发,不担心空间不够,给自己或者小孩来一个来一个属于自己的慵懒时光吧。

厨房内部空间视野通透,U型橱柜的设计大大提升了物品的储存能力,墙上的置物架用于放置业主下厨时所需的调味品更加丰富了墙面的收纳。在小空间中,每一寸空间都要精打细算。

业主家用的是FOTILE 抽油烟机,可以很快速的过滤油烟。

墙面铺贴800*800水磨石砖,吊柜下方设置隐藏灯带,方便于厨房切菜操作,打开玻璃槅门不仅可以隔绝油烟也可以让厨房空间变得更加宽阔。

主卧的设计以白色与原木色为主,现代简约的风格,干净利落。大体量衣柜与墙体融为一体,更大程度地放大了主卧空间。

主卧延续使用白色乳胶漆与白色烤漆板等材质,床头背景采用3835mm*1750mm的白色格栅造型护墙板,用黑色不锈钢做踢脚线。

墙面上的天花造型让简洁的空间也增添层次感,简约而不单调。

儿童房以青、白色和木色为主,进门墙面整齐放置了儿童绘本读物,为孩子营造一个良好的阅读居住空间。

墙面上的云朵灯光,每晚一个睡前故事,陪伴宝贝好梦酣眠。

墙面整排衣柜最大限度利用空间,柜体中间镂空做成小房子的形状,让空间更显活泼。

保姆房利用飘台进深结合榻榻米形成1.2米宽的床,满足收纳的同时也有足够的的休憩活动空间。


在玄关处连接墙体设置到顶鞋柜,柜子与墙体平齐,中间的开放格和底部摆放日常更换的鞋物以及绿植。下面预留位置放置更换拖鞋,预留灯带以免磕碰。

鞋柜柜体尺寸:300mm*1390mm,运用免漆板柜体,白色烤漆柜门,把强弱电箱移动到柜体内隐藏起来,保证空间的整洁度。地面通铺800*800水磨石砖,玄关与客厅运用地砖分区,用10mm金属收口条收边。

洗手盆更换了位置更显的空间宽敞,用弧形墙面遮挡生活中的尴尬。用木地板与水磨石分区,干区湿区用地板颜色做好区分。

当客人来访时,过道墙后面也有推拉门,把拉门关上让客厅背景统一,形成干净的会客模式;客人离开时,可以把推拉门打开,让空间更加通透,形成休闲模式。

地面墙面铺贴水磨石砖,环境清新淡雅,墙上的镜面柜的镜面更加拉伸了空间感,让空间显得更加宽阔。


+ 98.2% 一线城市私宅客户的选择 + 已服务 75 大知名高端楼盘客户 + 深圳高端楼盘客户的信赖首选 One Focus Design 一度经纬°,一度之差,经纬之别。2017年创立于深圳,是一支年轻职业化的设计新秀。以”设计关联生活”为设计理念,倡导“DESIGN OF N+1 ° 实用生活美学”主张,为中国年轻私宅业主及商业客户提供专业化、职业化的实用生活美学空间设计、工程营造、艺术软装、全屋定制四大板块的设计、产品及服务。致力于N+1°实用生活美学空间研究、提案与职业化的设计服务,回馈每一位给予信任的客户,同时注重培养职业化设计师以获得市场尊重,以期成为受尊重的年轻职业化设计领跑品牌,并努力让世界看到中国设计。

