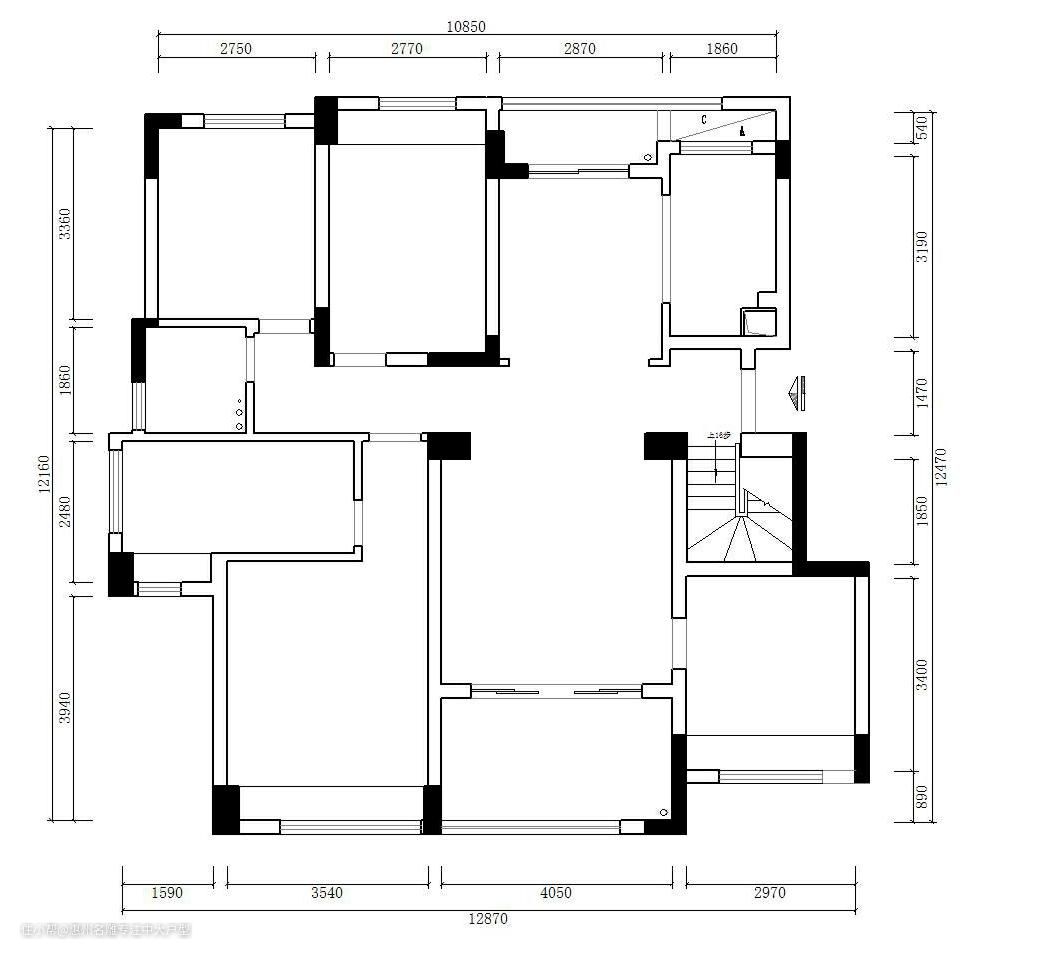
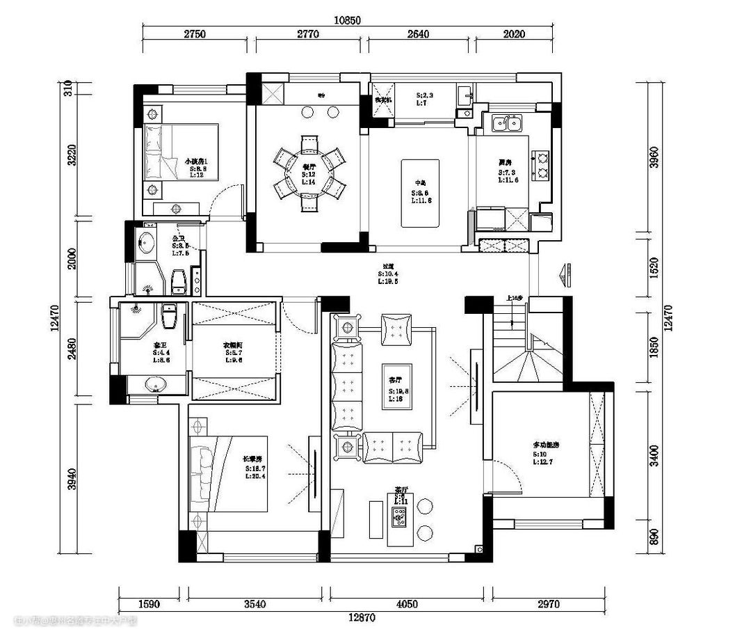
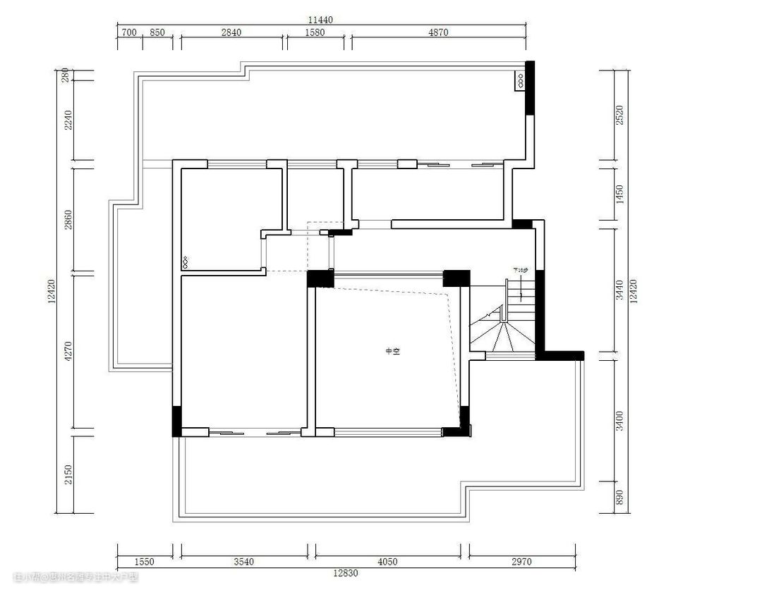
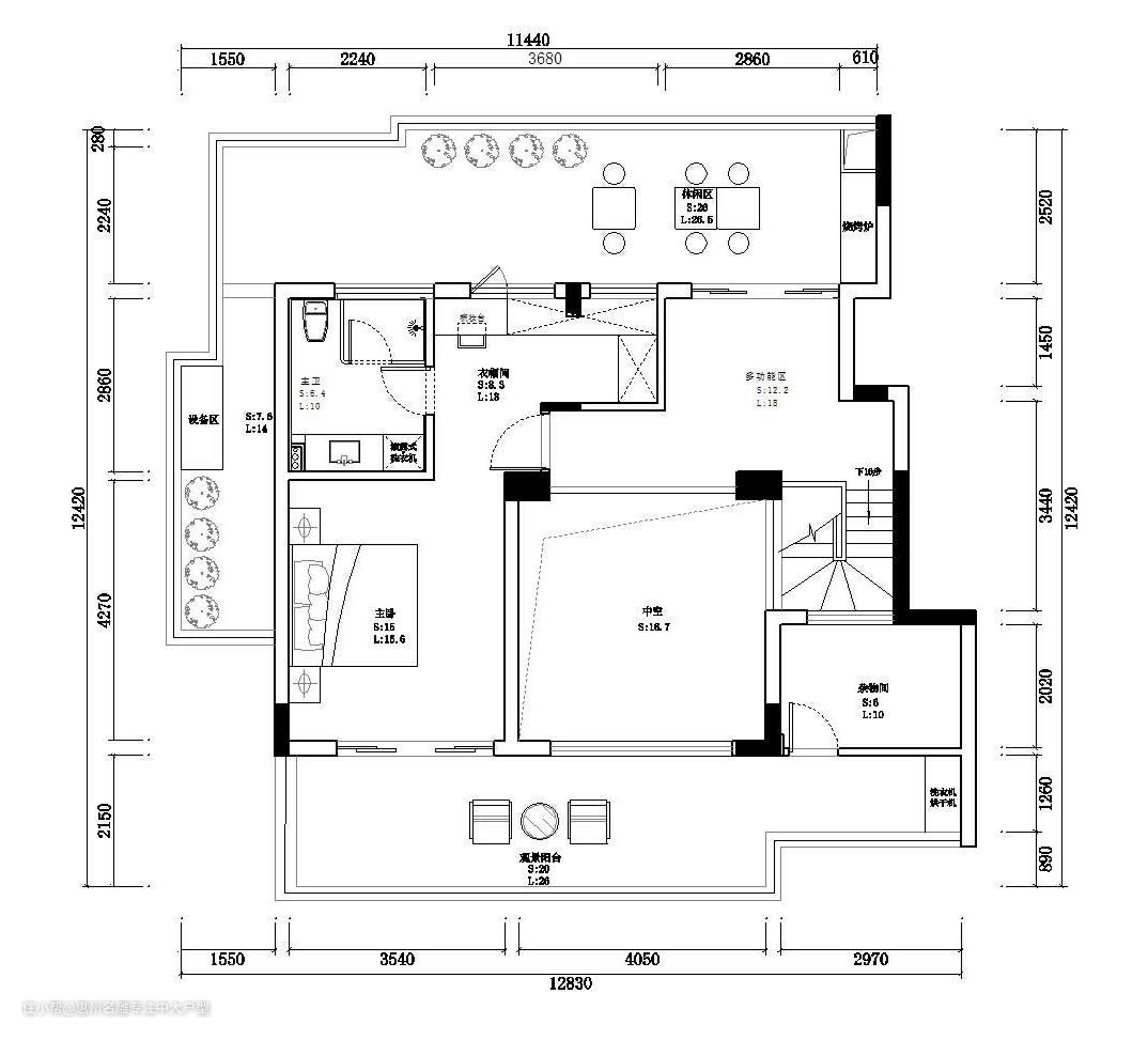
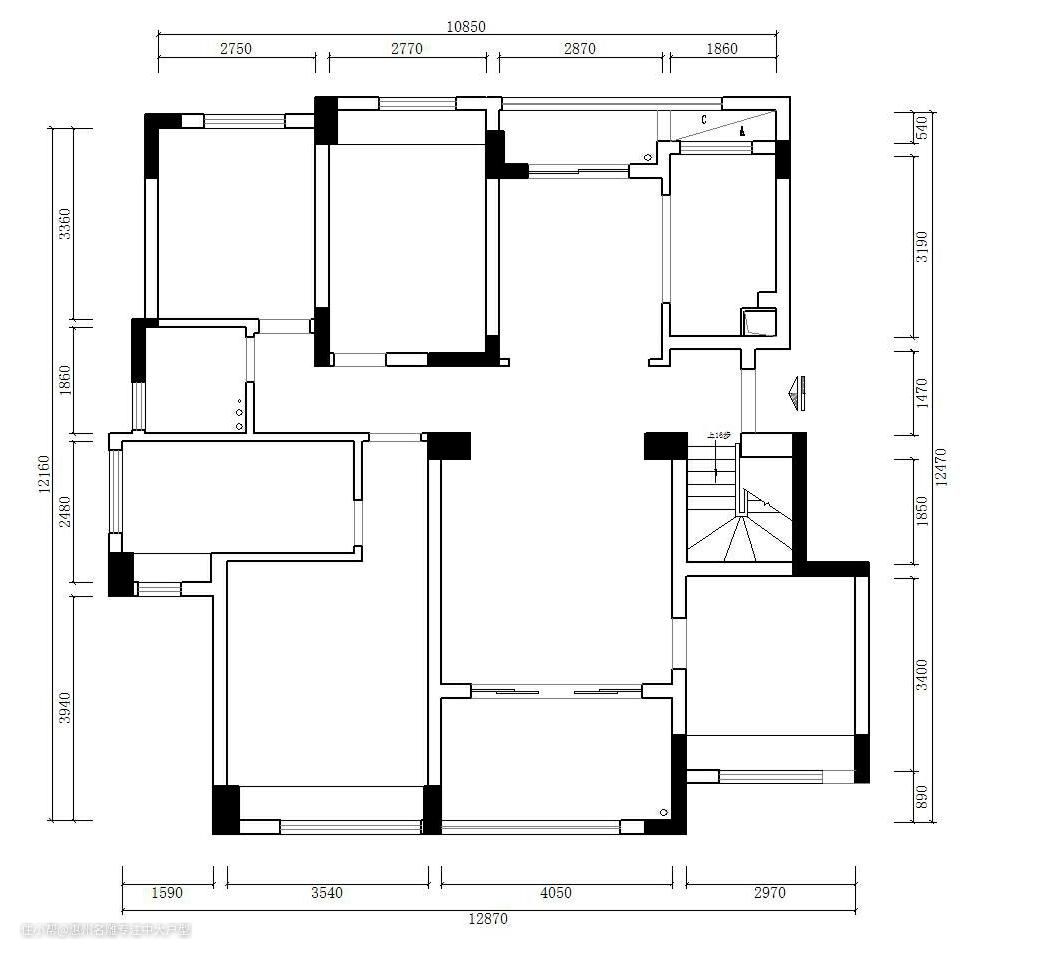
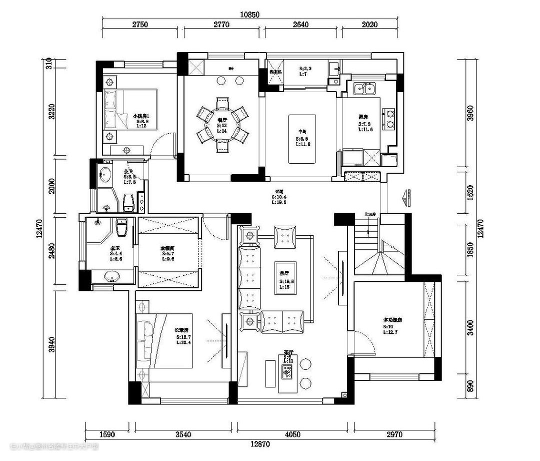
1.户型描述: ①本案例是两层的复式楼,业主喜欢奢华一点的装修风格,一楼客厅要做挑高设计,还规划了长辈房、儿童房、多功能房;二楼是主卧,带衣帽间、卫生间、阳台,两夫妻可以过浪漫的二人世界。 ②茶厅原本毗邻于客厅,并由一堵装有滑轨的墙体阻隔,布局优化后撤销该墙体,使得客厅视觉范畴得到进一步提升。同样,二楼原本杂物间被拆除,其空间融汇进观景阳台中。 2.设计理念: ①设计师期盼用一种 “舒畅身心”的方式为业主开启宁静闲适的家居生活,因此,本案空间摒弃了繁杂的动线格局,在视觉范畴上感受更为宽阔大气的布局,并采用更为明亮但不艳丽的色系铺垫,凸显生活智慧。

原本格局中,乘梯而上视觉将被一堵墙体遮挡,设计师优化格局后拆除该部分墙体,串联起各个单一的小空间打造一处多功能区,多余空间则融入主卧中。

长辈房内扩大衣帽间格局,使得出入套卫变得简易。

把空间规划完成,便是整体风格方向的把控,简约是当下流行的趋势,把繁杂的工作与生活剥离开来。

方正镂空的空间与光线联系紧密,雾透般的纱帘写意微风的律动感,一副唯美之境映入眼帘。米黄色与象牙白构筑空间视觉第二印象,洁净素雅不显一丝繁杂。丝质面料碎花抱枕极尽可能还原简欧风的视觉底蕴,含蓄地表达空间舒适程度。

此外,空间墙面、案台上少有额外装饰物,直面生活本身以淳朴态度不失为一种明智的选择,质感高级是本案客厅最为重要的装饰理念。

米黄色纹理沙发搭配旋转岩板桌,简约时尚,暖色家居给人温馨舒适感。

轻奢水晶吊灯,让整个客厅空间更具立体感。

本案中,墙体流线饰面、水晶灯坠结合亮金色金属材质无不打造一场华丽贵气的空间体验,生活的仪式感浮于轻薄大理石桌面之上,沉于高脚玻璃杯之下、归于一刀一叉之间。餐厅极尽奢华,餐厅吧台增添一丝内敛之气,整体协调统一,满满的精致奢华感。

从天花到柜体再到地面,设计师都沿用了一个颜色,视觉效果上会更加的典雅气派。

餐厅背景同样采用了对城的设计方式,顶天立地的餐边柜,让收纳空间更充足。

厨房线排般的灯光依次陈列,富余的光线渗透进入每一处至暗角落之中。一眼望尽仿佛空间皆由柜体排列而成,充足的空间位置满足厨房最为基本但也最为重要的收纳需求,空间内功能丰富,打造一处厨余生活多功能区。

空间外设有一处中岛吧台,可供业主在此简短休憩闲聊,并在视觉上丰富空间动线。

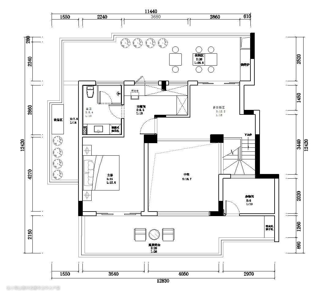
坐落在二楼的主卧拥有极佳的视野,因此设计师充分考虑到这一要素,在主卧增设一处整面推拉落地窗,尽览窗外风景。原木色地板呼应暖黄色喑哑灯光,呈现一副欧式中独有的田园意境,富有古典美的石膏线给人以开放、宽容的非凡气度。

主卧最大的特点是在造型上讲究,给人的感觉端庄典雅、高贵华丽。

香槟金的花格窗别出心裁,不仅多了空间上的通透感,还让整个卧室增添了几分温婉浪漫的情调。

主卧衣帽间延续整屋的风格特点,木质地板、流线饰面装饰柜体,洁白之间凸显恢弘大气,搭配奢金色金属柄杆,由此可见空间内蕴含欧式奢华的底蕴但更为彰显现代人从简从易的生活理念。聚焦式光源专注展示功能,空间内营造整体宁静惬意的氛围后,衣帽间亦可作为办公区。

无主灯设计渲染温馨氛围,金属灯饰与玻璃灯罩折射出更为透亮的环境光源。飘窗设计呼应室外风景,丰富室内动线,增加空间层次感与可玩性。白桦林般的抽象视觉呈现在地毯之上,呼应整体田园家装风格。

卫生间内整体布局大气而不显局促,整面透亮盥洗镜应用在主卫,搭配长型操作台,空间内多方位功能需求得到满足。台下盆设计保证实用性与美观度,下方中空区域满足多样的生活存储需求。淋浴区用玻璃隔断开来,保留了一扇窗户,增加采光和通透性。

干湿分离设计与防滑槽地板处理,使得卫生间空间得到合理划分与利用,并满足一定功能需求,简约的空间设计使得整体美观度得到保证。

墙面设有金属挂钩,更丰富的卫生间收纳需求得到满足。

本案二楼拥有优渥的视野,设计师充分考虑此要素,增设2处露天观景休闲区,好的家居建筑,需要同“自然”建立恰如其分的联系。

若没有一个极佳的观赏位置、一双发现美的独特慧眼,一处再好的风景或将黯然失色。

