【前言】 新中式将内敛婉约的古韵融入至现代家居生活中,打造出典雅大方的风格,淡然地散发出高级感。 本案例业主为人处世低调稳重,喜欢具有底蕴的质感和格调,正适合于新中式的温润高雅。 项目地址:蚌埠 沁雅·大成天下 项目户型:四室两厅两卫双阳台 项目面积:138 m²(建筑面积) 项目风格:新中式 装修费用:基础装修:8万 软装&家具:9万 电器:6万 作品名称:《銮·镜》 设计施工:华然装饰集团 【客户需求】 1.希望居住的环境是高端恬静的,在端庄沉稳的风格里传递格调和品质。但是整体布局设计也要考虑到当下的生活状态,避免僵硬呆板。 2.业主夫妻有两个儿子,需要合理规划好生活区域,使得动线流畅。原户型布局不需要做太大的改动,只需要完善调整客餐厅与厨房的空间。 【设计解析】 1.全屋以米色、深咖与黑檀进行调和配色,同时通过色彩与材质的碰撞,体现古典与现代的交叉融合。 2.将南阳台纳入客厅,延伸空间,开阔视野;北阳台的空间被释放给餐厅,设置了西厨操作台;半开放的厨房格局与餐厅空间连接过渡,让烹饪备餐更方便。 3.让简单日常的生活不乏乐趣与兴致,考虑到业主有品茗放松的爱好,在客厅设置了古色古香的茶水台,感受传统饮茶风韵。

原始图

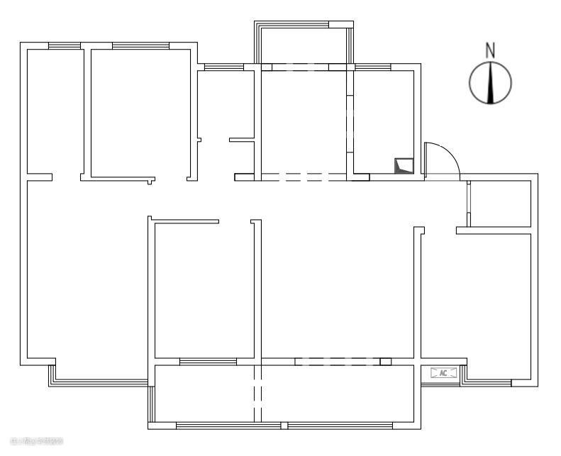
平面图

入户空间较为狭窄,以深色木饰面塑造出简约大气的环境。左方两侧墙面均设置了玄关柜,高低层次的格局脱离了沉重压抑感。线性灯延伸视野明亮处,筒灯照明入户换鞋区。

回字型吊顶很适配新中式的风格。“四周矮中间高”的落差可以将中央空调通风口设置的隐蔽一些,同时也拉高了空间层次,而金色镶边的修饰则凸显精致大气风范。

客厅古朴素雅,在现代布局里融入东方意境。拥有自然纹理的木饰面与传统水浪波纹画相拼,温润淡雅之中蕴藏深远宽厚的意境。人与万物相伴而生,自然原生的力量可作为心灵发散的凭借物。 传统实木框架沙发,柔硬得当,沉稳踏实的支撑面结合着安然舒适的柔软面。简洁的白色怀抱着清雅华丽,收放之下更显别致。

沙发背景墙两端以小山丘射灯增添观赏感。极简的线条勾勒出传统韵味的壁灯,全铜工艺材质,质感细腻,结实耐用,乳白色玻璃灯罩透出柔和的光线,晕染出温馨恬淡的意境。


阳台区域规划了品茗赏景处,端景墙设置了木质开放格,固定的金属架上以层板灯作为吸睛的点缀区,静谧悠然。


阳台的另一侧端头作为洗衣烘衣区,空间开阔通透,利于晾晒。

餐厅将北阳台纳入布局里,设置了西厨台,采光度得到提高,也能让小空间明朗透亮。

餐桌椅采用深棕色实木材质,圆形餐桌庄重大气,符合中式用餐的仪式感。餐椅靠背造型采用富有古典形态的曲线设计,呈现自然舒展的雅致。

枝叶交错的铁艺银杏叶挂件,代表坚韧、沉着,同时寓意和谐与长寿,以此寄托着幸福吉祥。


U型厨房符合烹饪流程,集成灶功能丰富,节省空间,利落整洁。灰色吊柜以金色线条增加细节美感,木色橱柜沉稳质朴,整体配置得丰富却不压抑。

西厨将电器与收纳柜结合一体,简洁利落。百叶帘轻盈灵动,自由调节光线,可以兼顾隐私性与采光度。

主卧端庄典雅,低饱和度的色调让空间沉静安然,提供舒适的睡眠氛围。飘窗侧边设置了壁龛,方便日常收纳或放置小物件。

深棕木质床头柜雅致耐看,隔层与抽屉双重设计凸显层次感。

L型转角衣柜以镂空的隔断让空间穿而不透,吊灯晕染温馨的氛围。



一门到顶的设计让空间更紧密有序,金属镶边与低明度色调相衬出低调中的精美高级。


考虑到孩子年龄较小,所以将卧室设置的更简单实用,减少过多繁杂事物的干扰。 床头处的衣柜以无把手的形式避免日常碰撞,更加安全。书桌由衣柜延伸而来,一体式设计兼具床头柜功能。学习椅贴合儿童脊背曲线,提供舒适的感受。 吊柜以黑色玻璃柜门保证通透和美观性,可以放置足够多的东西,也不显得杂乱。

卫浴简洁明朗,智能浴镜可调节灯光亮度,悬浮式浴室柜可以使日常清洁更方便,人性化的设置更贴心。
地面:L&D瓷砖 顶面:立邦乳胶漆 橱柜:百得胜橱柜 木作:百得胜橱柜 门窗:朗将门窗 卫浴:蒙娜丽莎卫浴 灯饰:阳光照明 电器:西门子电器
设计师:赵磊
