124方意式极简风,胡桃木+冷翡翠 入住一个月,意式极简风的家,当初坚定选择深色系装修,是我做过最不后悔的事,开工前三个 月就开始收藏自己喜欢的家居好物,历经五个月,必装出了自己满心欢喜的家^ 深色的护墙板搭配大理石墙面设计感,没有给大白墙,好看又方便打理卫生,除了餐边柜的设计,也考虑到了客厅的空问收纳,所以分别在阳台两侧做了高柜,悬空式电视背景墙的设计与入户鞋柜之问做了转角收纳柜一体。美观且实用, 拒绝选择用岩板砖上墙,实景图一比一的还原了效果图,真的没有辜负每一次下工地对接设计项目,选材原料,完工设计效果很赞! 设计价值不局限于看得到的形色,更体现在看不到的心灵交流中。家既是居所,更是记录人生故事的地方。每一种生活状态和体验,都在细碎的微光闪烁中打动人心,成为记忆中深刻的闪光点。

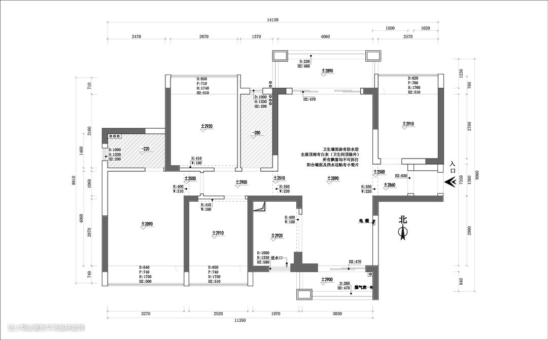
此案户型承重结构有点局限性,设计师从细节和每一寸空间尽所能地充分利用上。

主要改动的位置在观景阳台打通至客厅封窗形成一个休闲会客空间和厨房,整体感觉更加开阔宽敞!
平滑光洁的无主灯天花,线性灯的直白拉伸空间的视觉效果,设计师添加大理石地台,减缓柜体的呆板,为柜体创造台阶,一步一步的构造空间的趣味,与玄关微水泥相互祝融,显露空间的自然、干净、利落。现代气息的沙发,创造沉浸式的体验。



开放式厨房,借悬浮岛台过渡,动线自然衔接餐桌,取缔原有墙体的压迫感,整体视觉上同时扩大了住宅的独立且畅通的效果。



开放式厨房,家电一应俱全,洗切炒动线分布合理流畅。增添使用感。

卧室空间本身没有过多的意义,而是通过人的生活痕迹将卧室的意识唤醒。而推开窗,伴随着日升月落,精神世界的丰盈赋予了我们探寻自然的勇气和意义。




简约硬朗的线条,都潜藏着设计与精神世界的碰撞。在成长的岁月流光中,投射下家的符号,或许未来终将远行,但家永远是背后的依靠。温馨的基调,更是在现实与理想之间搭起了梦想之桥。

卫生间以大块瓷砖为主,力求长久耐用和持久耐看,打造舒适的生活空间。结构上完善尽美,不论是中间的玻璃隔断,还是墙上的玻璃视窗,它们都是以结构为基础,创造长久的实用性。

阳台空间设立一个品茗区,闲时和家人朋友欢聚闲聊,何尝不是一种享受。

基于对主人饮茶习惯的了解,设计师以茶为线索,利用原有的阳台空间来呈现独有的品茶区。置身其间,原木的茶桌搭配亚克力的支撑点,在光线的勾勒与渲染下,室内外的景致联通情绪,最大程度的保留光线潜入空间的轨迹。目光所及之处冷翡翠的点缀,在茶气氤氲中赋予了无限静思。



茶桌:【淘宝】https://m.tb.cn/h.U6oskTX?tk=BmwCdcpSqyv CZ3457 「北美白蜡木大板日式简约实木原木茶桌现代餐桌办公书桌白橡木书台」 点击链接直接打开 或者 淘宝搜索直接打开 餐桌:【淘宝】https://m.tb.cn/h.U6oHKzi?tk=H2EsdcpRL5n CZ3457 「意式极简岩板餐桌家用小户型饭桌现代简约长方形餐桌椅组合经济型」 点击链接直接打开 或者 淘宝搜索直接打开 螃蟹椅:【淘宝】https://m.tb.cn/h.UTuUs2k?tk=FDW2dcpQ4oc CZ3457 「网红沙发椅设计师休闲椅阳台单椅轻奢羊羔绒螃蟹椅现代简约创意椅」 点击链接直接打开 或者 淘宝搜索直接打开
汤智迪
