业主是美迪的首席设计师文敏。工作之余喜欢做菜,钓鱼。这套房子设计装修都由文敏老师亲自把关,房子处处都体现着他为家人着想的用心。

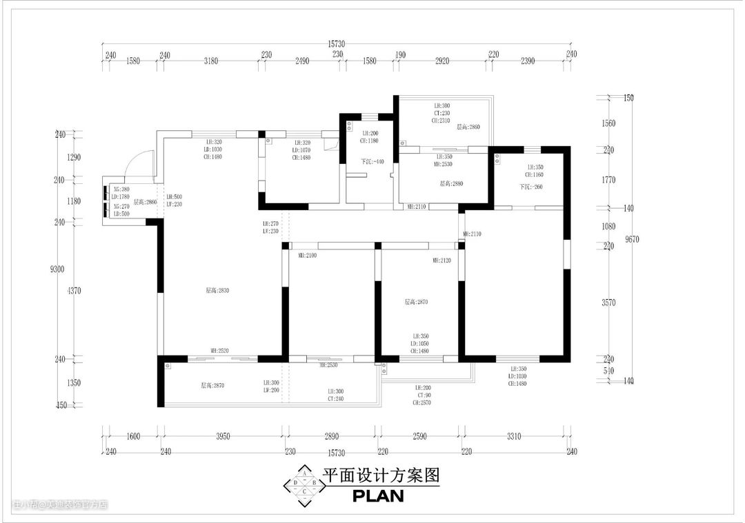
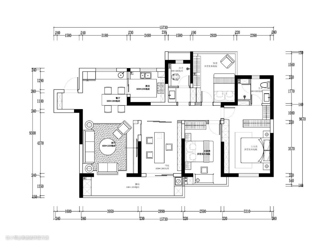
为满足一家三口的居住,将原有的四房两卫改为三房两卫,得到了一个相对开阔舒适的开放式书房。满足了所有使用功能的同时,又有了一个更加宽敞通透的视觉效果。设计师认为,一个好的户型设计不只是划分功能分区,最重要的是结合居住人的一些生活习惯,这样才能打造专属定制的温馨家。

简单的线条与装饰,体现业主对实用主义的追求。 值得一提的是,客厅的沙发是经过业主的反复挑选,专程前往外地订购回来的,舒适度、实用度俱佳。

客厅整体以灰白作基调,色彩简单大气。 这样的颜色配比,在塑造优雅的同时又具有现代设计感。此外,电视背景墙做了特殊墙漆处理,具有良好的光泽度。

客厅的皮质沙发、大理石茶几、艺术水泥漆等材质的使用,让空间质感层次更丰富、更为深厚。 木饰面、石材、金属等材质的组合,让空间质感更上一层楼。

考虑到业主与妻子对下厨的喜爱,本案厨房区域分别设置了中厨和西厨区域。 餐厅的长方形的餐桌,打破了客餐厅的交界,连通在一起,塑造温馨的质感。 灯具造型、摆件同样追求实用主义,契合了意式极简的风格内涵。

西厨部分在靠近窗户一处,并安置了柜台。 在西厨区域,可以洗切水果、煮咖啡、摆放烤箱等小电器,也可以作为备餐区,而下方设置的橱柜可以用做储物空间。

中厨部分的空间有限,为此设计了暗藏式的玻璃移门,平时厨房是开放式的,在下厨时,可以关上门,阻挡油烟进入室内。 靠近墙壁的地方同样设置了操作台,可用作备餐区和出菜区。冰箱放置在西厨旁边,嵌入式冰箱的冰箱设置,美观且节省空间。

为了增加储藏空间,业主将墙面推进,将淋浴房的空间进行了压缩。 同时,在进门衣帽间的墙面打造了一组展示柜,便于业主妻子存放各类包具。 另外,造型简单的灯饰、素色的窗帘与寝具,让整个卧室空间更显明亮简洁。

卧室设置了整面墙的衣柜,充分满足了业主夫妻俩的储物需求。 中间位置的展示柜设置了柜内感应灯,既方便拿取物品,又充满高级感。

由于业主的工作性质,需要一个独立安静的办公区域。 于是通过户型改造,将原户型中的小卧室改造后,获得了一间半开放式的书房。 原本的墙面被打通后,用灰色玻璃移门隔断,左右两边设置的玻璃,扩大了空间视觉效果 。

部分客厅电视背景墙被替换成了灰色透明玻璃,这样除了提升拉伸进门的视觉效果和整个空间感之外,还能让整个房子更显通透。 书房的定制书柜,满足了业主对储物功能的多样化需求。 造型独特的原木台,是业主的朋友赠送的,为书房增添了思想、禅意的气息。

整个书房兼具了工作室,茶室,书房、会客等多种功能。同时为孩子提供了一个学习娱乐的空间,营造一个良好的学习氛围。


丨姓名丨 文敏 南店首席设计师 丨设计理念丨 用设计,让家成为处处能承载人灵魂的归宿。 丨擅长风格丨 现代简约 美式乡村 新中式 简欧 丨代表作品丨 中建信和城、水岸御园、香樟景苑、万博汇……
