坐标丨杭州 · 亲亲家园 户型丨2室1厅1厨1卫 面积丨78平方米 风格丨现代简约 设计师丨李婷 全包费用丨16万 本案的屋主是一对90后小夫妻,他们崇尚安然、恬淡的家居生活,认为家居设计需要以舒适为第一要义。具体来说就是区域的分割和功能的划分都要达到极致的便捷;尽可能将收纳做到最佳。 户型BUG: ①各空间强调绝对划分,显得十分局促; ②餐厅面积小、厨房过于狭长; ③主卫无法同时满足两人使用。 设计调整: ①拆除客厅与阳台的玻璃移门,形成开放式布局; ②餐厅与厨房互换位置,动线更优,采光也不错; ③主卫设计成三式分离,大大提高空间利用率。

原始户型图↑

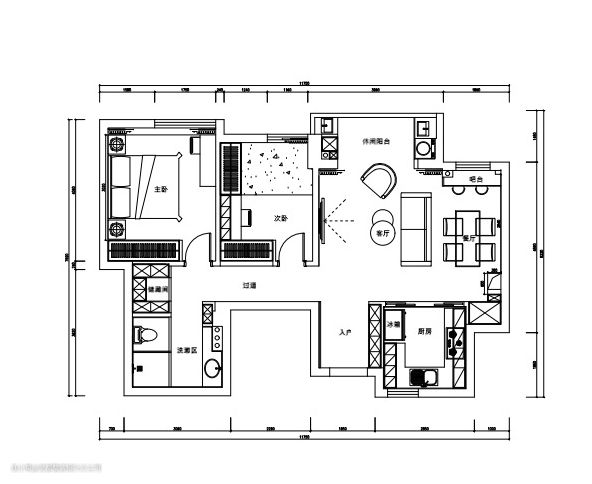
平面布置图↑

定制的柜体和简约的拉手赋予玄关满满的收纳力和高级的视觉效果;中部留空,可以随手放下包包、钥匙等零碎物品;底部悬空的设计让出入户更加便捷。

黑白配色经典、木饰面温润内敛、大理石质感高级,让现代风的简约美在客厅内自行游走,勾勒出舒雅、澄澈的空间面貌。


客厅与阳台、餐厅、玄关互串互联,加之大面积的落地窗、清丽的浅色系,强调了空间的互动性,自由的生长力正在悄然滋生。

玻璃瓶上仅置一枝绿植,打破原本“凛凛不可犯”的冰冷感,迸发出蓬勃的朝气与活力。


餐厅临近厨房,动线最优;与客厅以沙发靠背为隔断,形成开放式布局,不仅能有效利用空间,还能方便在用餐时追剧,简直一举两得。

餐厅临窗的一侧置了一方简易的吧台,或远眺风景、或静静阅读,都是放松时的绝佳去处。

原户型中,留给厨房的空间不大。设计师通过调整户型、开放式布局、动线优化,形成了女主人心爱的厨房,不仅空间得到扩大,还拥有超强的储物能力,能轻松囤下粮油和零食。

主卧延续了整体的质感与格调,低饱和度的配色加上原木的肌理,描绘出一个温情满满的酣眠空间。

月影壁灯精致小巧。当夜幕降临时,打开开关,于背景墙映射出一弯月牙儿,给平淡生活添一味小小的惊喜。


为了提高空间利用率,次卧设计成多功能房:集卧室、衣帽间、书房为一体,极大地提高了居住的舒适度。

