这套房子是老客户5年后装的第二套房,属于改善型生活住宅,业主对华浔有着深厚的情感,对设计师李总监印象深刻。本案面积188方,大平层装修,给儿子的独居套房,内饰设计简约而不失高级感,是很多业主的对意式美学的通俗表述!本案以意式现代和轻奢系作为创作的核心理念,用沉稳内敛的设计语言找到简约和优雅之间的舒适平衡,促成整个空间简约中极具质感的视觉印象,让向往高品质生活的心充实感满满。

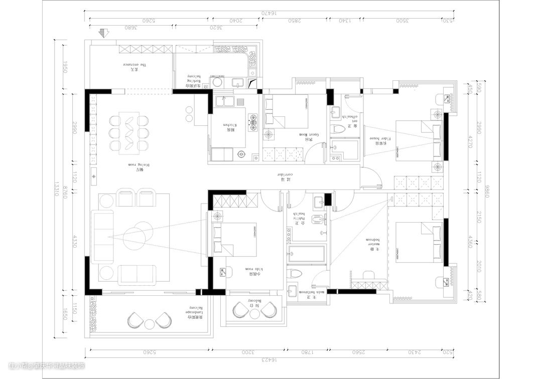
毛坯房屋主需求: ①客厅的采光通风效果不好,不考虑封窗,希望改善客厅的采光。 ②餐厅空间大,需要丰富使用餐厅的多功能空间,屋主希望改善就餐环境。 ③厨房空间面积大,女主人平时喜欢烹饪,希望可以放置更多的电器收纳功能。 ④保留4房,主卧空间大,屋主希望利用好主卧空间收纳。 ⑤卫生间需要多功能划分,需要扩大卫生间使用空间。 ⑥屋主希望把主卧改成收纳+办公的多功能使用区域

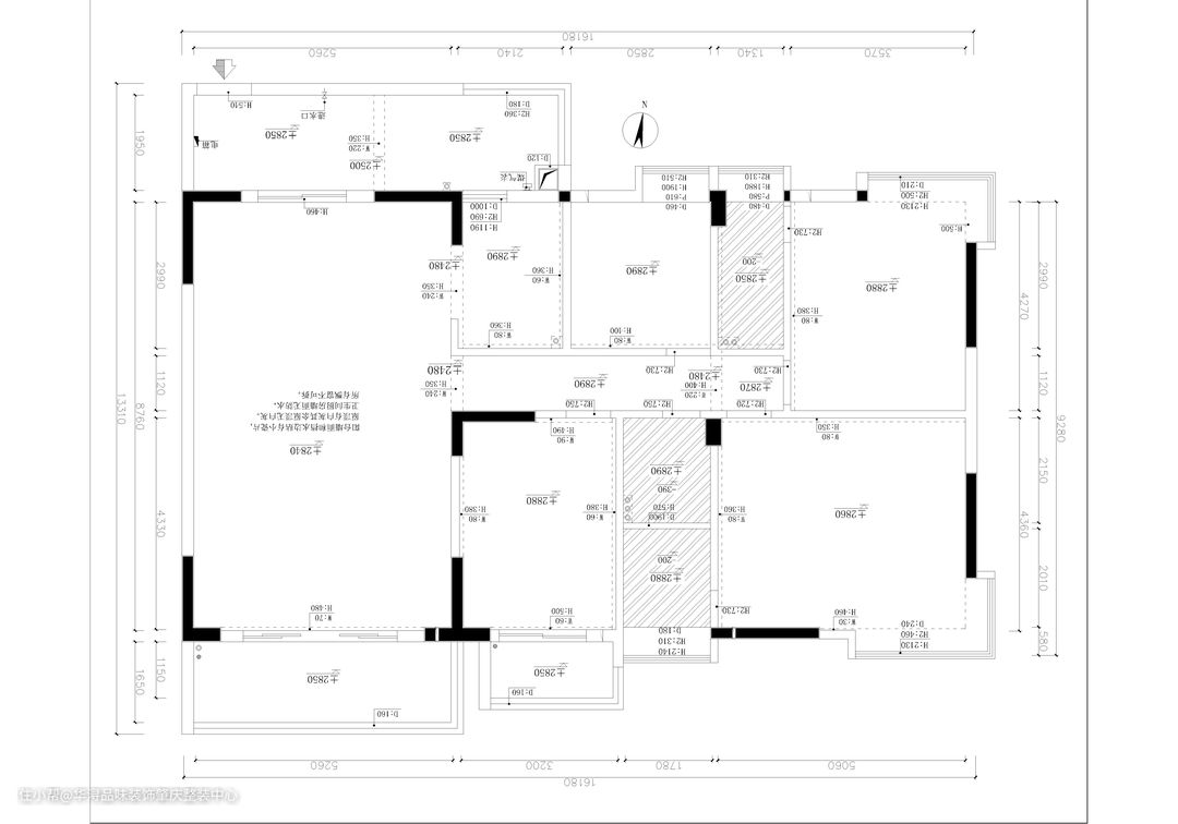
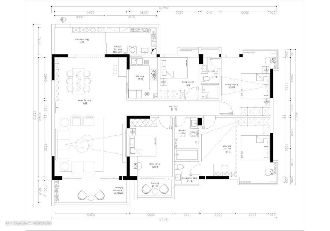
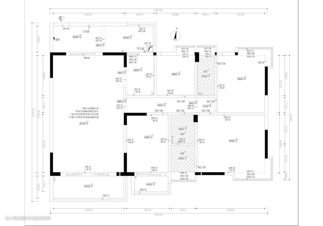
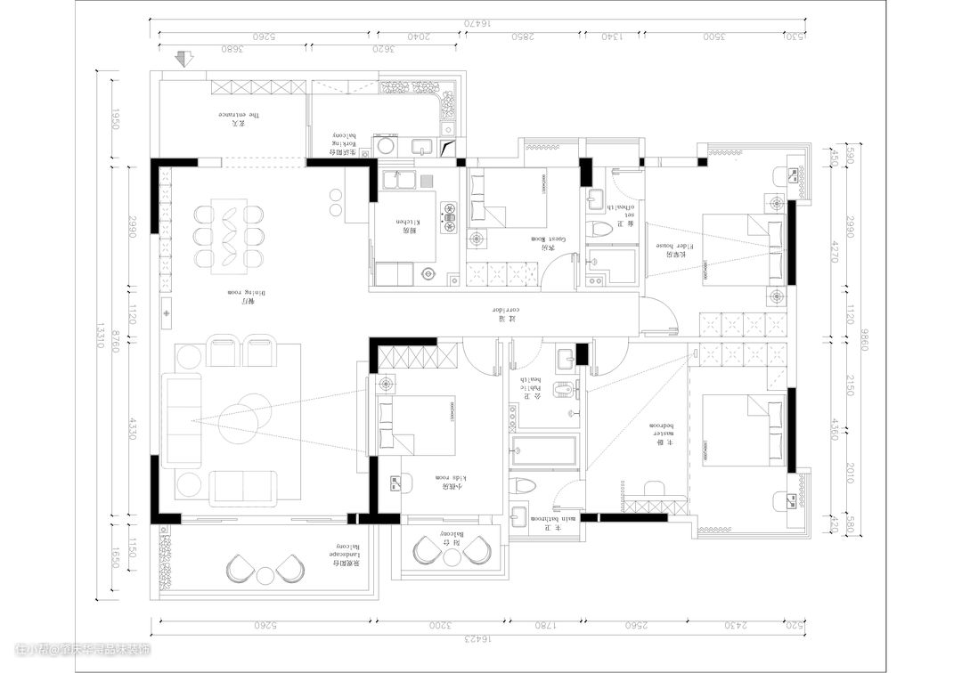
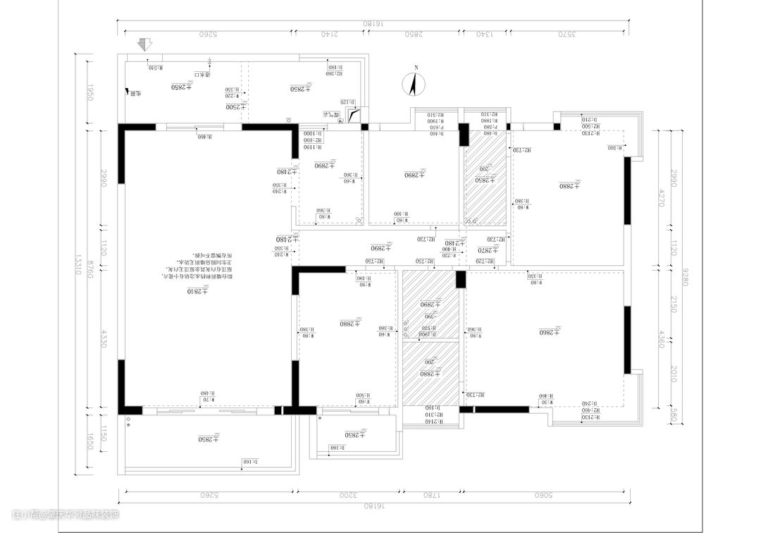
平面方案设计图
入户玄关鞋柜,实用性非常强大。 鞋柜做了换鞋凳,进出门的时候可以坐在换鞋凳上换穿鞋子,而且最下面没有做柜门,可以放室内常穿的鞋子。上面位置安装了挂钩,挂衣服或者帽子包包,都很实用,考虑真的很周到。鞋柜是做到顶面,直接到吊顶,耐脏,而且显得也比较大气,让人进来看到眼前一亮。

生活会赋予给每个人很多东西,物质上的、精神上的,我们要学会去控制,去舍得。 已走过小半人生的屋主,对于通透大气的现代轻奢风喜爱非常,内饰简约但是功能性强,十分贴合自己的实用主义,以及满足自己对于高品质生活的追求

客厅摆放3.7的现代家居沙发,背景墙造型整面木饰板造型,客厅采用无主灯设计,简单吊顶搭配射灯+灯带,顶面简洁干净,视觉上显得层高更高,满足业主对空间明亮通透的要求。#沙发#客厅#茶几#护墙板

本案以意式现代和轻奢系作为创作的核心理念,用沉稳内敛的设计语言找到简约和优雅之间的舒适平衡,促成整个空间简约中极具质感的视觉印象,

客厅电视背景墙很大气,使用木板做造型打底+中间铺的是定制大理石,电视剧内嵌黑色不锈钢电视柜,右侧打造局部装饰柜,玻璃柜门设计搭配隐形暗灯,不仅简约又大气,而且还很有档次!

餐厅区域,用餐人口不多,入户左侧摆放一张定制大理石方形餐桌+岛台设计,占用的空间很小,也比较合适。餐边柜时尚大方,通过玻璃门看到柜内放置的装饰品都是业主的心头好!#餐厅#岛台


餐厅空间够大,可以摆放6人位餐桌,考虑到目前用餐人口不多,餐台先空置,需要再慢慢添置。#无主灯天花#餐边柜

餐边柜与沙发背景墙一体设计,十分显空间大气,收纳空间也到位。#客厅设计#现代轻奢
封闭式厨房,三联动推拉门。定制的灰色橱柜很漂亮,尤其是安装了洗碗机,一家人不会为了谁谁而洗碗而闹矛盾,很适合家用。水槽与燃气灶离得比较远,使用不会受到影响。

#封闭式厨房#三联推拉门#橱柜设计
首先拥有5米大开间和4.2米落地窗,已经超越一些大平层的客厅尺寸; 休息区域抬高分层使空间布局更整齐划一; 无主灯天花暗藏所有灯光及衣柜选用一门通顶及隐藏式拉手设计

卧室门板和床头集成墙板同时选用子午灰的肤感面板色系以深邃灰与子午灰为基底,典雅的莫兰迪蓝装点其上,予人安谧祥和的舒适享受及时尚典雅的视觉气韵,将日常生活情境与审美精神在同一范畴交融。

业主有打游戏的爱好,所以卧室布置了电竞区,飘窗引入自然采光,营造惬意氛围。游戏之余,日常办公也非常合适。主卧不仅是最私密的空间也彰显居住者的品味喜好。

卧室房有安装投影仪,冬日适合宅家追剧,看电影!
次卧整体以暖色系为主,背景墙硬装皮革材质,通铺原木地板,同色系原木定制衣柜,营造温馨舒适的空间氛围。顶面延续客厅设计格调,床头搭配简约的吊灯。

卧室空间设计 卧室安装中央空调,无主灯天花造型,简约舒适。

三分离就是在两分离的基础上,将卫生间分为淋浴区、洗漱区和如厕区,保证这三个区域可以同时使用并互不打扰,从而进一步增加空间的利用率,为居住者提供方便。#卫生间#淋浴房#干湿分离

主卫 淋浴房设计
客厅装饰摆件:【淘宝】https://m.tb.cn/h.U7XERp1?tk=85quddZFr68 CZ0001 「太空人客厅装饰摆件大型落地家居饰品电视柜旁宇航员乔迁新居礼品」 点击链接直接打开 或者 淘宝搜索直接打开 沙发:【淘宝】https://m.tb.cn/h.US6Vjmc?tk=AydpddZwvCN CZ0001 「顾家BY.657逐梦人生沙发客厅大小户型布艺时尚现代简约|昆明红星」 点击链接直接打开 或者 淘宝搜索直接打开 床上四件套:【淘宝】https://m.tb.cn/h.UiyZgz4?tk=T4kFddZxVjs CZ3457 「无印良品珊瑚绒四件套双面绒法莱绒牛奶绒加厚保暖法兰绒床上用品」 点击链接直接打开 或者 淘宝搜索直接打开
肇庆华浔设计组长:李进