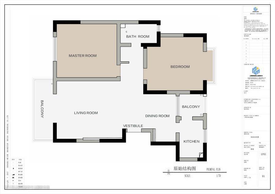
1 客厅与餐厅衔接区域新建玄关墙体,遮挡内部空间的同时,用于区分开不同的动静生活动线。2 拆除主卧与客厅之间的墙体,利用四联动的实木格栅移门进行灵活隔断,让两处空间既独立又融合,创造多元化使用功能。3 卫生间干区移至次卧方向,并借用空间部分面积,不影响走廊正常使用。4 厨房与生活阳台拆除墙体,合二为一,改造为开放式,并向次卧借用一点空间内嵌放置洗衣、烘干机。

原始结构图。

平面布置图。

为玄关新建一处1000mm*100mm墙体,修正入户直视卫生间的原始格局,为空间创造出两条不同的动、静行为路线。

用利落简洁的木头直线为空间框景,并左右设计不对称的延伸方式。家具陈设则根据不同的动线进行灵活摆放,使得有限的空间体感再得以扩大,给人一种无边界的舒适感,形成开阔的视野布局。


四联动的实木格栅移门既是主卧门,亦是沙发背景墙,也是空间中的独立装饰。




拆除厨房与生活阳台的内在墙体,合二为一,融合为全开放式空间使用。保留原始两处窗户,将景色引进室内,拓展维度让视觉变得更加宽广。在喧嚣繁忙的城市中创造一个诗情画意的世界,让故事发生,趣味生长。

回归更简单、更人性化的方式,为居住者呈现最便捷的生活动线。借由次卧空间1㎡ ,放置洗衣、烘干机,并用木格栅移动门将其阻隔,在不需要使用时,替换为墙面装饰呈现。


开放后的厨房通透敞亮,L型橱柜,充足的储物空间能将餐厨类的生活用品一一收纳,让空间时刻保持干净清爽。


在不影响储物及睡眠空间的情况下,客房部分面积给予卫生间干区与洗衣机设备间使用。木头材质继续延续,与阳台景观联结为自然、通透的系统结构,表达出具有东方神韵的精、气、神,让身在空间中的人能够在植被的滋养中疗愈身心。


为了满足足够的储物需求,从床头开始,围绕墙体设计L型储物柜,并选择与墙面最接近的颜色,保证空间的统一性与聚拢感。在榻榻米床位置旁,为其摆放了一张单人沙发,打造为一个独立的小世界,在这里,居住者可以回归孩童般的自在。
