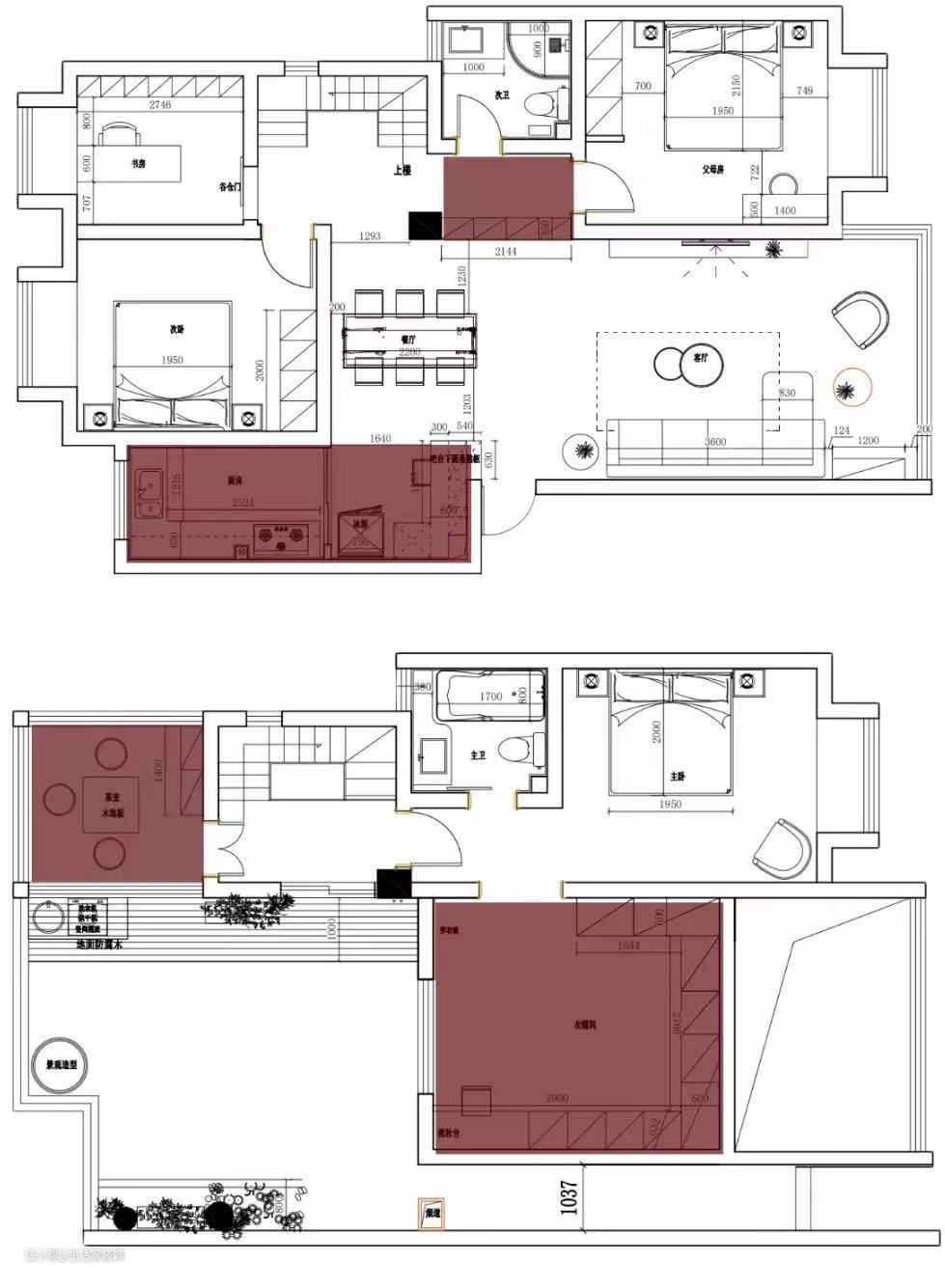
这套案例的原始户型空间方正,拥有很好的采光,但餐厨系统在空间上显得局促,不够通透。同时二楼空间划分不清晰,导致主卧空间不小,空间利用率不高。 针对这些问题,设计师做了如下改造:

厨房:改变原始厨房布局,打通生活阳台,将厨房内移,外部空间改造成西厨吧台,放置大冰箱。 次卫走廊:将老人房门洞内移,拆除走廊墙面后,嵌入一组通天柜,作为客厅收纳空间。 二楼茶室:将茶室门洞改为靠近楼梯口,动线更方便。 衣帽间:将二楼花园改造,通过搭建墙体为主卧打造出一个衣帽间,满足主卧收纳需求。
利用客厅方正的布局和不错的采光,设计师为了让空间更加敞亮,采用了无主灯设计,并用点光源和线性灯带的组合,来勾勒出空间的形状,让空间富有层次感。哑光白色大理石背景墙,搭配木饰墙板,营造出沉稳、大气的空间质感。

在前期的交流中,我们得知业主希望客厅保持整洁,收纳空间尽量不外露。在此前提下,设计师通过拆除墙面,将一组与木饰墙板风格相同的收纳柜嵌入其中,并采用了隐形门,让空间从外部保持一致。


客厅采用了智能灯光系统,并围绕不同的生活场景规划照明。比如回家时头顶的玄关灯会感应亮起;在沙发上看书时,只用开启头顶的阅读灯即可;看电影时开启灯带,增添氛围感。

为了营造温暖的感觉,设计师选择了布艺沙发,足够深的坐垫,能够为家人提供舒适的坐姿和柔软的触感,提升客厅生活品质。
原始户型餐厨相邻,由于存在转角,这个区域的采光比较差。设计师通过打通厨房生活阳台,将厨房内移,同时拆除了外部墙体来打造开放式西厨,让中西厨分离。如此一来,餐厅与西厨融为一体,空间变得更加通透。

为了增加家人的互动,西厨预留了电位、水位,供烤箱、微波炉使用,提升生活乐趣。同时还打造了收纳空间,满足餐厅收纳。

穿过餐厅便是通往二楼的楼梯,考虑到家里宠物居住,设计师将楼梯间设计成了萌宠的开心乐园。同时,楼梯搭配柔和的感应踏步灯光,夜晚上下楼梯更方便。楼梯材质上以木材和玻璃为主,精致个性 。
为了给业主打造舒适、放松的睡眠环境,设计师以无主灯设计来烘托氛围。同时采用了艺术漆装饰墙面,在阅读灯、灯带的映射下,浪漫的同时也让空间更有层次感。

在床的一侧,设计师还细心设计了一处抬高的地垫,男女主人可以坐着这里,一边看电影,一边聊天品酒,让私密空间也变得有趣。

主卧最大亮点当属这个有22㎡大的衣帽间,可以满足两个人现在与未来的收纳需求。同时,设计师将男女收纳区分开,满足个性化的同时也避免混用。同样,搭配隐形门的收纳柜,让空间看起来十分整洁。

衣帽间还为女主人设置了梳妆桌和全身镜,让每一次出门都可以展现100%的美。

穿过衣帽间便是主卫,主卫以黑白极简色调让空间显得干净爽朗。长虹玻璃隔断,既满足了干湿分离,也让空间更加通透、时尚。


