这是一个建造于上世界20年代的上海老弄堂,业主从小生长于此,现在业主的小朋友将在附近读书,所以一家三口又搬了回来。 凭借弄堂房子本身比较高的层高做了loft的设计,搭建出了一个小朋友的生活区,并且额外设计了一个干湿分区的卫生间。

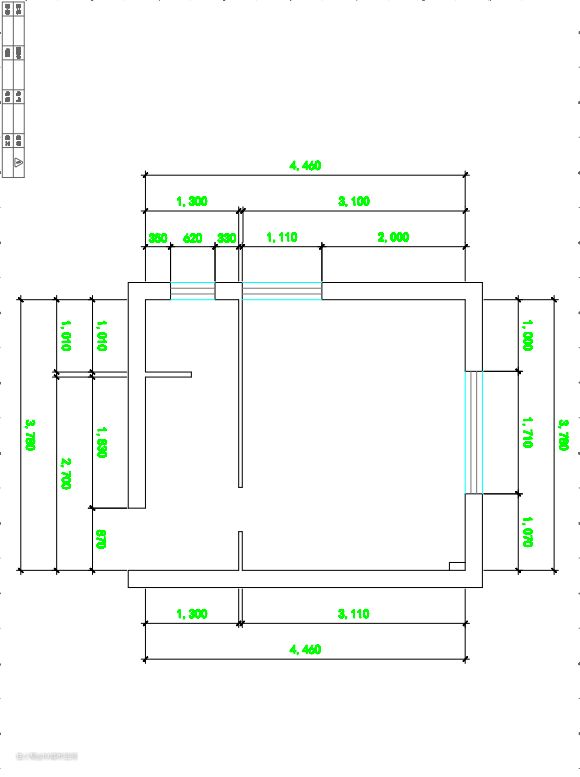
原始户型平面图: 原始胡扯室内空间进门压抑,吊柜部分几乎要碰头,厨房和卫生间没有很好的分隔开,卫生间功能分区拥挤,没有很好的使用空间,室内空间分割不明确,没有区分开休息和公共区域,也无法满足两代人的生活需求。

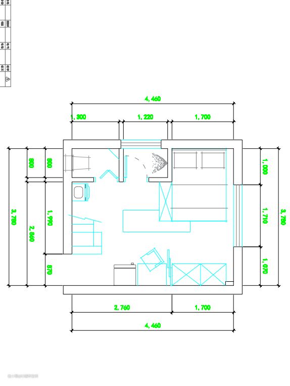
新户型平面方案图: 入户出设计了单独的鞋柜,借用楼梯的第一第二台阶同时兼具了踏步,换鞋凳和鞋柜的作用,借用层高做了loft。

进门利用挤出来的空间设计了单独的鞋柜,方便一家人进出门换鞋,鞋子收纳上也是够用的。#现代简约#LOFT#小户型#老房改造#ID城市空间

楼上的视角,麻雀虽小五脏俱全,整个房间的中心位是一个大操作台,也可以当餐桌使用,并且考虑到室内空间比较局促,将一个柜子做成了隔断,分割出了卧室和厅。#客餐厅一体#现代简约#LOFT#小户型#老房改造#ID城市空间

楼梯下利用腾出的空间做高低柜的定制设计,下面是一个简单的操作台放置滚筒洗衣机尺寸刚刚好。#现代简约#LOFT#小户型#老房改造#ID城市空间


厨房在外面的公共区,这里没有拍新的照片。餐厅一个简单的操作台对于小户型来说就足够,对面还布置了书桌,主要是方便孩子平时做功课用。#客餐厅一体#现代简约#LOFT#小户型#老房改造#ID城市空间


靠近餐厅操作台的柜子可以说是一柜两用,不但承担储物的功能,还有把卧室和厅分隔的作用。#客餐厅一体#现代简约#LOFT#小户型#老房改造#ID城市空间


厨房在外面的公共区,这里没有拍新的照片。餐厅一个简单的操作台对于小户型来说就足够,对面还布置了书桌,主要是方便孩子平时做功课用。#客餐厅一体#现代简约#LOFT#小户型#老房改造#ID城市空间


床头对面定制到顶的衣柜,这个衣柜可以说是家里收纳的王者了。#老弄堂#现代简约#LOFT#小户型#老房改造#ID城市空间


借用层高做了LOFT,刚好做儿童房用。#老弄堂#现代简约#LOFT#小户型#老房改造#ID城市空间

整个房子最里面是卫生间,做了干湿分区。#老弄堂#现代简约#LOFT#小户型#老房改造#ID城市空间

