本项目是一套三室两厅两卫的小户型装修改造案例,业主一家三口,喜欢简约风,空间开阔明亮,需要多功能房。 设计师根据客户诉求,在不改变承重墙的情况下,对原始空间格局做出了改善,开放性的设计让空间更显宽敞明亮,每个空间都符合正确的动线流程,让家住起来更为舒适便利。

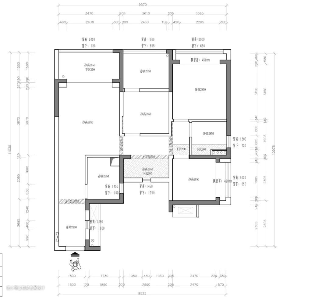
改造前-原始户型分析: 1、客餐厅的空间小,空间利用率不高 2、2个阳台空间浪费 3、隔墙多,采光不佳 4、空间功能区分不明确

改造后-平面方案布置: 1、将厨房隔墙拆除,扩大整体视觉感 2、阳台打通,做封闭式阳台 3、拆掉靠客厅的卧室,做餐厅 4、靠厨房位置的空间做卫生间

设计效果图与完工实景图还原度对比


推开新家的大门,会发现进入了光的世界!入户进门虽然是一条长长的玄关过道,但由于右侧有一面很大的窗户,经过改造后,变成了落地窗,同时通过弧形拱门将这落地窗很好的包裹住,将其打造的十分有个性,超级有设计感!

也正因为通透落地窗的存在,让玄关通道的采光效果变得极好,搭配上简单的绿植点缀,也能营造出ins打卡地的效果!

入户左侧靠墙做了通顶的定制柜体设计,能够容纳更多换季的鞋子,预留了挂衣区功能,柜体中部和底部也做了留空设计,便于日常更换常用的鞋子,浅咖色的柜体,从一进门就定义了家的基调。

搭配一面全身镜的设计,与对面落地窗投射进来的自然光,形成绝佳的光影效果!

电视背景墙选用悬浮岩板的造型设计,明亮的材质让背景墙即使在不开灯的情况下依旧拥有超高颜值,背板暗藏灯带的效果,使整个画面显得更加的柔和温馨且高级。

岩板背景墙中间根据电视的尺寸进行了精细的切割,刚好将电视嵌入其中,整体视觉统一,进一步拉升了客厅的档次效果。

用同色的原木材质打造成地台电视柜收纳设计,很好的将线路隐藏在了抽屉里面,一眼看过去平整又干净。

景观阳台封窗之后,拆除了横在客厅与阳台之间的推拉门,同时做了通铺处理,这样将阳台融合到客厅里的方式,无形中延伸了客厅空间的视觉效果,也让室内拥有更充足的采光,变得通透大气。 由于缺少独立的生活阳台,因此在客厅阳台一侧做了嵌入式的洗烘套装,不仅极大的节省了晾晒空间,也提高了家庭的生活品质。

阳台的另一侧,靠墙定制了储物功能的阳台柜,为室内增加收纳空间,阳台上摆放了一些简单的单人沙发椅和凳,使其变成一个休闲的区域,坐在窗边,可以静静的欣赏落日余晖。

定制的鞋柜和餐边柜组合,从玄关一直延伸到了客厅,既拉伸了空间又提供了强大的收纳,展现了空间由公共到私密的转换,与瓷砖同色的嵌入式踢脚线也让地面和墙面过渡更加自然。

客厅背后的区域原本是一个小房间,经过改造后,拆除了墙体,将其变成了一家人用餐的空间,客餐厅之间做了一个半墙高的吧台设计,简单、通透的同时,保证了充足的收纳,也让不同功能的空间进行渗透交互。餐厅的外侧是一个多功能书房,可以满足男主在家办公的需要。

餐厅地面延续了客厅的通铺效果,色调氛围也与客厅保持一致,使得整个开放式的客餐空间更加的协调,高级时尚,宽敞明亮。

从玄关进来,便是厨房空间,将原本封闭的厨房做了墙体拆改处理,扩大了门洞,采用联动移门的方式,做成了半开放式的设计,做饭时将厨房独立起来,隔离油烟,一个合理又实用的厨房,它无需华丽的装饰,生活便有了烟火气息。

厨房面积虽小,但格局方正,因此做了U型橱柜的布局设计,另外为了让厨房拥有更多的操作台面,屋主舍弃了双开门冰箱的想法,选择了一个大容量的单开门冰箱代替,储存一家三口的食物也相当足够了。

厨房外侧过道的对面,是一排与鞋柜无缝衔接的餐边柜设计,吊柜部门的柜门选择了极简的玻璃柜门设计,里面存放的物品一目了然,方便存取拿放。餐边柜除了收纳杂物,还有一个餐桌辅助的功能,因此中部同样做了留空设计,水壶、小电器、茶盘等杂物,都可以方便地放置其中,以维持餐桌台面的整洁。或者也可以放上一个花瓶,插上几支植物,来烘托出来用餐气氛。

厨房与客厅之间的墙体被拆除后,改造成了酒柜+吧台的设计,借助客厅阳台的采光,厨房的空间感和采光都得到了提升,整体效果更佳,动线也更加的流畅。

床尾墙面还做了吊柜和悬浮柜的设计,使主卧的收纳功能更加强大,轻盈的悬浮柜可以兼顾梳妆台使用,也可以放置常用的平板、书籍等物品,十分的方便。

主卧进门的左侧墙体向外做了拓展,做了一组嵌入式的收纳柜体,同时右侧靠墙还有一组与床头柜连为一体的定制衣柜设计,使得主卧拥有了足够的收纳空间,完全可以满足女主衣物收纳的需要。

飘窗侧边也做了嵌入式的收纳格,可以摆上公仔、摆饰品,也可以充当书柜摆放书籍,在提供方便的收纳的同时,还让卧室整体看起来简洁美观。

重新规划了次卧和公卫的墙体结构,使原本面积不大的次卧增加了一排衣柜,增加了收纳空间,让使用面积更加合理。在原建筑的飘窗上定制了榻榻米,让次卧拥有更大的活动空间。