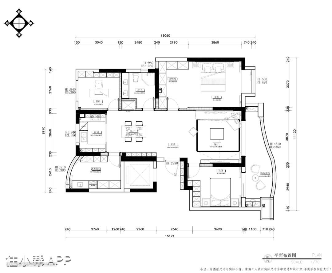
本案业主一位独居女业主,对生活有极高的品质要求。追求时尚,因一人独居,所以格局上拥有很大发挥余地,她对房子改动的接受程度也非常高。

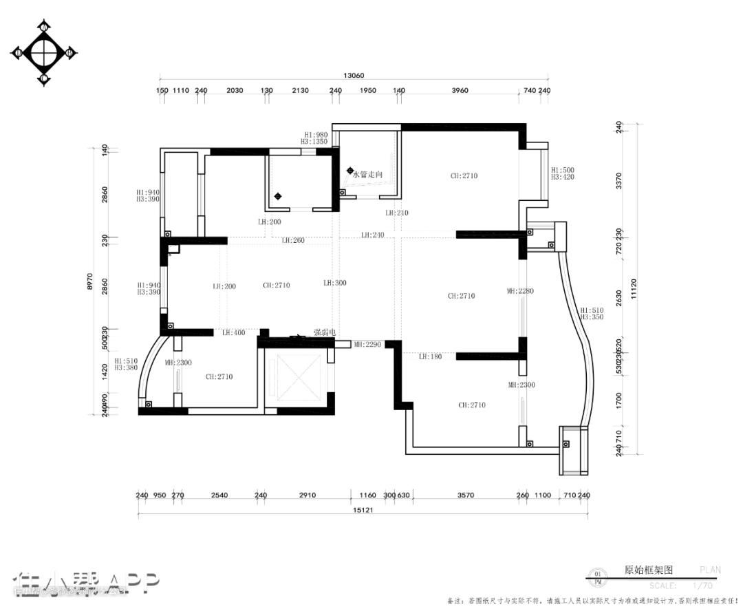
✦设计亮点 ✦ ①原始框架承重布局导致空间规划受限,但阳台面积大,房屋采光条件优越。 ②在户型改造上首先满足业主独居需求,设计了衣帽间和书房等,改动原先客房面积,多加入大量的储物收纳空间。 ③在客厅和卧室的布局上,追求开阔舒适,弧形阳台落地窗开阔视野,视觉上放大景观效果。搭配电动窗帘,提高居住舒适度。

钓鱼灯作为无主灯设计的辅助,曲线曼妙让沙发更具线条和高级感,是现代黑白灰空间的点睛之笔。

客餐厅与厨房在同一动线上,通过吊顶将客厅、餐厅、 厨房的空间做了划分。无主灯设计,银色的落地钓鱼灯增添时尚感。

客厅主沙发为舒适的异形皮质沙发,长度两米四,选用了深色的软皮材质。沙发两侧的落地灯和边几,带来空间视觉上的层次感。

沙发背景是有视觉递进的木饰面加大理石拼接,穿插硬包,侧面添加灯带。隐形门发挥轻薄优势衔接次卧隐形门,丰富设计材质。

为追求简约设计,将所有的房门做了隐形门设计,冰箱内嵌,视觉效果更整洁。

餐厅餐边柜设计百搭实用,柜门做了免拉手设计,根据居家需要定制专属收纳功能。



经典的“U”字形厨房,为了增加厨房台面,将冰箱布置在原来主卫让出的空间,空间不易拥挤。厨房也因此分区划分明确,一部分是蒸饭和备菜区,一部分是洗菜和烹饪区。

厨房橱柜选用楠美橱柜,样式选择了极简无装饰线条的烤漆板,搭配黑色隐形拉手,厨房的台面以上插座选择带开关的,方便后期使用,也保证使用更加安全。

卧室的配色也以深色为主,配合浅色系的床品让视觉在空间整体上协调平衡,窗外的光照射进来透出平和沉静的冷冽感。

主卧套房直接把衣帽间收编其中,灰玻衣柜堪称颜值天花板,内置灯带,取物时一目了然。

纯白浅色毛毛单椅为整个空间注入生机活力,在硬朗的氛围中呈现一丝柔情。


次卧在大阳台旁,为采光争取到了很大优势。浅色硬包,与众不同的高级感。

书房是放松心灵之所,氛围定制柜和书桌两个着重点。开放格搭配层板灯,灯光是高级感和氛围感的主要来源。



灰色系卫生间,清冽的气质特立独行。干湿分离,一体化定制,极简定义全新卫浴趋势。

洗衣房做圆弧形门洞,为整体冷硬的底色增添一丝俏皮。

独立的洗衣空间,可以隔绝洗衣机运作时的噪音,为居住生活带来更好的体验感。


阳台吊顶做了木饰面格栅设计,一抬头才能发现的设计小心思,往往会给整体设计加分。

除去奔赴的山海,也要偶尔停下来享受生活的慢条斯理。阳光照满整个阳台,极目远眺,是一片宁静祥和。

除去奔赴的山海,也要偶尔停下来享受生活的慢条斯理。阳光照满整个阳台,极目远眺,是一片宁静祥和。
