

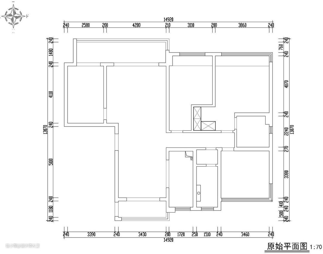
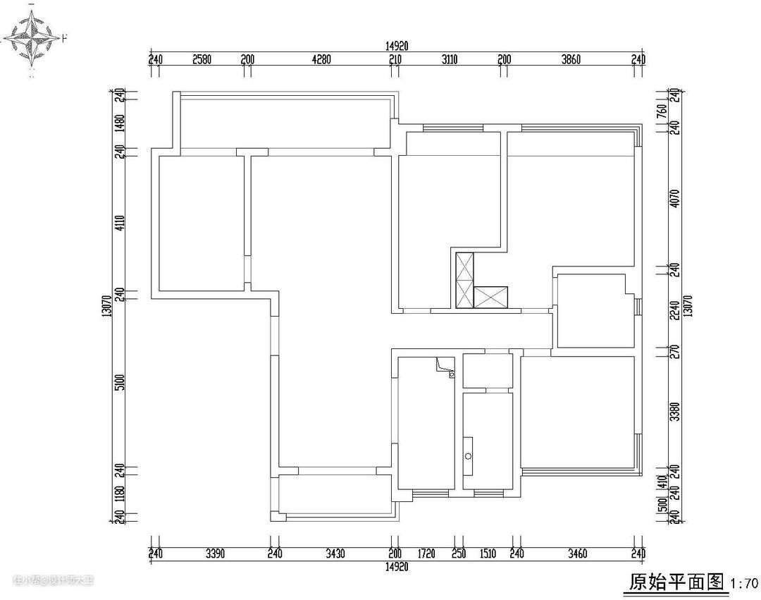
装修前
原户型承重墙比较多,且有多处隔断,对设计的局限比较墙。
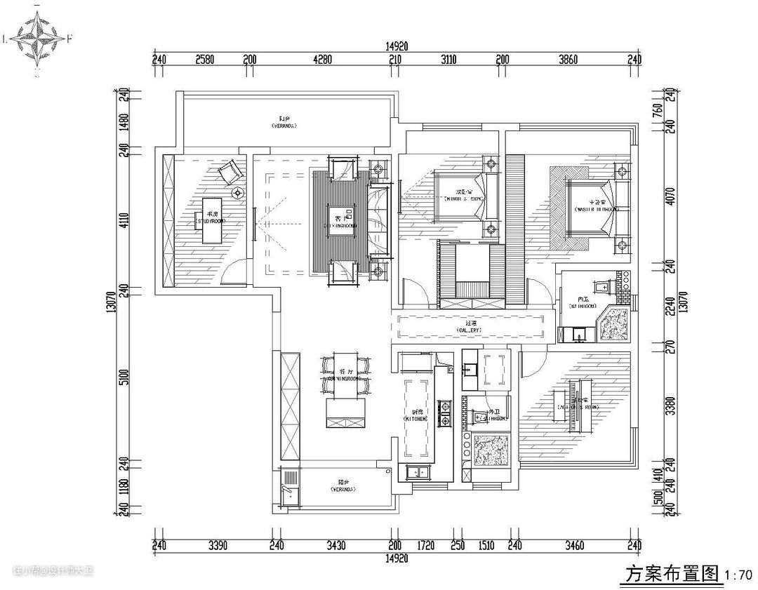
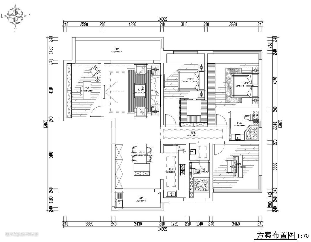
装修后
①把餐厅空间处原本封闭的阳台打通,空间得到贯通和延展; ②把蒸烤箱从厨房外移置于餐厅餐边柜作内嵌式设计,操作空间更大; ③书房整面手办墙,客厅整面鞋墙,简直是年轻人的天堂。




设计亮点
电视墙后面其实是书房的隐形门设计,这样设计的好处就是完全看不出来还有另一方空间,共用一面墙巧妙地避开了设计冗杂的现象发生。
软装搭配
亮眼的深蓝色沙发是整个客厅空间最吸睛的地方,选择这款沙发的原因其实是因为业主王先生喜欢打游戏,所以我们选择了这款意大利品牌Edra花瓣沙发,足够松软舒适。





设计亮点
餐厅空间的一大亮点是西厨区的设计,一整个长方形的中岛吧台+餐桌的设计,既分担了厨房工作,又让整个空间设计感和延伸感up up!
软装搭配
把蒸烤箱挪出厨房,挪进餐厅,嵌入餐厅区域的储物柜中,蒸烤箱与之融为一体,完美地呈现了空间的利用率和实用性。


设计亮点
我们利用透明玻璃移门把厨房设计成半开放式,这样既解决了油烟可能进入生活空间的困扰,又保证了空间的整体通透性。





设计亮点
我们把主卧设计成现代性冷淡风,融入黑白色调,让空间感得到进一步延伸。床的另一侧是一个步入式开放衣帽间,考虑到王先生不同衣物的收纳需求,我们对空间的左右进行了不对称式设计,进深3.3m的空间完全容纳了王先生一年四季的衣物。
软装搭配
空间依旧采用无主灯式设计,同时为了保证区域照明,我们选择在床头进行吊灯设计,爱斯兰这个小众品牌的卧室床头小吊灯设计感十足,完美地融入了整个空间氛围。



设计亮点
电视墙的左侧是一扇书房的隐形门,可以看到左侧是整墙的亚克力鞋盒拼成的潮品鞋墙,相信一些爱鞋星人的DNA又懂了,这简直是人生一大乐事。



设计亮点
卫生间设计成三分离式,洗手台设计成感应出水,这样就不会因为忘关水龙头浪费水了。
软装搭配
马桶我们选择的是高性价比的杜拉维特品牌,这款马桶24小时抗菌率高达99%,价廉物美用的放心,也是我们与业主一致的追求。
