
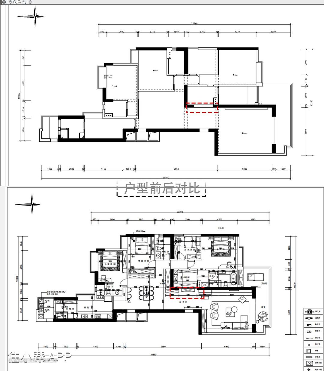
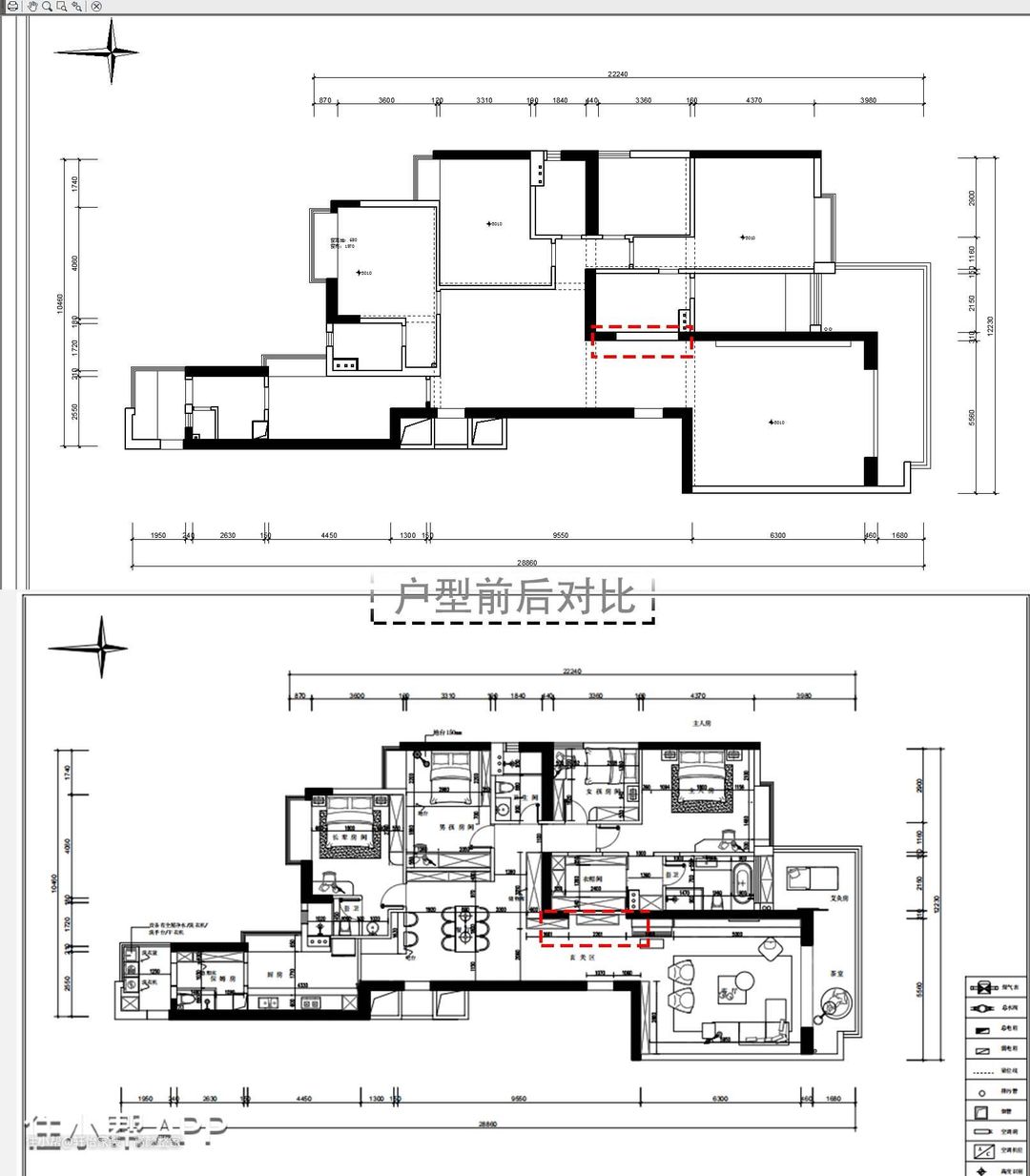
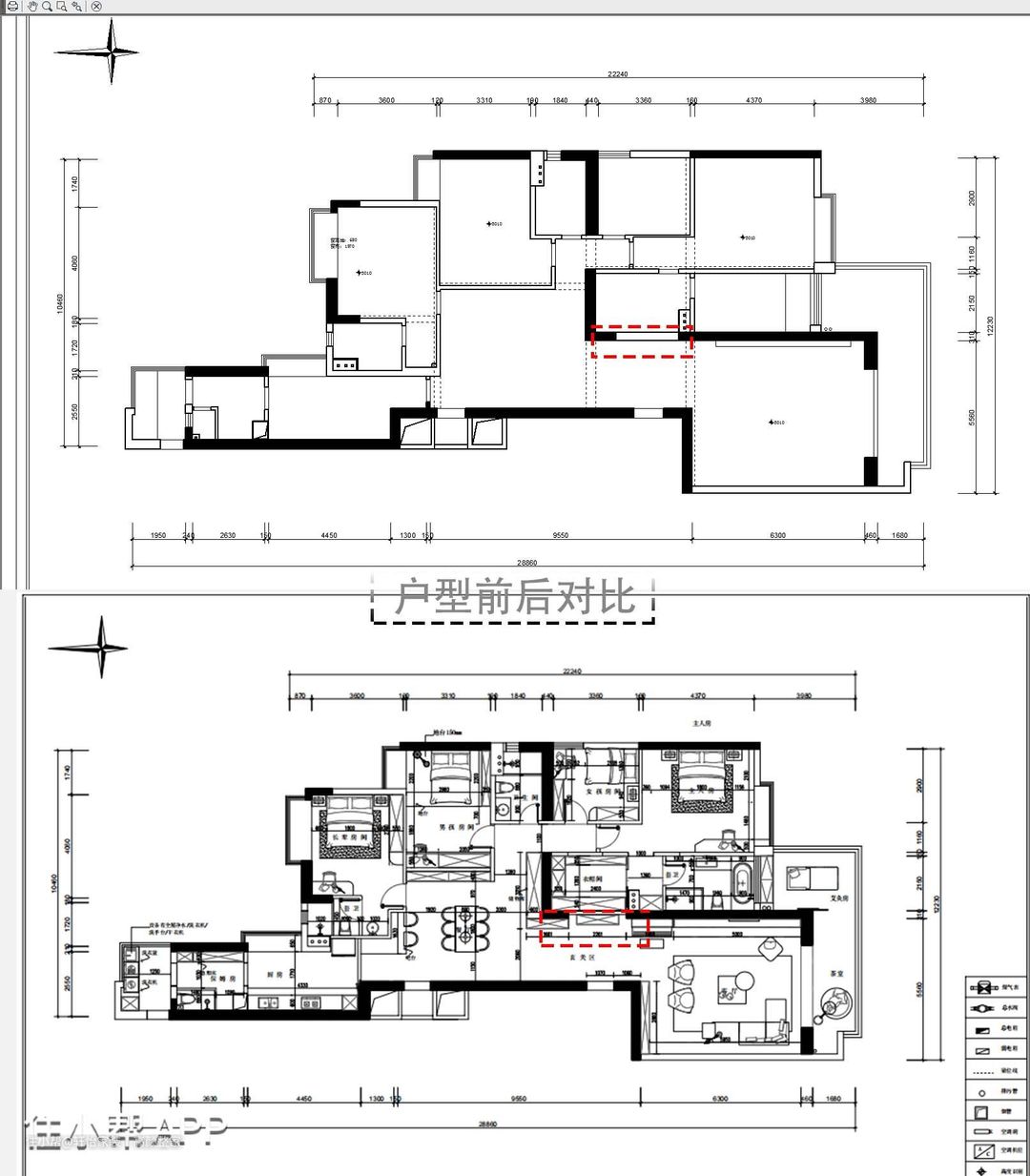
✿本案是一套面积为180㎡的5居3厅的改造,业主强调希望能给女孩和男孩房做一个主题房间,给孩子一个充满个性的迷你乐园;同时想在客厅要一个阅读区,希望能陪伴孩子一起成长。对于一家5口的居住环境,希望通过装修设计来打造现代感又融合法式浪漫情怀的新居! 💕总结: 业主对于整体的设计效果甚是满意,这个现代又带着法式浪漫的新居,经设计师的巧手下使用石膏线点缀,给整体空间带来不少的立体感,给业主带来意想不到的惊艳感。







在仿入门的金属边玄关柜,不仅能随手放置小物件,还能作为一个展示区。搭配射灯,营造出温馨气息,把氛围感瞬间拉满! 法式的装修浪漫,在装饰工艺上表现得极其明显,利用大面积的白色雕花,勾勒出法式的精致,对称的雕刻线条,尽显出恢弘大气的感觉,使得整个空间有一股强烈的优雅气质,彷佛把高雅奢华拉到了极致! 相较于传统法式的精雕细刻,现代法式从色彩和造型上更追求简洁的质感。家具围合式摆放设计,凸显法式空间的精致与优雅。 低矮的的茶几,预留了宽敞的通道,也为生活铺垫了更宽裕的置物空间! 红色丝绒沙发自带C位气场,搭配其它两个不同色的布衣沙发,总体和谐,不仅视觉上充满舒适感,还给人一种不平凡的高级感! 而带来的不便,同时还不会影响我们在沙发上的布衣沙发内还设计多功能置物板,方便日常会客闲聊时水杯的放置,也避免因茶几距离太远极致坐感! 阳台和客厅的打通,不仅能在视觉上起到“扩大”的效果,同时对于空间的布局选择上更加自由。 从室内直观到阳台,一览无遗的规整,花主灯映衬下的客厅,满是生活的气息,温暖极了,让业主全方位感受生活的美好! 电视柜与背景墙色调统一,同时石膏线背景和电视巧妙的融合一起,使得在框内的电视起到一种很好的装饰视觉效果,直接提升整体格调,让客厅空间看起来更简单大方。 搭配白色石膏线,在线条上的延申使得客厅空间延申,视觉更开阔。同时搭配电视柜这么装,既美观,还能搞定收纳!妥妥的实力与颜值并存! 为了可以更好地培养孩子养成阅读的习惯,特意在客厅也做了一组书柜,不仅赋予了客厅更多功能,还能为休闲的客厅添上浓浓的书香气息。 为了可以更好地培养孩子养成阅读的习惯,特意在客厅也做了一组书柜,不仅赋予了客厅更多功能,还能为休闲的客厅添上浓浓的书香气息。 同时也完美将客厅划分两个功能区。一边是会客休闲区,一边是孩子阅读区,既能照看到孩子,随时与孩子互动,又能让大人和小孩有各自的休闲空间,实现各自娱乐,又能彼此陪伴。




设计师在玄关柜与餐厅链接的区域,利用转角的凹位设计一个到顶的顶转角柜,视觉上相当显眼,同时让转角空间变成一个小型杂物间,功能性十分强,使用便捷,充分满足业主一家五口的收纳需求。 嵌入式的网格酒柜,既充分利用了空间,同时酒柜设计本身就具备很强的艺术可塑性,给人一种大气的感觉,瞬间提升餐厅的“颜值”。 考虑到原户型采光较差,设计师大胆加入吧台的设计,动线流畅,让厨房采光照射进餐厅,增加整体的通透性,完美解决餐厅昏暗问题。 同时考虑到自然光比较弱,客厅整体采用无主灯+主灯结合的方式,利用线性灯带进行基础照明,柔和不刺眼,极大的提升空间的时尚度和设计感,将现代风呈现得淋漓尽致。




主卧整体沿用法式常见的素净米灰色系,整屋采用石膏线的点缀,线条的利落尽显简洁,让整个空间变得有层次感,既不复杂也不突兀,轻松提升卧室的档次和美观度! 考虑到主卧的采光问题,还特意打造一个飘窗。占地虽小,但却能给人无数的遐想,不仅满足良好的卧室采光,同时还满足日常观景需求,开阔卧室的视野。 一扇拱门的设计,让开放式的两个空间进行链接,增加整体的空间感,让业主在卧室与卫浴之间穿梭,更加自如。







女儿房 整个空间使用素净米灰色系,搭配浅粉色,看似简单却让人心动不已! 墙面采用羽毛装饰,给房间增加丰富性,给孩子打造一个温馨浪漫,甜美梦幻的童趣空间。 嵌入式到顶的衣柜把空间利用到极简,平开门的设计,帮助卧室收纳物品; 保持卧室的整齐,还不担心因其不稳定而产生的安全隐患。 透明的收纳柜,让物品一目了然,方便东西一眼就能找到! 一张恰到好处的书桌搭配洞洞板,既满足孩子日常学习所需,又能在不破坏墙面的情况下加大收纳,实现美观度与实用度的双赢! 男孩房 充满宇宙和星空元素的童趣墙布,符合男孩房的性格,同时硬朗的线条凸显空间的视觉感,趣味又好看。 儿童房做了地台设计,地台下方安装了灯带,作为辅助光源,与主光源共同照明空间,无形中丰富空间的层次感,同时还能提示避免磕碰。 地台的一侧是玩具书架二合一柜子打造,增加收纳空间,还能培养孩子良好的收纳习惯。 柜子对面是飘窗设计,动线设计合理,对窗设计增加卧室采光,完美给孩子一个充满个性的迷你乐园! 衣柜+书桌的一字型排开设计,收纳性超强,空间有了更好的整体性。



洗手台在卫生间门外,这样的两个空间互不干扰,同时使用也不会发生任何冲突。 卫生间做了淋浴设计,地面防水条高度五厘米左右,更好的锁水不把外面的地面打湿。透明隔断设计在视觉上扩大范围,使卫生间更具时尚感。 同时浴室柜底部留空,避免潮湿影响使用寿命。也考虑到储物功能的需要,选择带有储物功能的洗手台,美观且使用!



封窗的阳台,给卧室增加一层保护,同时减少风沙的侵袭,更能确保卧室整体的干净卫生。 将阳台打造成一个小茶室,将阳台空间利用到最大化。 泡上一壶茶静坐在此,静享生活的美好 为增加收纳空间,阳台还利用凹陷位添置收纳柜,美观又实用! 同时阳台添置一张可折叠的床,享受午后的阳光,别提多惬意了!而且不用时还能收起来,不占地,随时拿起来随时用。
