

本案是位于上海松江区的一套莘闵别墅,屋主lucy一家6口人居住,整体房子面积尚可。供设计师发挥的空间很大。她认为让家庭每个年龄层的成员,能在这所房子里找到个人“理想标地”很重要。 改造痛点:项目原有户型是两层送地下室加阁楼的上叠别墅,原有楼梯位置动向不合理比较局促。卫生间面积较小,厨房餐厅位置不好摆置,一层南北阳台没有利用起来,卧室空间较小,主卫开门对着主卧室。 改造主题为:亲子设计&三代同堂。以楼梯位巧改,重新布局规划家居动线为重点来进行空间改造。整体设计风格为:轻奢&现代法式混搭,让我们一起来看看Lucy新家日记吧!(Ps:因业主隐私保护,部分空间不对外展示)


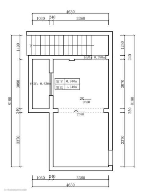
-First -B1原始结构图-Before/After平面布局图&彩屏图 -B1功能区分布:车库/庭院 #户型图#布局图


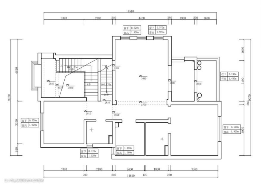
-Second -1F原始结构图-Before/After平面布局图&彩屏图 -1F功能区分布:入户玄关/楼梯/储藏间 #户型图#布局图


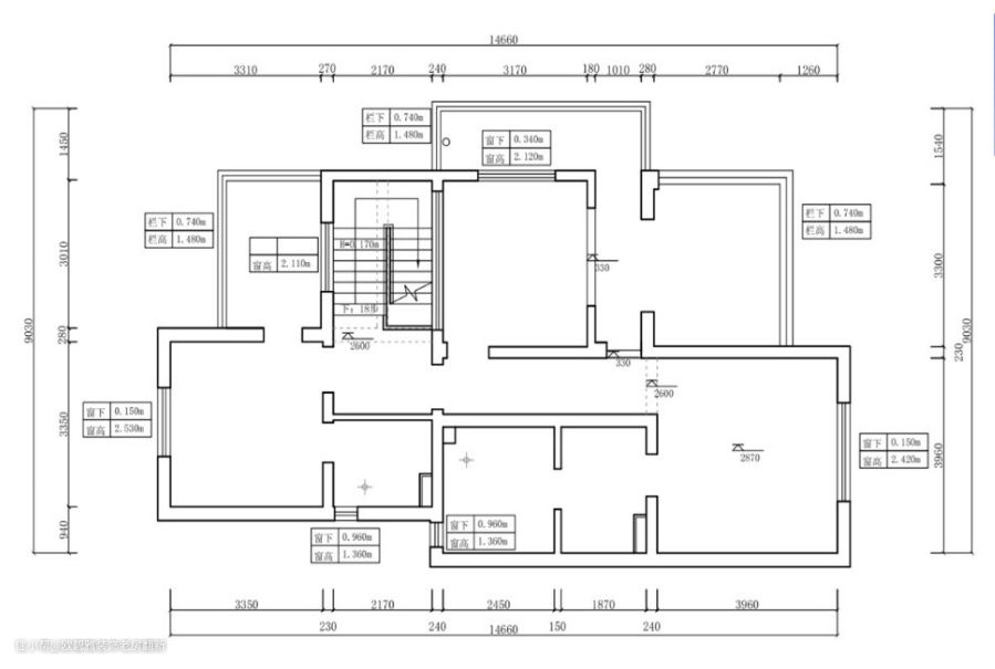
-Third -2F原始结构图-Before/After平面布局图&彩屏图 -2F功能区分布:厨房/餐厅/水吧/食品间/客厅/阳台/卫生间/保姆间 #户型图#布局图


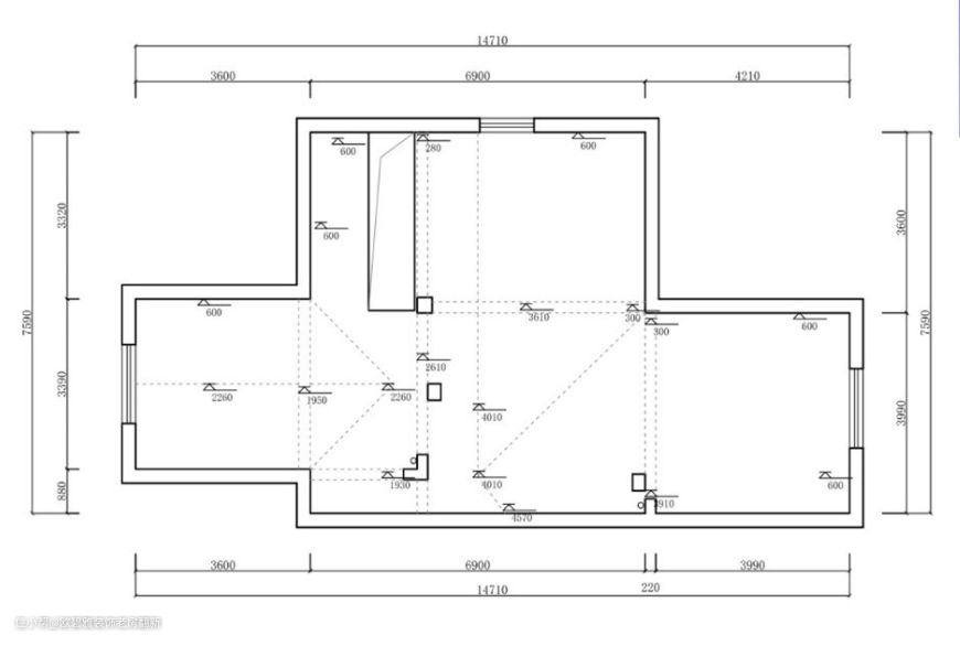
-Fourth -3F原始结构图-Before/After平面布局图&彩屏图 -3F功能区分布:楼梯/主卧/男孩儿房/女孩儿房/衣帽间/卫生间 #户型图#布局图


-Fifth(阁楼) -4F原始结构图-Before/After平面布局图&彩屏图 -4F功能区分布:楼梯/办公区/瑜伽区 #户型图#布局图
-Style项目风格:轻奢&法式混搭(上海市松江区-新南路壹号) -项目诉求&简概:(Design Highlights) ——整屋设计改造亮点提炼: ❶进门玄关端景,可以有效阻挡视线,保证私密性,大量鞋柜跟收纳柜连通,中间镂空,有效延伸玄关的视觉空间效果。 ❷原有楼梯的位置换位,达到整体楼层的动线更加合理大气通透,南北阳台充分利用起来休闲、娱乐、喝茶聊天,增加衣帽间,给主卧室设计了套房功能。 ❸阁楼打通,大空间的面积利用敞开式书房、娱乐室、瑜伽室、大大利用公摊面积。 ——区域设计改造亮点提炼: 〰️1/客厅亮点:去客厅化设计,大横厅的结构,去掉电视为中心的模式,用围合式布局来布置家具。这样的设计让亲人和朋友之间的交流和互动更为温馨亲密,客厅不再是以往只作为电视观影的区域,壁炉和钢琴做了空间呼应,装饰墙面造型左右对称,所有家具虽然造型不同,在摆放的时候都做到了空间对称,增强趣味性,同一空间下,玩耍、休息、休闲……在这个场景下可以作出多重选择。 〰️2/餐厅亮点:西厨餐厅一体化,整个空间非常开阔,吃饭做饭都在同一空间。采光和通风得到优化,视野也更加通透,中西厨房布局。做饭的同时可以和家人聊聊天,也可以时刻关注家人动向。 〰️餐厅面积:18㎡餐厅采用长条形餐桌更具有现代氛围。整个空间大面积运用了高级而有质感的、低饱和的奶油色,表达特殊而理性的温暖。 〰️3/厨房亮点:厨房用U型橱柜来强化区域分隔,白色墙砖、白色吊顶和白色岩板台面起到提亮作用,让整个厨房空间既时尚,也不显压抑。窗前配置水槽,洗、切、炒动线流畅,水槽边配置洗碗机,方便将餐具初步清理后放入洗碗机,整个动线最短,充满人性化考虑。 〰️厨房墙地采用1.5米×0.75米大砖对缝铺贴,可以使墙面减少缝隙,U型橱柜,搭配嵌入式冰箱,整体颜色跟西厨一致,配合防水石膏板吊顶,即美观大气又舒适。 〰️4/卫生间亮点:主卫采用1.5米×0.75米大砖对缝铺贴,浴缸侧面独特大块花砖克莱因蓝,利用需要包管的位置砌筑壁龛,既美观也增加了空间进深。开放式的储物位置更方便拿取物品。 #户型图#布局图#改造#客厅

【欧碧雅HOMELAB】一楼庭院上来就是入户玄关。进门玄关端景,可以有效阻挡视线,保证私密性,大量鞋柜跟收纳柜连通,中部空间镂空镂空,有效延伸玄关的视觉空间效果。 顶天立地的鞋柜可以提升入户15%收纳率。玄关设计简洁大气,统一色定制柜体设计+金属线条,轻奢质感显然而出。为了削弱柜体带来的厚重感,拾阶而上的手扶梯全部采用木头踏步+玻璃扶手设计。在材质上互相平衡,最大程度的凸显出材质搭配的巧妙性。 #玄关#入户#鞋柜#储物#轻奢#法式#现代#别墅




鞋柜的顶端还设计了整面墙的穿衣镜,方便业主一家进出门check一下每日的ootd。穿衣镜的设置于空间来讲要拉长纵深感的视觉效果,镜子对面的大面积落地窗对称下,空间就更显通透明亮。 #玄关#入户#鞋柜#储物#轻奢#法式#现代#别墅


【欧碧雅HOMELAB】西厨餐厅一体化,整个空间非常开阔,吃饭做饭都在同一空间。采光和通风得到优化,视野也更加通透,中西厨房布局。做饭的同时可以和家人聊聊天,也可以时刻关注家人动向。 餐厅整体的布局相对比较简单,6人位的餐桌设计,满足业主住家所需。因为餐厅区域面积比较小,在布置上都尽量简化。黄铜线条灯、大理石餐桌、L型水吧台....尽量以秩序感和平整度高的设计元素和空间融合。餐厅面对入户门,进入即刻就会感受到井然有序。 #餐厅#吧台#餐桌#餐椅#西厨#储物#轻奢#法式#现代#别墅

餐厅面积:18㎡餐厅采用长条形餐桌更具有现代氛围。整个空间大面积运用了高级而有质感的、低饱和的奶油色,表达特殊而理性的温暖。 #餐厅#吧台#餐桌#餐椅#西厨#储物#轻奢#法式#现代#别墅



水吧台是女业主Lucy最爱的地方,她喜欢研究咖啡和烘培,平时没事的时候就可以自己在这里呆上一整体。餐厅这里为了满足储藏食物的需求,提前预留了冰箱的位置。 (ps:图示业主的冰箱是两个单门冰箱拼在一起的,不是双开门冰箱)据业主说这个设计比双开门冰箱要更香,友友们有地儿的话可以try try~ #餐厅#吧台#餐桌#餐椅#西厨#储物#轻奢#法式#现代#别墅


📝图示尺寸&材质标注:⬆️

【欧碧雅HOMELAB】:厨房用U型橱柜来强化区域分隔,白色墙砖、白色吊顶和白色岩板台面起到提亮作用,让整个厨房空间既时尚,也不显压抑。 窗前配置水槽,洗、切、炒动线流畅,水槽边配置洗碗机,方便将餐具初步清理后放入洗碗机,整个动线最短,充满人性化考虑。 #厨房#橱柜#操作台#收纳#中厨#储物#轻奢#法式#现代#别墅


厨房墙地采用1.5米×0.75米大砖对缝铺贴,可以使墙面减少缝隙,U型橱柜,搭配嵌入式冰箱,整体颜色跟西厨一致,配合防水石膏板吊顶,即美观大气又舒适。 #厨房#橱柜#操作台#收纳#中厨#储物#轻奢#法式#现代#别墅


图示可以看出业主一家超治愈的收纳习惯,从储物柜到碗柜拉篮,每一隅空间都整理得井然有序。厨房墙地一体全部用地砖上墙,这样既能促成风格统一且整体给人感觉更为大气。 #厨房#橱柜#操作台#收纳#中厨#储物#轻奢#法式#现代#别墅

【欧碧雅HOMELAB】原有楼梯的位置移换,达到整体楼层的动线更加合理大气通透。通过楼梯换位的设计,入户玄关的位置就多了一间储藏室,做一家人的“深夜食堂” 对于经历完疫情三年的友友们,这个食物储藏间简直不要太香。宜家买来的置物货架就可以解决掉这里的食物储放问题,整洁干净又非常的实用。 #储物间#置物架#轻奢#法式#现代#别墅


#储物间#置物架#轻奢#法式#现代#别墅


【欧碧雅HOMELAB】去客厅化设计,大横厅的结构,去掉电视为中心的模式,用围合式布局来布置家具。这样的设计让亲人和朋友之间的交流和互动更为温馨亲密,客厅不再是以往只作为电视观影的区域。 壁炉和钢琴做了空间呼应,装饰墙面造型左右对称,所有家具虽然造型不同,在摆放的时候都做到了空间对称,增强趣味性,同一空间下,玩耍、休息、休闲……在这个场景下可以作出多重选择。 #客厅#沙发#壁炉#茶几#落地窗#绿植#轻奢#法式#现代#别墅


摒弃芜杂,保留空间纯粹。利用整面墙落地窗引入自然光线,外部空间景色和室内设计布局融为一体。大理石通铺客厅地面,鎏光顺滑的石材让空间有了冷静、克制的低调奢华质感。 灰色弧形贝壳沙发+复古酒红丝绒沙发形成了客厅区域视觉色彩对冲和平衡。客厅一角的钢琴演奏出美妙乐章,予以生活浪漫诗篇~ #客厅#沙发#壁炉#茶几#落地窗#绿植#轻奢#法式#现代#别墅



客厅的墙面是定制的护墙,整体以纯白色为空间做基调铺陈。用法式石膏线条做立面装饰,搭配几何形黄铜吊灯,调动空间轻奢质感。法式石膏线条壁炉,想象在冬日与爱人围炉而坐,伴随着熊熊火光便能与爱人消磨一整个冬日。 #客厅#沙发#壁炉#茶几#落地窗#绿植#轻奢#法式#现代#别墅



#客厅 Before/After 对比图

【欧碧雅HOMELAB】拾阶而上进入3F区域,这里原始户型楼梯的位置。因为整栋别墅楼梯移位空间置换,置换后的空间面积很大,就设计成了公共卫生间区域,方便在早8晚9高峰时期也能同时使用。这里的卫生间洗手台外移,使用时就不会摩肩擦踵的感觉。 镜前灯的设计拉长区域内的视觉比例,搭配墙地一体的石材铺贴,空间轻奢感显然而出。台盆柜也选择了跟地面统一色的使得空间整体更完整,而且也能负担掉区域空间的收纳需求。 #卫生间#洗手台外移#马桶#台盆#镜前灯#轻奢#法式#现代#别墅

上下两个卫生间根据使用习惯进行了不同的布局设计,一个是淋浴室的三分离,一个是台盆外移。在风格上则比较统一都是以现代轻奢为主,顶面的射灯设计将灯光运用得恰到好处~ #卫生间#洗手台外移#马桶#台盆#镜前灯#浴缸#轻奢#法式#现代#别墅

主卫采用1.5米×0.75米大砖对缝铺贴,浴缸侧面独特大块花砖克莱因蓝,利用需要包管的位置砌筑壁龛,既美观也增加了空间进深。开放式的储物位置更方便拿取物品。 #卫生间#洗手台外移#马桶#台盆#镜前灯#浴缸#轻奢#法式#现代#别墅

【欧碧雅HOMELAB】原有楼梯的位置换位,达到整体楼层的动线更加合理大气通透,给主卧室设计了套房功能。进入主卧空间超大落地窗将室外景色纳入室内,也让区域内光感流通。卧室的整体配色以大象灰+米白色搭配,低调中透露出轻奢质感。 #卧室#床#衣柜#电视柜#轻奢#法式#现代#别墅


卧室采用了中央空调的设计,避免壁挂式空调给空间带来杂乱感。顶天立地的衣柜设计,负担了主卧空间所有收纳需求。为了释放空间体量感,转而电视柜就采用悬空设计,能达到置物需求又不影响整体设计。连接电视柜的角落区域还设置了梳妆台,供女业主日常梳化。 #卧室#床#衣柜#电视柜#轻奢#法式#现代#别墅

#卧室 Before/After 对比图

【欧碧雅HOMELAB】哎呦!不错喔~作为傲娇“公主伦”的迷弟,房间不屌怎么行呢? 儿童房改造:卧室区域整面墙半圆弧型窗户,自然采光优越。围绕窗户以下的空间做了整面书柜设计,高低不一,同时满足储物和家庭作业需求。 作为Jay的迷弟,房间必须得有单独展示区域为idol应援。书桌后面空白墙面预留,这里用来张贴Jay的所有周边。从杰伦的第一张专辑《Jay》到最具代表性的红帽衫造型《范特西》时代的眼泪,谁哭了我不说..... #儿童房#床#衣柜#阳台#书房#轻奢#法式#现代#别墅

#儿童房#床#衣柜#阳台#书房#轻奢#法式#现代#别墅


改造后将原来露台封顶作为一个休息区+书吧设计,一屋两用提高空间的使用率。卧室连接露台区域,无隔断加设,进入空间即可就能拥有超强视野。室外的景色纳入室内,舒适度拉满。 #儿童房#床#衣柜#阳台#书房#轻奢#法式#现代#别墅


【欧碧雅HOMELAB】女孩儿房位于3F空间的末端,也是拥有超大落地窗设计,可以将室外的景色纳入室内。从布局陈设来讲就相对比较简单,以忧郁的蓝色为空间主色调,宣示着少女的反叛神秘感。 卧室部分往右边的位置原始是一个露台,但为了提高利用率把露台封顶设计成了书房+衣帽间(ps:应小业主隐私需求,无照片释出)有相同户型的朋友,也可以参考同款设计~ #儿童房#床#衣柜#阳台#书房#轻奢#法式#现代#别墅

【欧碧雅HOMELAB】3F靠近女孩儿房的楼梯转角一侧,因为位置置换就多出来一个区域空间。设计成了衣帽间,主要用于女业主来储放衣服和包包。因为空间比较小,按照使用需求设计成了无门板挂衣区和包包置放区。内嵌灯带设计方便照明同时在灯光加持下让物品更具氛围感。 #衣帽间#衣柜#储物#收纳#轻奢#法式#现代#别墅

【欧碧雅HOMELAB】原有楼梯的位置置换移位,达到整体楼层动线更加合理大气通透。拾阶而上,皆是对美好家居生活的规划。从玄关而入到4F的区域,全部采用木质的踏步+玻璃扶手的搭配。 空间整体体量感轻又通透明亮。大幅的抽象画悬挂在楼梯处为空间增添了几分艺术氛围,搭配黄铜吊灯轻奢感尽显。从这里可以看出来家里的每一处细节都很考究,尽量让空间和风格融合,整体完成度高。 #楼梯#吊灯#踏步#扶手#轻奢#法式#现代#别墅

【欧碧雅HOMELAB】阁楼打通,大空间的面积利用敞开式书房、娱乐室、瑜伽室、大大利用公摊面积。首先我们进入的是书房的区域,这里的位置专属于男业主的。据女业主说男业主家庭时间大部分在这里消磨的,因为工作有会客需求,所以选择4F阁楼空间做书房。 #书房#落地灯#置物柜#书桌#轻奢#法式#现代#别墅

利用别墅原始几何形屋顶结构之美,为书房的设计增色,反而形成阁楼最为别致的一隅。书桌一旁设计了跟墙面齐高的置物柜,用来展示男业主的一些摆件藏品,也为这个空间增加了几分浓厚“器物之美” #书房#落地灯#置物柜#书桌#轻奢#法式#现代#别墅

书房的一侧单独设立了一个按摩区,方便男业主工作累了躺在这里小憩。这里也借助原始结构之美为区域空间增色,圆形的窗户设计将阁楼光线优化,使得空间明亮通透。 #书房#落地灯#置物柜#书桌#轻奢#法式#现代#别墅

【欧碧雅HOMELAB】4F最后一个区域就是属于女业主的私人领地。女业主说最初设计这个空间的时候,她就要求设计师能让她在这个空间完成健身、娱乐、下午茶、办公....阁楼的这一处就完美满足了这些要求。 因为楼下公共区域是去客厅化设计,对于女业主来说追剧属于比较私人的事情,在所房子最顶层空间就能达到她要求的绝对私人化。同时这里还可以满足她练瑜伽的爱好,偶尔迎接三俩好友进行“女性之话”也是很惬意和舒适家居时光。 #瑜伽室#地毯#置物柜#书桌#电视柜#轻奢#法式#现代#别墅

-【欧碧雅 HOME LAB】设计师和业主合影Part,本次合影由业主Lucy入镜~祝Lucy入住愉快~
