
装修前
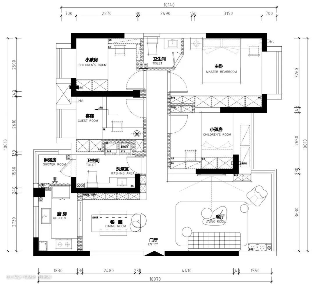
户型图解析:面积105㎡,四居室刚需房。入户见厅,无明显的玄关,客餐厅一体化布局。动静分区,动线清晰不交错。全明卫,采光佳。

设计亮点
入户即见厅,无明显玄关区。客餐厅一体布局,选用不锈钢黑色门套+木格栅装饰,于一开始奠定简美基调,视觉上有效区分客餐厅。






设计亮点
视线右移进入客厅,地面一路通铺750×1500cm的哑光灰磨砂大砖。顶面无主灯设计+单边吊顶,不压层高,彰显素雅大气之美。
软装搭配
客餐厅背景墙以蘑菇石装饰,材质统一,造型独特,凹凸不平的纹理,呈现出鲜明的层次感。莎红皮质拼接卡其绒布沙发,质感十足。


设计亮点
餐厨一体的开放式布局。延续客厅的设计,地面通铺灰色大砖,哑光高级精致。餐边柜设一组黑玻柜,内嵌灯带,作藏酒柜使用,优雅格调。
软装搭配
经典的灰白岩板餐桌椅,置于正中央,两侧预留过道。餐厨以透明三联滑轨门隔断,不影响室内采光。打造灰白系的空间,刚柔并济。

设计亮点
厨房,呈L型布局,洗剪切动线清晰合理。白色台面干净易打理。选择灰白系橱柜,上浅下深组合。右侧定制通顶收纳柜,将冰箱内嵌。




设计亮点
儿童房,以满足“睡眠+学习”两大功能为出发点。床靠墙设计,运用留白手法,培养孩子动手自主能力。淡蓝色床品+星黛露,灵动活泼。
软装搭配
靠阳台一角,定制悬空书桌+吊柜,满室温馨。地面通铺木地板,营造清新温润的体验感。墙上设洞洞板架,培养孩子的收纳能力。



设计亮点
主卧空间,整体上延续客厅的风格,深色系的空间,沉稳高级。顶面无主灯的设计,简洁大气。装点飘窗一角,将温柔惬意偷偷藏匿。
软装搭配
背景墙以格栅+灰色木饰面+氛围灯装点。设计在满足基本功能的前提下,让整体布局井然有序,优雅时尚,予以居住者舒适自在感。



设计亮点
卫生间,干区铺以灰色大砖,墙砖一体设计,定制无缝岩板一体陶瓷盆,质感十足。选用黑色不锈钢门套,搭配防水石膏板吊顶,美观实用。
软装搭配
洗漱台另一侧,上方做吊柜,黑色岩板下方,嵌入烘洗设备,空间得到最大化利用。淋浴区亦是墙砖一体通铺,设三面玻璃,采光俱佳。
