⚪️屋主从事汽车行业,考虑到想给小朋友换个更好的成长环境,就将老房改造项目提上日程。房子面积102㎡一家三口人居住空间特宽敞,在功能区布划上也完美避免了面积受限的扼腕难题。 ⚪️屋主夫妻希望打造一个醇厚、绵密口感的“奶油世界”给小朋友,另外空间整体开阔格局和通透感必须也得精巧拿捏。 ⚪️房屋改造主题为:极简奶油风&亲子设计,让我们一起来看看Ethan新家的Room Tour吧!

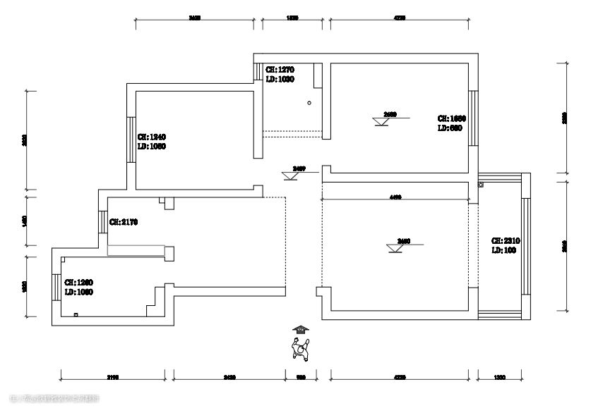
-V1-拆改前户型图 #户型图#布局动线

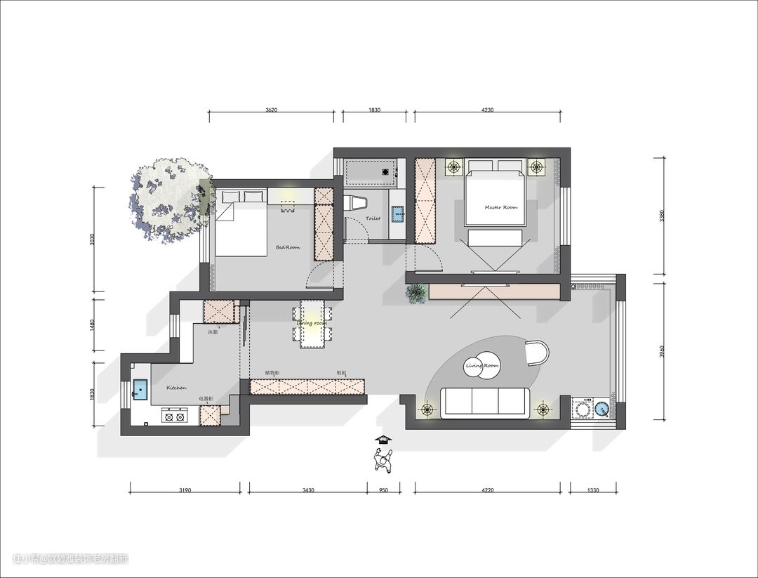
-V2-拆改后彩屏图(布局规划) After改造后布局调整: -整体“留白”为这个居所最大的亮点,视线之内保证空间的“纯净度”以奠定居室的质感基调; ❶客厅改造:悬浮吊顶+无主灯的设计,增添视觉层次变化,客厅阳台打通,通铺地砖使空间纵深比例加剧;提升开阔性&视觉亮度。客厅面积23.7平、局部尺寸:电视背景长4.5米,沙发背景墙长4.2米,客厅宽3.9米 - ❷餐厅改造:客餐厅无隔断,拉长视觉比例。餐厅紧邻厨房,为了保证餐厅两边引入光源,厨房采用极窄黑框玻璃门;空间通透感有了保障。藤编原木餐椅+花苞垂钓灯,加剧区域空内氛围感。餐厅面积10平 - ❸厨房改造:拆除原书房空间,扩大厨房面积,做U型布局 厨房面积.8.8平,材质:微水泥质感的墙体砖,砖缝用的环氧采砂,更显细节质感、地面通铺地砖空间完整度更高 - #户型图#布局动线

-【欧碧雅 HOME LAB】HALLWAY 入户玄关遵循“less is more”的设计理念,组合型边柜满足了区域内收纳需求的同时,也保证了空间的纯净感与完整度。为了避免顶天立地的柜体带来逼仄感,换鞋凳的区域柜子不做满,底部还特意留空。这样空间的层次感看起来更加的。 #玄关#入户#玄关柜#亲子设计#中户型#极简#奶油#现代


-【欧碧雅 HOME LAB】DINING ROOM 餐厅总面积10㎡,客餐厅无隔断,为的是拉长家居动线的视觉比例。餐厅紧邻厨房,为了保证餐厅两边引入光源,厨房采用极窄黑框玻璃移门;空间通透感有了保障。连着玄关柜一起的餐边柜可以负担掉区域内收纳需求,且保持视觉平整度,使空间风格更完整。 #餐厅#餐桌#吊灯#餐边柜#亲子设计#中户型#极简#奶油#现代

◐藤编原木餐椅+花苞垂钓灯,艺术感十足的摆件,将区域内氛围感烘托到极致~ #餐厅

悬浮式吊顶设计线条简单但又质感高级。原木餐桌倚靠墙面置放,突出餐厅区域的视觉重点。原木餐桌+藤编餐椅的搭配奠定了空间舒适感基础,乳白色的花苞吊灯投射出来氤氲灯光,点亮一家人用餐的幸福“食”光 #餐厅#餐桌#吊灯#餐边柜#亲子设计#中户型#极简#奶油#现代

#餐厅#餐桌#吊灯#餐边柜#亲子设计#中户型#极简#奶油#现代

📝图示尺寸&材质标注:⬆️ #餐厅#老房改造

-餐厅Before/After 对比图

-【欧碧雅 HOME LAB】KITCHEN 厨房面积.8.8平,拆除原书房空间,扩大厨房面积,做U型布局; 通过区分不同的功能组块(厨房&餐厅&客厅)打掉原来的书房加宽厨房面积,家居动线上更为清晰。材料选择上去掉传统边框门,采用更为极简的无边框门,使墙面更加一体化,减少繁复之感,契合“less is more”设计理念。 材质:微水泥质感的墙体砖,砖缝用的环氧采砂,更显细节质感、地面通铺地砖空间完整度更高 #厨房#橱柜#U字型#移门#亲子设计#中户型#极简#奶油#现代


从厨房可以看出来空间整体都在保证风格的统一性。整体线条硬朗的同时,但在配色上选择了“奶油白”干净利落的同时又有几分“融化感” 延伸曲折台面+柜体设计也提高了空间可利用率,可以满足多人同时使用,是家居生活里不错的互动娱乐区~ #厨房#橱柜#U字型#移门#亲子设计#中户型#极简#奶油#现代

📝图示尺寸&材质标注:⬆️

-厨房Before/After 对比图 #厨房#老房改造



◐整体“留白”为这个居所最大的亮点,视线之内保证空间的“纯净度”以奠定居室的质感基调;


-【欧碧雅 HOME LAB】Living Room ◐客厅面积23.7平、局部尺寸:电视背景长4.5米,沙发背景墙长4.2米,客厅宽3.9米:悬浮吊顶+无主灯的设计,增添视觉层次变化,客厅阳台打通,通铺地砖使空间纵深比例加剧;提升开阔性&视觉亮度。 规划动线格局,突出动区舒适美观,整体地面采用哑光大砖,使空间柔和而舒适,客餐厅分区的布局让空间层次更加使用美观。材质地面通铺地砖(规格750*1500)、材料品牌地砖东鹏,色彩:多乐士(baby白)阳台隐藏式晾衣架,释放空间 #客厅#沙发#LDK设计#电视背景墙#悬浮吊顶#亲子设计#中户型#极简#奶油#现代




从餐厅看向客厅空间视线开阔,通透明亮;整体性高无一丝多余。奶油白+原木营造出来醇厚、绵密的“舒适感”让你置于这所奶油风小屋,便可以融化掉一切日常细碎芜杂。欢迎进入Ethan超治愈的“奶油世界” #客厅#沙发#LDK设计#电视背景墙#悬浮吊顶#亲子设计#中户型#极简#奶油#现代





高低组合型蘑菇茶几,让客厅多了几分“憨态”石膏板电视背景墙后面做了隐藏式灯带设计,开关灯氛围都是不一样的。地柜跟电视之间留空的地方,削弱空间的“体积感” #客厅#沙发#LDK设计#电视背景墙#悬浮吊顶#亲子设计#中户型#极简#奶油#现代




沙发背景墙也无多余装饰,一盏落日灯就将氛围感烘托到极致。随意摆放的挂画和绿植使得空间多了几分艺术氛围和自然气息~ #客厅#沙发#LDK设计#电视背景墙#悬浮吊顶#亲子设计#中户型#极简#奶油#现代


📝图示尺寸&材质标注:⬆️



-厨房Before/After 对比图 #客厅#老房改造

-【欧碧雅 HOME LAB】ATHROOM 卫生间面积4.2平、长2.4宽1.8;水台盆墙排水,花洒暗装,隐藏式设计增加空间纯净度。同时可以起到颜值的提升,卫生间管道砌筑预留壁龛,增加收纳空间。材质:微水泥墙地一体砖,贴合整体的极简风格 #卫生间#收纳#壁龛#干湿分离#亲子设计#中户型#极简#奶油#现代


卫生间干湿三分离,每个区域都尽可能的留空。镜前柜的设计完美将盥洗用品都藏在里面,保持外部空间整洁度,同时还拉长视觉比例。台盆底部“悬空”的设计,可以削弱体积感,即使在相对拥挤的空间内也没有很强的逼仄感。 #卫生间#收纳#壁龛#干湿分离#亲子设计#中户型#极简#奶油#现代

-【欧碧雅 HOME LAB】Bedroom 进入卧室空间色调以灰白为基底,辅以莫兰迪哑红为色彩辅助。符合业主喜欢的调调,简单又时髦。卧室整体布局规划也很简单,一面顶天立地收纳衣柜+悬空床头柜即为卧室亮点所在。 避免过于单调,床头背靠一处做了硬包背板设计,为了加深整体的氛围感背板后面还设计了隐藏式的灯带。跟客厅的电视背景墙设计手法一致,不同空间遥相呼应。夜幕降临光晕随意打在背景墙,舒适感满满。 #卧室#收纳#柜子#床#亲子设计#中户型#极简#奶油#现代


#卧室#收纳#柜子#床#亲子设计#中户型#极简#奶油#现代

-【欧碧雅 HOME LAB】 Children room 最后来到儿童房,为了提升空间收纳率一面墙也全部都做了顶天立地的柜子。为了跟室外空间保持呼应,整体配色也是以奶油白+香槟色混搭。配色来讲都很简单、明亮,空间敞亮舒适感也更高~ #卧室#收纳#柜子#床#亲子设计#中户型#极简#奶油#现代

单独设立的书桌可以提供一处静谧之地,让小朋友心无旁骛的完成家庭作业。祝福小朋友在这样充满爱意的“奶油世界”里快乐度过童年时光~ #卧室#收纳#柜子#床#亲子设计#中户型#极简#奶油#现代



-空间整体Before/After (效果&实景对比图 ) #亲子设计#中户型#极简#奶油#现代

-【欧碧雅 HOME LAB】设计师和业主合影Part,本次合影由业主Ethan入镜~祝Ethan入住愉快~
装修过程花了多长时间? 3个月 你对这套作品最满意的地方在哪里,为什么? 整体都挺满意的。空间布划、色彩、材质感觉搭配都很“适宜”就是那种刚刚好,不多不少 对平面布局做了哪些优化改动,为什么? 布局的话基本就是保持原来的,唯一改动的地方就是拆除书房 区域纳入客厅,还有将阳台并到客厅一起。这样的话整体的视觉比例才会拉的长长的,而且南北通透性好,两边光线都可以引入室内。
