
说在前面 这是一个三年前的案子,房子是顶楼复式。 业主的一位朋友参观后,说如果他要是有一套这样的房子,这辈子都不想出门了。 这次设计改造中的确有些点是大部分人自己装修不太能接受的,比如四居改一居、裸露的钢结构、露台洗澡等等。但这样设计后房子的确更符合他们自己的居住喜好,毕竟平时基本上就是他们俩+两条狗住,引用业主的话:这套房子的效果和他们的匹配度还是很高,它就是他们生活里非常鲜活的一部分,彼此相处的很愉快~~






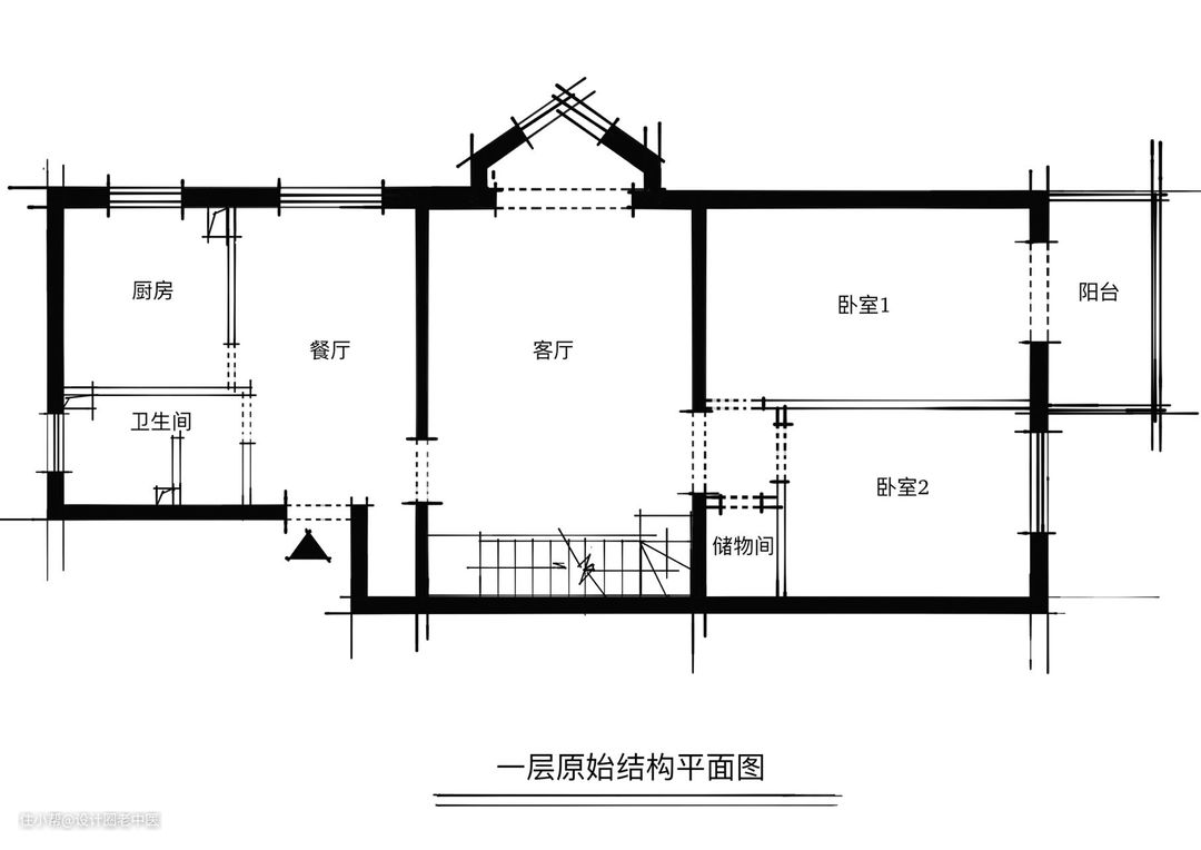
户型分析: 1.房子原始格局还是很不错的,就是不太符合他们的居住要求 2.原格局客厅夹在房子中间,采光有点不好 3.二楼卫生间门口区域比较浪费 户型改造: 1.把四居两厅格局改成了一居三厅 2.一层卧室空间合二为一,围绕新建矮墙形成客厅与办公区 3.打通厨房和原餐厅,F型布局集合中厨与西厨,操作空间倍增 4.缩小一层卫生间,把更多空间给入户储物 5.二层把两个卧室合成一个主卧套衣帽间 6.卫生间水盆外置,实现干湿分离 7.敞开式观景露台




注:红色区域为设计新建改造部分




















他们家就俩人住,一楼整个作为公共空间,卫生间满足基本功能就可以了,不用太大,所以就缩小了卫生间,把空间让给了相对来说更重要的入户收纳,没有做定制柜,而是选了一款鞋帽一体的挂衣架,通透又便捷。 原始结构入户左边就是一个小杂物间,相当于一个800库,过季的鞋、小推车、行李箱这些都可以收纳在里面。由于位置的特殊性,又想弱化存在感,就直接在门上装了镜子充当入户的穿衣镜,算是一种障眼法吧~




他们还是比较喜欢下厨的,原来的厨房不大,又是L型布局,很难满足他俩的需求。我们拆了原厨房隔墙,把餐厅也并作厨房的操作空间,实现超大收纳的F型布局。F型上半段是中厨主要操作空间,下半段主要是储物和小家电区。 厨房设备和窗户占了大部分墙面空间,就没有做吊柜,不过地柜的储物量已经完全可以满足他们了。 虽然是开放式厨房,做饭频率也高,但业主两年多使用体验告诉我们,只要买个大吸力的烟机,卫生还是很好打理的。




餐厅所在位置是原来的客厅,相比于原来的餐厅,不仅宽敞,视野更好了。 他家全屋做的水泥自流平,夏天的时候他们还挺喜欢光脚在家走的。 自流平整体效果还是非常好的,就是对施工的要求比较高,如果各工序环节衔接不到位的话,还是有开裂风险的。 右侧顶上是暖气管刷的黑色金属漆。 男业主喜欢画画,餐桌边的异形小阳台就是他的画室,家里墙上挂的装饰画,基本都是男业主亲手画的。






客厅是他俩平时待的时间最多的地方,把原来两间卧室打通,合为客厅和办公的区域。中间新建半高矮墙,既可以作为沙发的背景墙,也可以作为办公区与客厅之间的软隔断,四周都有过道,方便通行。 电视柜是直接水泥砌筑的,杂物都放在收纳篮里,低成本又美观好用。 金属钢板当初最主要的作用其实是墙体加固,不过施工过程我们双方都觉得裸露出来还是蛮酷的,就没有包裹,只做了防锈处理。 秋千是他们入住后装的,能在自己家里荡秋千,不要太爽哦~




沙发后面是2*0.7m的书桌,矮墙高度1m,高出部分放插座,同时这个高度也不会挡视线。 这个办公区在疫情期间可是立了大功。





楼梯没有做大的改动,换了实木踏步。扶手换成了线条更为简洁耐看的款式。 楼梯下面基本是狗子的地盘。 沿着楼梯踏步,一路都有感应脚灯,晚上就是不开灯也能照亮踏步,安全又方便。这次的地脚感应灯选择的是长条形的,造型上更纤细精致一些。




上了二楼是一个比较宽敞的过道,整个二楼作为休息空间,往右是主卧和衣帽间,往左是家政区和卫生间。继续往前走推门出去就是一个大露台。扶手是用麻绳做的,对折后固定两端,排成一串,有一种自然的亲近和通透感。 沿着过道是三个半高的展示柜,是金属加玻璃的材质,里面是他们喜欢的手办乐高还有旅行途中收集来的藏品。


这块我们规划为洗漱和家政区,把洗手盆拿出来,实现干湿分离。浴室柜旁边是家政柜和洗衣机柜,洗完衣服可以直接拿到露台晾晒,非常方便。



卧室是没有装门只装了布帘,主要就他们俩住,也不存在干扰隐私的问题。 阳台垭口的半高墙全部拆除,床头背景墙整体涂刷了艺术漆,和客厅的顶面是一种材质,这样形成一个深与浅的对比,会更有层次。 二楼原来的次卧改成了衣帽间,就在主卧旁边,换衣服也很方便。衣帽间的门洞改到了右边,这样不会一上楼就看见衣帽间。




除了客厅,露台应该是他们俩最爱待的地方,天气晴朗的时候,在这里喝喝茶聊聊天,不必去远方,向往的生活在这里就能实现。 露台的绿植都是女业主自己种的,她很享受打理这些花花草草的过程,随便剪下一些插在花瓶里,就能成为室内鲜活的装饰。露台还另外装了一个花洒,这也是和业主一起决定的大胆尝试,据说只要洗完一次,就会“真香”。使用频率甚至比我们预想的要高。
我们希望设计不要局限于空间、材料、色彩上,怎样能从居住者本身出发,让每位家庭成员住得舒服,住出专属自己的调子,打造出一所真正的把精神世界的寄托给家的理想宅,是我们一直努力研究和探索的。 快来找我们做设计吧~
