
装修前
A.屋主是位从事翻译工作的单身自由职业者。他的工作是在家中进行的,有时需要和在大学教书的几位书友开开“读书研讨会“,于是就在市中心临近书友大学的附近购置了一套05年建成的,只有29㎡面积的精装酒店式公寓。 B.因为原先交付的就是开发商统一装修的,所以对于屋主个体的使用者来说是缺乏实用上的考虑,和喜好上的兼顾的。 C.于是他通过书友找到我们,希望能通过重新的设计和改造,能满足他的以下几点需求: 1.原先的屋内没有供屋主读书、工作的地方,希望此次能在其内,哪怕是个安静的角落,能实现屋主在家看书、工作的功能; 2.能有一间安静的睡觉卧室; 3.偶尔能与三五志趣相投的书友,在家举办小型“读书研讨会”; 4.家中的杂物能有地方收纳,且有摆放书籍的地方。 在这只有29㎡面积的超小房子里,其他的需求和满足,他就交由我们自己去梳理和发现了......
装修后
在如此小的空间里!如何才能满足屋主的需求?是我们一直在纠结的设计痛点! 后来我们采取了"装置设计"这个设计课题。 通过单体装置的不同变化,在不增大空间面积的前提,变化出几种空间功能!


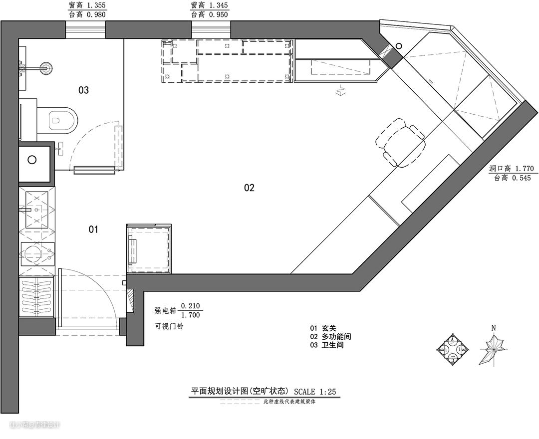
户型分析: 1.整体户型是一室一卫和进门正对带一简单厨柜的酒店式公寓。东北和东南临窗的位置各有一道拐弯墙体,形成了不规则的夹角形状; 2.房屋结构类型是“框剪”结构,大部分墙体都是“剪力墙”,墙体可改动幅度很有限。 3.由于大部分窗户朝北或东北,所以在白天的时间段里的自然采光入户时长有限; 4.进门处正对的是与卫生间的隔墙,使自然采光被遮挡住了大半,所以进门处的光线不是很充裕,主要是靠来自东北向里间区域的“余光”; 5.室内没有标准的厨房空间,只有进门处简单的一排带洗槽的厨柜,以做简餐之用,室内不通天然气。 6.原有卫生间面积较小,还要抬脚踏入,使用不是很方便; 7.整体户型很小也没有储藏间,收纳功能的丧失,从而造成屋主的生活用品随意乱放,给人以凌乱无序的感观; 8.此户所在的楼层是十几楼,且楼盘处于市中心位置,所以窗外的市中心景观较好;



设计亮点
平面方案解析: 1.从大到小来说,我们设计了“旋转变化的柜体”这样的单体装置,来实现空间形态的三种变化:①空旷状态 ②休眠状态 ③读书研讨会状态。借助这三种状态的变化,在29㎡的既定恒数里,来实现屋主的几种需求。 1.1.当“旋转变化的柜体”转向与窗户齐平的墙面时,拉下隐藏在装置中的“墨菲床”,空间就处在 ②休眠状态。实现了屋主对于卧室的需求,同时屋主躺在床上,随手也可以在装置柜中拿取想看的书籍,拉出并按下我们在装置柜中的“嵌入式阅读灯”,使屋主的卧床看书的随意姿态随性而发; 1.2.当“旋转变化的柜体”转向与窗户齐平的墙面时,使空间在中间部位保持①空旷状态。屋主在这只有29㎡的空间里,居然能有一偶空地,真是意料不到!至于在此地干嘛?就随屋主的意了:健身、打坐、打扫、发呆都可...... 1.3.当“旋转变化的柜体”转向挡住卫生间玻璃墙时,拉出隐藏在其内的会议桌,结合“装置柜”反面的书籍陈设架,③读书研讨会状态就被带出了。 2.在上面的“墙体改造分析”中,我们已经说明了进门处的设计处理。这里就不再复述了!需要补充的是,我们将进门的背后设计了进门换鞋换衣和收纳清扫工具一体的通高“玄关柜”,同时此柜体与简易厨房在同一轴线上,即保持了进门的视线的连续性,也改变了第一眼的原屋不近人意的杂乱感! 3.在简易厨房对面,我们设计了一个“设备柜”,里面暗藏有我们按设计要求替屋主新购的冰箱、洗衣机。以解决原来冰洗设备随意乱放的状态。此设备柜与“旋转变化的柜体”之间也暗藏了隐形对开门,使里间空间与进门处的厨卫空间做到随需开合或封闭,以适当保护家里有访客时的必要隐私。 4.我们将原卫生间的洗脸池移出,与简厨的洗槽合二为一,这是小空间中的功能合并,以放大卫生间空间的做法。原先卫生间的面积就只预留给了入厕和淋浴空间,无形中做出卫生间的干湿分离。座便器也选用挂墙式的,这样卫生间的排污,无需再抬高地面了,且座便器不用面对进门处,躲在了全屋的管道井侧面。 5.在里间位于东南角的斜墙,我们连贯一体的设计了带有储藏功能的“卡座”和飘窗前的书桌。以满足屋主在“个人读书写字工作的角落”和来访客时的落座接待的功能。而且那个“读书写作角”也是全屋采光和景致最好的位置。同时也使此斜墙现在看来,斜得是那么的恰到好处! 6.在“飘窗书桌”的背面,我们设计了个“综合柜”,它既是衣柜也是隐藏空调挂机的柜体。 7.全屋的色彩上,我们都使用同一种色调:白色和浅灰!,使空间的整体性增强,素雅中放大!且易于打理! 墙体改造分析: 1.我们将卫生间的非承重墙体拆除,并把原卫生间的抬高地面降低。即扩大了卫生间的面积,也方便屋主不用每次进出卫生间都要抬脚出入了; 2.卫生间湿区用钢化玻璃围合,使光线从原卫生间窗户直接照至进门玄关处,以解决进门处光线偏暗的问题;







设计亮点
我们拆除进门正对的隔墙,用透明玻璃取代砖砌隔墙,空间一下舒展开了,自然光线也从东北向和北向同时叠加,使进门后的第一感官空间有了质的改变。 整体的色彩上,保持着统一的白灰基调,配以硬朗的LED型材灯,使人看上去空间整洁素雅,科技感十足! 进门的第一空间感官的前后对比! 顶部的LED型材灯,和“迷你厨房”的吊柜和地柜的下口型材灯,都对空间起到“指引视线”的作用!以拉长空间的纵深感!右侧的镜面柜门,起到了放大进门空间的宽度感的作用! 两感的拉长与放大,都是我们在蓄意的增大空间的设计,以解决原先进门空间给人的观感不好尺度不够的问题! 为保持“迷你厨房”台面和墙面的纯净,我们用白色石英石做了带背板的框形盒体,嵌入地柜与吊柜之间。 台面上的电源,我们用安装在吊柜里的“升降电源”取代。 墙排龙头和LED型材灯的加入,使人在此使用厨房时的便捷性很大提高,同时也使屋主使用时,不忍再回到从前的混乱状态了! 屋主进门玄关换鞋换衣的“玄关柜”隐藏于进户门的背后。 镜面柜门起到了放大空间的作用,也是进出门时仪容整理的常备物! 玄关柜与迷你厨房连贯一体,使进门后的换鞋换衣洗手动作也也被连接在一条动线上完成! 进门处“简易厨房”对面的设备柜内,按设计要求新购的冰箱、洗衣机上下安放,解决了原先现场冰洗家电乱放的现象!






设计亮点
卫生间湿区墙面整体使用了无缝的微水泥,在整体感上得到了意想不到的完整效果! 地面我们使用了和微水泥质感接近的地砖,是因为在淋浴区域用水,不是能及时淌水干净,从而造成有的地方的积水侵泡着微水泥,会造成微水泥的“起鼓开裂”。 其上的电热毛巾架,在前期水电施工交底时,要请供应商提前上门给到出线位置的定位,以免造成后期毛巾架到现场时安装不了。电工还要重新开槽移线,瓦工油工修补墙面槽口的问题。 改造后的卫生间营造成透明的玻璃盒体,且使卫生间与其他的空间光线能相互影响,面积上也能互补,彼此做面积上的加法,使空间变大,时尚而又前卫! 挂墙式座便器,使打扫卫生更加方便! 为了建造出极简没有下挡水石材的“下沉式淋浴房”效果,同时也要保证几乎与卫生间湿区地面等高的其他空间,不出现渗水的现象。 我们在卫生间湿区地面做了两次防水,第一次是丙纶布防水,第二次是滚涂柔性防水,最后再做渗水实验! 旋转柜体与设备柜之间我们设计了可以完全隔断里外空间的对开门,使用户隐私得到必要的保护,同时在29㎡的小公寓里营造出传统的可开可合的再分空间格局。 做通顶入墙入地的钢化玻璃隔断,需事先在墙地面和顶面预留出相应的插入玻璃槽口。 还有一点更为重要:一定要在玻璃下单前,测好电梯轿厢能进玻璃的最大尺寸,如走消防楼梯运玻璃,一定要在拐弯处测好玻璃可拐弯的最大尺寸,以免玻璃做好后上不了楼,无法进入工地现场。









设计亮点
休眠、读书研讨会、收纳、独处写作、空旷等几种功能在此同一空间的复加,我们用“变脸”来实现。 可变的单体装置设计,使空间机能变成一场游戏! 设备柜的背板,我们做出洞洞板来使安置于其中的冰洗设备便于散热,同时也实现出在背后空间中洞洞板的随意搭接的实用性。 整体空间以白色和浅灰为主,自然的木本色在其中点缀,在建筑格局无法改变的前提下,最大限度的利用自然光线,纯白的色调弱化了空间的边界,放大了空间的尺度感。 屋主打开“墨菲床”,随手拿取想看的书籍,拉出并按下我们在装置柜中的“嵌入式阅读灯”,使屋主的卧床看书的随意姿态应运而生。自然木的背板,使层次和温暖感得以提升! 用减法删除空间中的多余形体,灯具、电视、空调都被隐喻起来,突兀形体被概念化消失。 极米投影仪打在墙上的就是我们的即将发表的整屋案例《03年的130平公寓被“极简”后,居然分出了“前后院”》 空间在卧室角色扮演状态下,灯光也是恰到好处的点缀。 线性磁吸轨道灯,由顶部下墙至飘窗前的书桌上,科技感的指示性交待着空间的景深!









设计亮点
利用率低的东北拐角处,我们设计通顶的柜体,成为空间中的轻质型收纳点,既是衣柜也是空调挂机设备柜! 依附于墙面与角落的位置,衣物、挂机可以藏在融入柜子中,使屋主在视线上对空间没有多余形体的纯粹性的认知被提炼出来。 在只有29㎡的空间,我们通过两个柜体之间的隐形对开门,使空间再次划分成里外两重空间! 我们借助特殊的书桌收缩五金件,从装置柜中拉出打开组装成会议桌。摆上可以叠起收放的凳子,读书研讨的状态形成了! 本来屋主的研讨会需要是三四个人即可,现在项目落地后此状态下能容纳六至八人。看来屋主的书友可以再增加人数了! 读书研讨会状态下的会议桌和书柜的景致,和即将开始参会的氛围!








设计亮点
屋主需要伏案工作的地方,我们将书桌与卡座沙发设计成一个整体构件,上方的墙面安装了“wall unit”搁架系统,且将顶部的磁吸轨道灯也连接下降到桌面,轨道上可以自由吸附灯具,也减去桌面的台灯形体。 整套“伏案工作装置”安置于自然光线充沛且室外城市景色怡人的飘窗旁,一个独处文气的角落就此打造出来! 空间在不同状态的变化下,飘窗处的书桌都以不变应着万变!
软装搭配
“wall unit”搁架系统,减轻了书桌上方的形体!



设计亮点
几种不同表情的盒体,在空间场域里上演着”透明与白板“,”点状阵列与格子“的小游戏!

设计亮点
回想当初从量房至一步步成形的施工过程,仿佛也是一场变化的游戏!

设计亮点
我们在全屋中设计的木饰面柜体,主要以混油白色和自然木色为主,于是在打开的柜体内部我们选择了绿色的免漆板,希望在着偏科技感和素净感的空间中,突然自然的元素在与屋主捉着迷藏! 洞洞板的运用,使屋主的随手摆放和拿取物品变得很自然和随心,尽量不会把小物品胡乱摆放了!
