

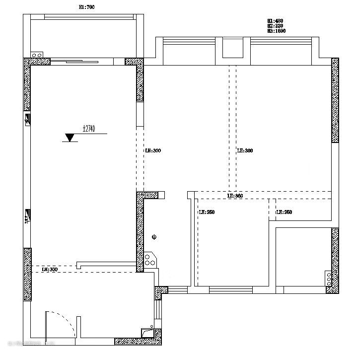
装修前
户型分析: 1.原户型房间比较小,存储空间有限; 2.客厅、厨房面积比较小,增加利用空间; 3.主卧区域除了床头柜和小衣柜缺少其他的储物空间。
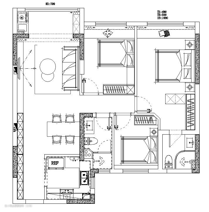
装修后
户型改造: 1.房间在床头都增加了柜子,方便放东西,到顶衣柜增加存储空间; 2.从玄关处做连体柜子延伸到餐厅,增加了收纳空间,厨房U型设计,利于操作; 3.主卧开门左边做开放衣帽间,其他房间、柜子都做顶天立地式储物柜,增加储物空间。






设计亮点
客厅整体采用白色为背景,看起来干净、整洁,墙上挂上两幅画,增加了艺术感,加上简易岩板茶几和地毯加以点缀,使整个空间显得高级又质朴。
软装搭配
客厅采用深棕色简约皮沙发,深浅搭配得当,沙发成为整个空间的亮点,搭配其他的软装,整体散发出满满的高级感。电视机柜采用抽屉式,方便收纳一些零散的物价,电视柜白色+深色的组合搭配,使整个画面看起来美观,电视旁放上干花加以点缀,增加电视机一角的生机。




设计亮点
餐厅整体沿用了客厅的风格,整体看起来简约时尚,餐厅做了餐边柜,增加收纳空间,平时不使用的东西可以放到柜子里,避免了东西随处乱放,找不到的情况。白色大理石餐桌+棕灰色软皮餐椅和客厅的配色很搭,优雅的气质应运而生,轻便灵巧的家具和亮敞的光线让空间自由而通透。
软装搭配
餐厅使用简约三头钻吊灯,线条的纵深使整个餐厅显得高级,灯光柔和,不刺眼,在用餐的时候能够很好的还原食物本身的色彩,在细节上温馨感满满,提升了空间的氛围感,促进了胡女士与她家人愉快的用餐。

设计亮点
厨房采用经典的U型设计,烹饪区一字型的吊柜靠着厨房墙壁一侧摆放,留空一侧的空间就不会那么拥挤,转角的小短边设置洗菜盆和地柜,还可以多出来一小部分储物空间,内嵌式冰箱不仅可以保护电器本身,同时还能节省空间,使用起来更加方便。




设计亮点
主卧深咖色床头搭配米白色床品,营造出一个清新、恬适的睡眠空间,软包床背、木质床头柜和布艺窗帘都选择了奶咖色+深灰色,平和而温柔的触感,不经意间便将白日的疲惫尽数消解,让人尽享轻松与舒适,同时增加了胡女士与她先生的睡眠质量。

设计亮点
次卧整体上沿用了主卧的风格,搭配青色的床品,整体流露出清新、活泼的气息。床头柜简约的造型为睡眠空间增添一丝优雅,同时也充分渲染了精致时尚的睡眠氛围,床靠窗放,早上折射进早晨的第一缕阳光,使整个房间充满生机,一天的好心情由此而来。


设计亮点
卫生间干湿分离设计,墙体外推,借用储物间部分面积拓宽了洗漱区域,墙、地均为灰色大理石大砖大气规整,一体式台盆方便打理,下方设计储物柜,增加收纳空间,平时的是洗漱用品都可放到柜子里,避免了洗漱台上东西乱放,杂乱的情况,底部留出30~40公分的距离,方便进行日常的卫生打扫,避免了卫生死角打扫不干净的情况。
