
装修前
这套两居室设计面积73㎡,屋主为 90 后,喜欢滑雪、乐高,同住的还有可爱的喵星人一枚。









设计亮点
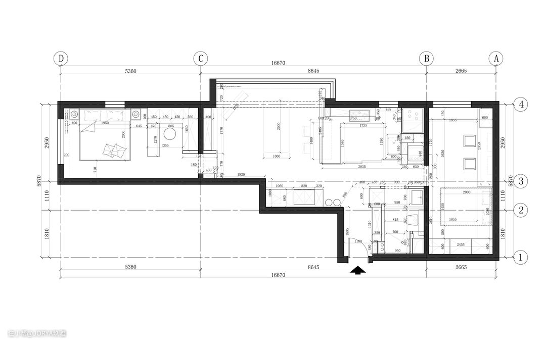
原始户型看起来很整齐,没啥可调整的,但经过设计师之手,有了很多丰富的变化,一起来看看。 1、更改开门的位置,收获6平米收纳空间 设计师仅仅改变了卫生间的入口位置,就将居住体验提升了好几个level。 (1)独立且收纳能力超强的门厅 原来卫生间的入口将门厅区域一分为二,无论是买成品玄关柜还是定制,都会被打断。将入口移走后,一整面墙都能用来做玄关柜,而且门厅也变成了一块独立的区域,都更规整实用。 设计师将原始的卫生间隔墙内推35公分,门厅柜的面积由原来的1.8平米,扩展到了6平米。用三组深浅不同的柜体组合,衣服、鞋子、配饰,各种收纳需求一一满足,一点不浪费收纳空间,而且从外观上看是整齐划一。 (2)进入卫生间动线更加便捷 更改入口位置后,从各个方向进入卫生间更为便利。 (3)卫生间干湿分离 洗漱区变为开放式,便捷,而且洗衣机也被安排在了对面,形成家务操作区。 2、开放式厨房 + 岛台 + 推拉餐桌 —— 小户型厨房的最优配置 屋主是重庆妹儿,父母过来做饭时免不了爆炒,因此想做封闭式厨房,维持原来格局。但经不住开放式厨房的空间感和使用便利,考虑到一年做饭的时间也不多,而且可以选一个吸烟力爆棚的油烟机,所以最终还是选择了开放式厨房。 (1)面宽增加 视野开阔 厨房隔墙去掉后,客餐厅与厨房融为一体,面宽达到了7.6米(原来是5.2米),采光面积加大,进门视野开阔,这绝对是开放式厨房最大的优点。 (2)岛台 岛台的意义不仅在于整理食材和备餐更为便利,更重要的是在做饭时可以与家庭成员进行聊天互动。 (3)推拉餐桌 餐桌是定制的,平时1到2个人吃饭时可以推进岛台内,不占地方。有朋友来了,拉出来,4-6人聚餐也没有压力。







设计亮点
玄关区虽然没有窗,但整体为浅色,夜晚回家也不会太暗。无主灯设计,由吊顶暗藏灯带,格板灯和柜底灯,共同营造了回家的温馨感。 门厅独立出来,铺贴了地砖,方便打扫,算作落尘区。 屋内其他区域铺贴地板,与玄关区有一个5公分左右的高差,当作区域分割的界限。跨过台阶,也是一种回家的仪式感。 玄关柜由三组进深不同的柜体组成:从进门开始,展示柜(10公分) + 鞋柜(35公分) + 衣物柜(51公分)。其中展示柜做了拱形造型并进行木色的跳色处理,鞋柜的柜门也同样有拱形元素进行呼应。 背靠烟道的展示柜为开放式,进深10公分,用来展示和收纳随手物品;鞋柜底部留了25公分的高度,用来放拖鞋; 衣物柜是两面使用,上部开启朝向门厅,收纳进屋衣服,下部对洗脸池开启,收纳扫地机器人。 因衣物柜厚度较鞋柜突出了95公分,因此做了倒圆角处理,过渡更自然。 扫地机器人需要预留上下水和电,这些在设计阶段已经考虑好,并进行了预留。电管和水管均包裹在了定制柜内部。



设计亮点
卫生间做了干湿分区,洗漱区与外面的空间共享。 洗漱池的左侧,隔断墙体上开了倒弧形的洞口,让空间更通透。进入卫生间的门洞同样做了弧形处理,旁边嵌入竖向灯条。 透过洞口,可以看到次卧的陈设。









设计亮点
厨柜门板与全屋其他柜体门板一致,均为密度板基材,白色调漆;台面为1.3公分厚岩板,颜色为干净的珍珠白,和柜体的颜色一致,整体看过去落落大方。 橱柜踢脚线10.5公分高,用了跟柜门板一样的材质,因此看起来整体性很强。相较于常规的铝制踢脚线,这种做法很能提高橱柜的档次。 厨房为「U字形」布局,备菜、洗切、烹饪,呈三角形布局,使用便利。 与原来管道井拉齐,设计师规划出全新的家政区。一组「L形」柜体,两面使用。一面柜体开向洗菜池,下面开放式放碗筷,上面封闭式藏有燃气表。另一面柜体内嵌洗衣机和烘干机,旁边放洗衣液等清洁用品。 厨房与卫生间洗漱区均为开敞式,空间灵活而通透。









设计亮点
门厅过后,站在厨房,便能感受到大面宽带来的通透感,配合整面墙的落地玻璃,虽然北向,但也采光无敌。 客厅的亮点便是这面背景墙,两边对称布局的埃维拉木格栅板,将视线集中到中间的书架,书架的拱形造型又与门厅和卫生间的弧形相呼应。 原来客厅有一面非常宽大的柱子,设计师在将其用木格栅板包裹的同时,也对称做了一面格栅墙,将主卧入口隐含其中。
软装搭配
客厅沙发特意选择了可以两面使用的款式,将靠背一转,一秒从与家庭成员(做饭中)的互动模式变为休闲模式。 慵懒的假日,适合躺在沙发上阅读,享受生活。 小猫咪也喜欢这个新家。不过它好像更善于搞破坏。 厨房进化过程



设计亮点
中间的书架,进深40公分,是由施工时做好基层,最后插入3.6公分厚的实木隔板做成的。书架底部是成品壁炉,预留了1.5米宽,30公分高的洞口。 木工阶段,用木工板包裹原来的柱子,制作主卧隐形门的洞口基层;用石膏板制作拱形书架的洞口,在将要放隔板的两侧各留1公分深的槽,方便将来走隔板灯的灯线。 石膏板的部分打磨刷漆,这样基层就做好了。



设计亮点
可收纳餐桌是这个厨房的灵魂,也是点睛之笔。平时收起来,不占用空间,客餐厅全部由会客,休闲所使用。 餐桌长1.3米,宽70公分,可推进岛台内部一半,35公分。在餐桌收起状态时,露在外面的部分正好够2人吃一些简单的快餐。当餐桌拉出时,可以满足4-6人同时就餐。 餐厅的旁边配有餐边柜和水吧台,内嵌冰箱。 餐边柜进化过程





设计亮点
主卧划分为两个区域,进门为衣帽柜以及化妆台,再往里是床区。 主卧隐形门利用门后的墙垛,做了6.5公分进深的盲盒收纳展示柜。 主卧进化过程





设计亮点
次卧用了谷仓门,好处有三。第一,好看,酷。第二,原始门洞比较矮,只有1.95米,做了门也会显得很矮。第三,这个次卧是多功能间,平时都需要开着门,谷仓门打开不会占用里外面积。 同样是将次卧分两部分使用,靠窗部分为工作区。超长工作台,台面长度2.4米,由悬浮支架支撑。配有4个60公分宽的抽屉,收纳所有办公用品。 办公桌上方,随机布置了四个乐高展示柜,都是屋主小姐姐的辛劳结晶。最大的一个74公分宽,64公分高,里面是71419微型霍格沃茨城堡套装,由2660个零件组成,绝对是大工程。 门的右侧为卧室区,配备衣柜和折叠床,方便老人来临时居住。 次卧进化过程

设计亮点
-end- 案例介绍完毕
