

装修前
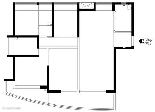
本案风格定位为意式极简,整体以咖色为主色调,常住人口只有三人,因此只需要保留一个套房和卧室及书房,且因房型结构限制,我们在扩大主卧面积及男孩房面积的同时不得不考虑通往书房及公卫过道存在的合理性,经过不断设计和考量诞生了本案亮点:弧形过道,既满足客户需求和设计合理性的同时,又给整个空间增加了趣味性。 户型问题: 优点—— ①南北通透采光好; ②采光面视野开阔无遮挡; ③阳台面积较大。 缺点—— ①主卧空间较小,无法容纳衣帽间; ②入户门直冲房间房屋最深处,没有遮挡。 业主要求: ①孩子学习街舞,需要较大空间供孩子在家练舞; ②要有足够的收纳展示空间,体现收藏品味。
装修后
设计思路: ①结合常住人口,优化卧室数量,将南面卧室并入客厅和主卧; ②扩充客厅空间,设计巴士拉门改造客厅,为孩子提供更多练舞场地; ③重新规划房间,使主卧多出衣帽间,与主卧并成套间; ④弱化入户分区,重新规划走道动线及造型,使之融入客餐厅大空间,提升空间通透感; ⑤次卧走道连接客厅,并设置收纳柜,补充空间收纳; ⑥餐厅设计餐桌岛台一体化,并设置整墙西厨高柜,增加收纳空间也满足收藏展示需求。装修风格最后定位意式极简,大面积的玻璃材质,流畅的曲面线型,柔和舒适的灯光设计,让家既通透又有节奏感。



设计亮点
我们在玄关的设计上色系与整屋保持一致,中部及底部留空,中部区域可以放置一些摆件或者日常随身携带的物品,底部空间也是做方便日常进出换鞋使用,总之我们考虑到了业主所有的使用需求,尽可能做出符合业主生活需求的设计。







设计亮点
客厅借用拆改的卧室空间,扩充至阳台,让客厅活动空间更加敞阔。整面的落地窗给了客厅绝佳的视觉感受以及采光,白色岩板电视背景,曲线造型的白色沙发,加上几近完美的采光,阳台也提供了最佳的观景视野。 沙发背景我们选择木饰面搭配上木格栅纹,整个色调都是选择浅咖色系,全屋无主灯设计,加上筒灯的点缀,让整个室内充满高级感的同时也保证了室内的温馨感光线。 沙发背景墙后面别有洞天,我们做木质巴士移门设计,拉门后面是镜子,是不是没有想到呀 这里也是为了方便孩子在家中练舞,平常拉门打开就可以给小朋友练舞使用啦,这个区域也是业主一直强调的。
软装搭配
电视背景墙选择白色石材加上钢板的组合设计,下方留空处设置灯带,增加整个空间的层次感,看起来也不会过于单调。电视也是做的内嵌设计,使其与背景墙成为一个整体,更加和谐统一。 整面的落地窗保证了客厅空间的绝佳采光,原始的客厅空间没有这么敞亮,我们把客厅与次卧打通,放大整个活动空间面积,也显得更加透亮。



设计亮点
餐厅岛台一体设计,岛台的下方空间我们也没有浪费,打开柜体里面可以做储物功能使用,在色彩的选择上也与沙发背景墙保持一致,也是极其巧妙的色彩平衡。 西厨高柜做的半开放设计,台上可以方便日常的一些简单的西厨烹饪使用,台下空间也可以做置物功能,充分满足收纳需求,灰咖背板呼应客厅拉门。 餐厅靠窗的区域我们设置了与窗平齐的餐边柜,上方空间充足,于是我们设计成洗手盆与置物区,平常一些便餐可以在这块区域完成了,也非常方便。


设计亮点
厨房邻近餐厅,依据户型做了U型设计。




设计亮点
弧形走廊也是一个空间设计亮点,原始的走廊空间其实是空间格局非常不合理的,设计师将原本不合理的走廊区域,改造成极具设计感的艺术馆过道,反而成全屋的一个最大亮点。



设计亮点
主卧室以极简的白色诠释意式的空间魅力。圆润线条感的家具,曲面型空调侧出风口设计,定制的扇贝型床靠背,所有的造型呈现圆润柔软的特性,就连床头的线条感吊灯,呈现了一个经典且高级的卧室空间。



设计亮点
儿童房我们定制半墙装饰拼接宝蓝色背板,通过材质与色调、灯光的完美融合,赋予了卧室独特的美感。 为了方便家里小朋友学习,在床旁边还放了一个同色系的灰色书桌,与米灰色的床品搭配,整体给人一种温馨简约的独特美感。
