
这套位于成都金牛友谊花园的小套二,是业主夫妻在成都的第一套自住房,业主希望重新装修,用有限的预算装出简约又舒适的居住体验。女主人希望装饰方面不要太繁杂,但也不能太乏味无趣;男主人希望合理布局空间,最好多改造出一个房间来做储物。
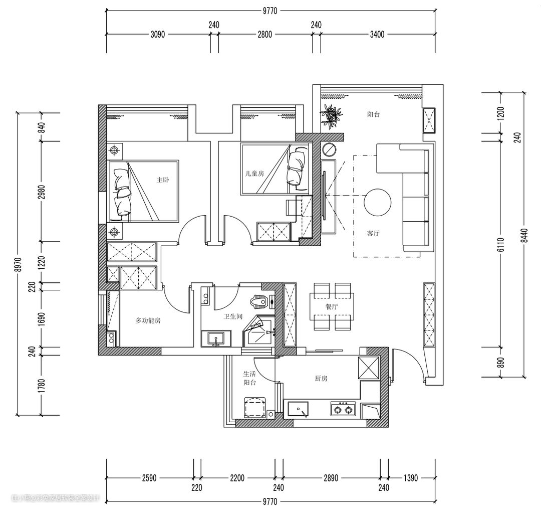
设计理念: 主打实用的套二户型,要彰显空间感和品质感,我们从造型和色彩搭配上着手,巧妙应用设计,来营造空间氛围,让业主有个舒适宽敞又实用美观的居家环境。 原户型邻侧双面采光,各个功能区域紧凑布局,空间利用率还是比较高。需要改造的地方有两处:一是厨房是单开门,餐厅位置采光不太够;二是主卧带一个独立衣帽间,业主希望整改一下,把衣帽间改做储物间。

经过装修改造,为每个空间增添了就近收纳的定制柜,大大提升了居住舒适度: 1.门厅和餐厅合并,打造简约风的餐边柜和玄关柜; 2.做电视墙,来增加客厅空间的层次感; 3.原主卧套房改成两间房,为家增添一间多功能房,储物、学习都合适。



入户门厅与餐厅为同一空间,整体打造,用黑白对比营造整体的简约清爽效果。鞋柜区域放在入门最近位置,方便回家就近换鞋。鞋柜做成三段式设计,中段做储物和展示,下方吊柜离地150mm,日常的鞋子放入里面,通风通气又方便脱换。 白色柜门与白色墙漆、浅灰地面相搭配,营造明亮宽敞的氛围感。



客厅的悬浮式电视墙,犹如一幅发光的画卷,为家展开幸福的场景。电视墙下方摆放一组抽屉地柜,让空间更显协调平衡,也为客厅收纳小杂物提供了方便。 沙发选择流线型直排沙发,和电视墙相对,用曲线勾勒出温馨氛围。沙发软皮面料,柔软触感给家人更舒适的呵护。 客厅到阳台的门洞作拱形造型,增添空间柔和气质;客厅顶面不做吊顶,保留更开阔的空间感,在顶面墙角用石膏线装饰,勾勒出空间层次感。



厨房橱柜呈一字型布局,浅灰色橱柜门与浅灰地砖相搭配,让空间更显整洁明亮。橱柜用白色石英石台面,和白色铝扣板吊顶相对应,黑白灰纯净配色的空间带给家人更放松的心情。



卧室铺实木地板,质感更天然舒适;墙面用浅灰墙漆,搭配白色顶面,空间明亮雅致,给家人更好的休息环境。



次卧相对温馨点,适合以后孩子居住,墙面用暖黄色墙漆、搭配白色顶面和白色定制柜,整体空间不显局促拥挤。定制柜和床头柜相结合,满足更多需要。



卫生间空间不大,淋浴区做干湿分离,水渍不外溢更方便打扫卫生。 定制岩板浴室柜,搭配台下盆,台面无缝更显整洁。浴室柜搭配镜柜,方便放入更多洗护用品。安装有照明、防雾功能的智能镜,给家人更多呵护。
