
装修前
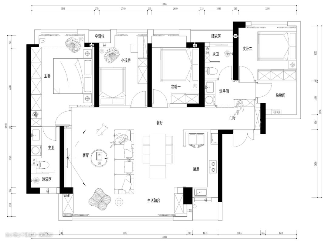
平面布置图:大横厅的格局,客餐厅一体化,并连通阳台区,没有多余墙体的阻隔,扩大空间感。四居室搭配一间杂物间,功能性强。



设计亮点
入户正对面设长虹玻璃门做隔断,有效缓冲入户视线。换鞋区与玄关柜组成L型格局,流畅利落。以简练的手法描摹出空间的雅趣来。
软装搭配
经过玄关,便是次卫和次卧区,长虹玻璃有效阻隔视线,兼顾空间的私密性。摩卡清灰+咖色的柜门典雅温润,光影流转间暖意横生。





设计亮点
客餐厅为横厅布局,将阳台打通,室内光线自然流转,采光优势发挥到极致。淡灰色柔光砖通铺,搭配顶面无主灯布局,空间开阔通透。选择简约的深色沙发,干净利落的线条,柔和边缘,弱化空间感。家具的轻量化,无主灯的极简布局,将实用简洁理念融入硬装中。
软装搭配
电视墙运用不同元素做加持,展现高颜值的一面,木饰面、木格栅、地台三者组合搭配,简洁却不简单的布置,陈述着家的宁静温柔。阳台区与客餐厅连通,结合大横厅的户型,打造一个通透明媚的大开间。电视背景墙向右做延伸,与白色薄纱帘共同构筑起家的营垒。




设计亮点
开放式客餐厅布局,空间得到充分释放,客餐厨三者一一毗邻,提升效率。依旧延续客厅的意式风格,于内敛低奢中包裹着一层优雅。 餐桌+岛台组合设计,提升整个空间的功能性。岛台可补充备餐台面,又增加厨房的开放性。利用两者间的高低差,配备轨道插座。
软装搭配
亚克力桌角的悬浮餐桌+灰色皮质餐椅,满足屋主共进晚餐需求,辅以花束点缀,不失为生活的浪漫与仪式感,舒适静谧的空间氛围。

设计亮点
依托墙面,构成L型布局,左侧留出部分空间,将冰箱嵌入其中。橱柜遵循上浅下深的搭配原则,浅灰与黑色的色彩对比强烈。



设计亮点
主卧,满足屋主休息需求的放松之所,延续公区的意式极简风,木色与灰色系的交织,烘托静谧高级的睡眠意境,简洁中觅得安宁。 由护墙板+灯带组合的背景墙,自带高级时尚和艺术感,素雅的肌理与光影交织错落,搭配着仿木纹砖,洋溢着温暖柔和的氛围。
软装搭配
灰色系的床头柜,稍加修饰,透着一丝清冷的质感。入户门正对着一排收纳柜,开放格+抽屉的组合形式,丰富空间的功能性。床尾是一排通顶衣柜,浅灰色柜门辅以黑色拉手修饰,视觉上显得简洁利落,满足屋主一年四季义务收纳所需,简洁的陈设温馨舒适。


设计亮点
儿童房的布局围绕休息和学习出发,1.2m的床靠墙而设。背景墙以粉色乳胶漆通刷,不似灰色的沉稳,辅以木地板,自带娇憨公主风。
软装搭配
衣柜+书桌一体化设计,上方安置开放格书架,规划成学习区,临窗而设,释放大脑思路。咖色柜门搭配黑色拉手,富有层次与质感。


设计亮点
卫生间,卫浴柜旁嵌入洗衣机,壁挂马桶不留卫生死角。深色大砖上墙,营造质感轻奢意境。以黑框玻璃门进行干湿分离,提高效率。
