设计亮点


装修前
居于繁华都市中的住宅,主人希望在此一洗铅华,感受简单的生活。设计师给予住宅现代风格的定位,在这个空间里,更多强调的是功能的实用性,最大限度地使用每一个空间,满足生活需求,设计师没有使用过多繁复的设计元素,更多运用明快的设计线条和上佳的材质,共同打造出这个舒适的居家之所。
装修后
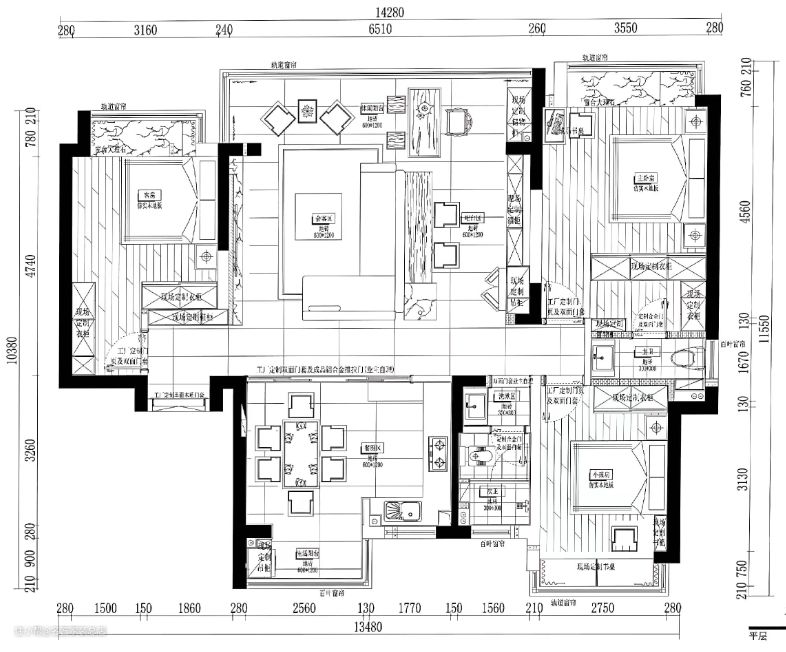
1、原住宅结构客厅空间较大,按常规设计会比较浪费。 2、餐厅位置不大,独立设置餐厅会非常拥挤。 3、主卧室没有衣帽间的空间,业主想设置一个这样的区域。 针对户型的缺陷,设计师将客厅增设了吧台以及靠墙的整墙储物柜,利用了空间。厨房与餐厅连成一体,设计成开放式的格局,增加了空间的舒适度,让空间更加开阔。
客厅





设计亮点
宽敞的客厅空间给了住宅各种可能,敲掉原有的阳台与客厅的隔断门,将阳台空间纳入室内,利用阳台做满储物柜,增加其实用性。顶面艺术涂料并采用无主灯设计,灯光弥漫时,一室生辉。
软装搭配
客厅较宽,设计师打破传统的沙发背景墙设计,而将沙发后面的靠墙位置设计了一排满满当当的储物柜,并将双开门大冰箱内嵌,确保每一寸空间都得以利用。大大的提升了住宅的实用功能。
餐厅


设计亮点
餐厨空间融为一体,呈开放式布局并与小阳台相连,采光极好,其间设置了暖气片,所以用隔断门与客厅空间进行分隔,确保冬天暖气的良好效果。这是设计师对于实用性的仔细考量。
软装搭配
餐桌椅与沙发同色,现代简约风的设计,厨柜饰面板采用亮面浅灰色,深深浅浅的灰搭配一帘纯白的轻纱,几枝柔美的鲜花,整个餐厨空间也变得浪漫起来。
主卧

设计亮点
主卧室墙面使用艺术涂料打底并刷上淡蓝色的墙漆,营造静谧的睡眠空间,有着优雅造型的轻奢风格大床搭配墨绿色的布艺,阳光透过玻璃大窗照进室内来,整个卧室充满浪漫与温情。
