访问APP
客厅
餐厅
主卧
厨房
卫生间
设计亮点

60平小户型,卧室整面收纳柜,收纳能力暴增!

鑫友装饰官方店
关注
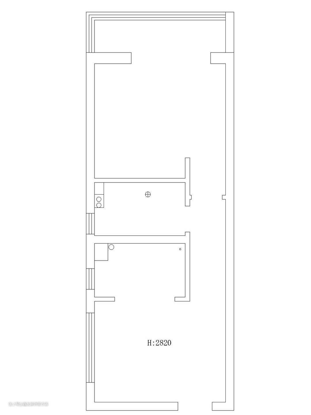
户型
一居
风格
现代简约风
面积
60㎡
位置
沈阳市
方式
全包
预算
6万
设计亮点

整体风格偏现代化风格,色彩运用上运用比较经典的黑白灰为主色调的设计色彩,房子是小户型,设计上以实用为主,整体风格给人简约时尚的特点。将房子户型拆改后得到现在的户型,将厨房的墙体拆除,改为开放式的厨房,因为是小户型并没有添加桌子只是用吧台来代替,将厨房的墙拆除后看上去房间非常的宽阔。也将卧室一侧的墙体进行拆除,增加了采光和房子的面积。

客厅

设计亮点

客厅通过吊顶让整体空间更加有层次,通过主灯,氛围灯,筒灯组合让整个空间更加有氛围感,设计感更强,业主没有选择常规沙发,而是选择两人位的沙发椅,下班回到可以放松放松,来亲朋好友也可以当成简单床铺。

软装搭配

客厅背景墙选择白色乳胶漆,搭配黑白设计,整体比较简约时尚。

餐厅

设计亮点

没有单独买餐桌,而是将橱柜台面延伸,做成吧台当作餐桌设计,增加了台面设计,还节省了空间,搭配上几把椅子就是一个餐桌,亲朋好友来的时候也可以当作聚餐空间,也可以作为西餐区,在上面做一下糕点和早餐。

软装搭配

灰色的地砖看上去非常的高级,也非常的耐脏好打理,整体也采用了黑白灰这种高级的配色。

厨房

设计亮点

为节省房子的空间将厨房改为开放式的厨房,看上去非常的整洁、大方,同时 也更加的节省空间。台面采用最经典的L型,使用起来非常的便利。厨房与客厅打通,看上去空间非常的宽阔。

软装搭配

橱柜采用黑白的配色整体看上去非常的整洁。

主卧

设计亮点

卧室的蓝色背景墙看上去非常的舒适,给人一种清新的感觉,浅蓝色的背景墙可以有效的环节疲劳让人在紧张的社会环境中脱离。床头柜上摆放了绿植,可以进化空气也预留了插座,户主在居住是可以给家电或手机充电。整面墙衣柜收纳能力非常强,可以将衣物全部收纳其中。

软装搭配

卧室蓝色的背景墙看上去非常的整洁,可以有效的环节疲劳,深色的床头和被褥看上去非常的舒适,房间安装黑色的大面积衣柜收纳性非常好,专门为小户型打造的柜子。

卫生间

设计亮点

卫生间外置梳妆台,在使用的时候也很方便,而且可以起到上厕所和洗漱两不误的效果。梳妆台是采用当下比较流行的悬空设计,下方可以放置一些脸盘、洗衣液、收纳筐等等,既不会留有卫生死角的同时还能增加收纳面积。烘干机和洗衣机上下摆放,节省空间。

软装搭配

灰色卫生间简单大方