



装修前
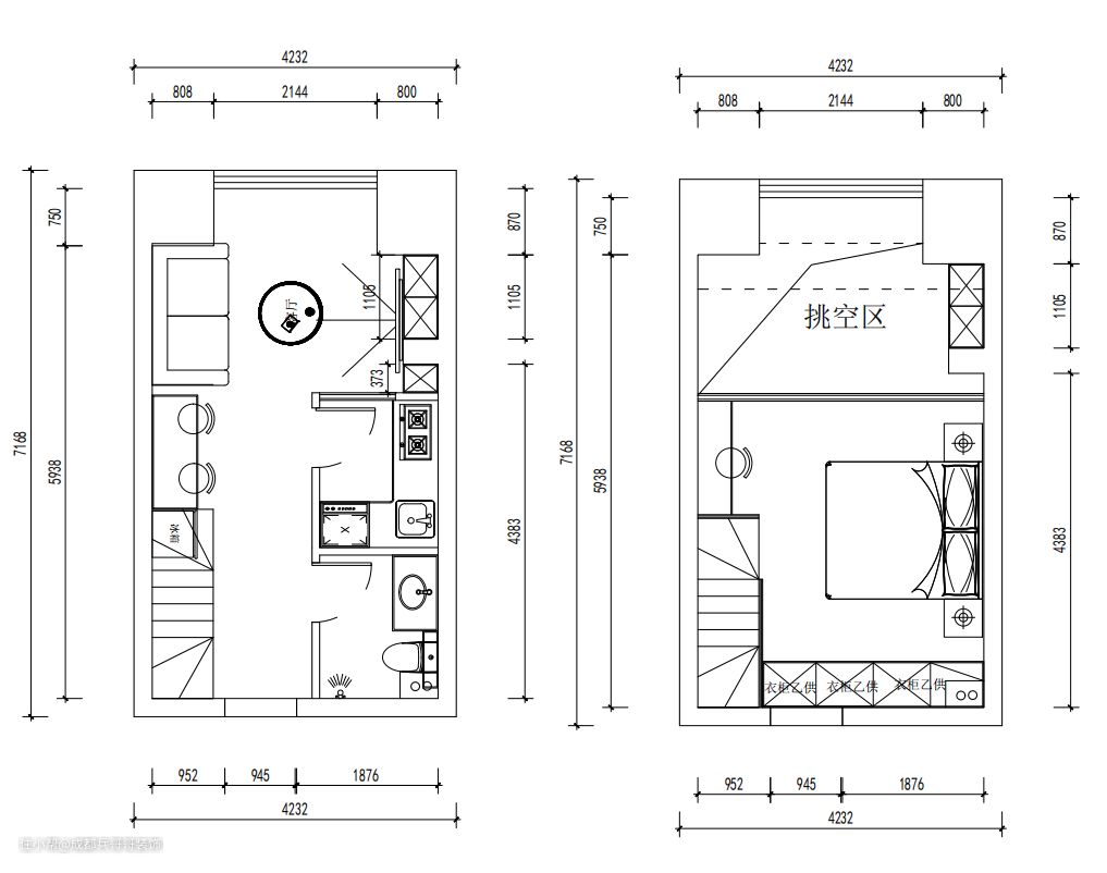
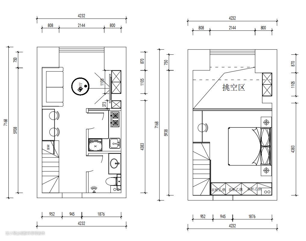
本案例装修前,是一个长7米多,宽4米多的长方形公寓,层高有4.2,屋主打算前期自己住,后期出租,保留一个卧室就行,要求采光效果要好,储物空间要多。因此阁楼搭建了大部分面积,挑空区域相对较小。没有放置电视柜等占空间的物品,而是做了投影幕布,幕布后面还做了大量储物柜,空间可谓是完全利用了起来,不占丁点儿位置。全屋是现代简约风格,简单、大气,不是雅致。
装修后
这套loft公寓,套内面积20多平,层高4.2m,钢结构隔层镂空搭建,一字形转角楼梯连接一二楼。 一楼生活区:客厅+餐厅+厨房+卫生间; 二楼休憩区:主卧+衣柜 保留全景落地窗,室内采光效果很赞~



设计亮点
入户玄关,由于公寓面积有限,鞋柜设计在楼梯下方,满足日常收纳的同时,还能有效利用室内空间,一举两得~




设计亮点
整个房间设计了4米多的挑空区,搭配创意灯饰,能很好地衬托室内的空间感。全景窗户做保留,再安装上窗帘,屋内的采光随时可以自由切换,生活舒适性又提高了不少~ 另外,从这里的镂空设计可以看到,4米2的房间层高隔出两层难免会有些压抑,这样的话可以有效降低底层高给视觉带来的压迫感,同时人在室内居住起来更顺心~






设计亮点
客厅,又可以称之为挑空客厅,它在整个房间的镂空区,拥有沙发休憩区、电视投影区、杂物收纳区、观景阳台区,虽然面积很小,但功能十分全面,很适合生活起居。 值得一提的是,储物收纳柜设计在投影后面,看电视的时候放下幕布,休闲的时候收起幕布,使用很便捷,而且不占顶点儿空间。



设计亮点
餐厅,是一个开放式的格局,旁边还放置了单开门的冰箱,家居设计简单明了。整体以简约白作为主色调,活力橙点缀空间,增加了一抹靓丽的色彩~


设计亮点
厨房,L形封闭式设计,有效避免油烟味,一整排的吊柜和地柜,储物空间足够。里面还嵌入了洗衣机,功能全面。选用侧吸式抽油烟机(油烟分离板,彻底解决了顶式烹调猛火炒菜油烟难清除的难题,采用油烟分离器使油烟机有效分离,增加的风机的使用寿命,并更有效的达到油烟抽净效果。) 另外,厨房地面用的是300*300的地砖,浅灰色格调,再搭配橱柜经典黑白色,简约干净。




设计亮点
主卧,在阁楼上方,放置的是一米八大床,还设计了通顶式衣柜,便于衣物收纳。楼梯口上来和前方镂空的地方,都设计了实木玻璃扶手护栏,与整体色调、风格相搭配,让人一眼便喜欢~~




设计亮点
卫生间,独立空间设计,盥洗台、马桶区、淋浴区安排在一个空间,因为面积有限,但功能上是全部满足了,有效利用有效空间,超赞👍👍 地砖、墙砖通铺,铝扣板吊顶,防水是刷了两遍的,整体的防水防潮效果良好,这样生活起来也更舒适~






设计亮点
楼梯,设计在进门左侧,一字形楼梯连接一二楼,楼梯下方做了一整排储物柜,木地板踏步+实木玻璃扶手,简约大气又实用。 楼梯空间,还安装了壁灯,氛围感满分~~
