


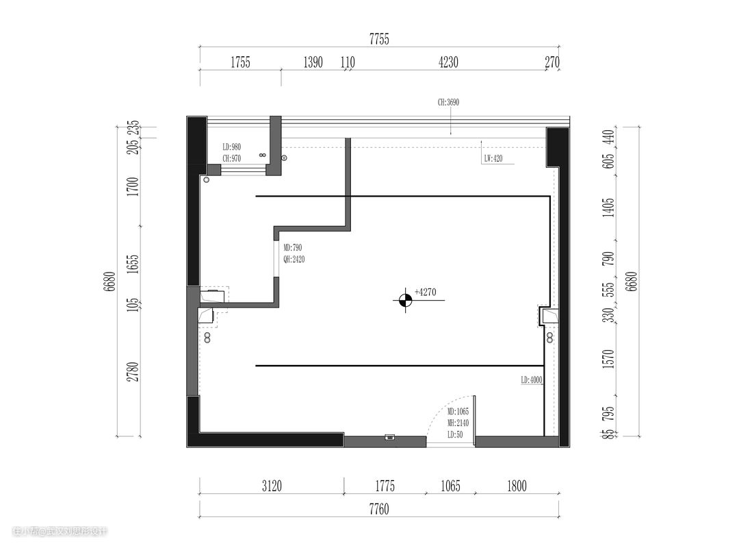
装修前
屋主是一位90后攀岩爱好者,一个人居住,他说在攀岩的过程,选择不同的路线,挑战不同的极限,迸发出勇气和潜力,非常令人着迷。所以这次特意买的loft的房子,希望在家里做了一面攀岩墙,尽情释放自我和热爱。
装修后
改造亮点: 1、一楼起居室整个打开,靠墙做收纳柜和厨房,嵌入冰箱和洗衣机烘干机等家用电器,满足收纳和实用的同时,整洁又美观。 2、楼梯靠窗布置,包围式布局让室内的活动空间得到释放,岛台和沙发居中形成摆放,双洄游动线让空间更加宽敞便利。 3、堆叠楼梯与攀岩墙衔接,攀岩区整个挑空,既不影响采光,个性化的需求也提升的空间的格调和高级感。 4、二楼作为屋主的私密空间,独立书房+四分离卫生间+明亮通透的卧室,满足屋主居住需求。






设计亮点
🧗♂️攀岩,是一个连动全身肌群的极限运动,也是一场脑与力的攻防。 🚩以攀岩为主的生活空间,破除了居家惯有的场域定义,没有明确的客餐厅的划分,也没有攀岩活动区的分野,开放式的布局,让空间获得更明亮的光线和更开阔的视野。 🚩客厅利用loft的挑空优势,靠墙设置攀岩墙,与楼梯地台衔接,略微倾斜的角度为攀岩带来更大的阻力和挑战; 🚩整个空间以大白墙为主,无主灯吊顶+鱼肚白哑光砖+原木色地台和堆叠楼梯,搭配精致时尚的深色家具和采光充足的落地窗,打造出极致通透的自由感和高级感。
软装搭配
✌木料的纹理搭配七彩的突出岩块、日光般的灯带,打造吸睛且前卫的攀岩空间,不受限天气或其他外在因素,屋主在家也能随意释放和挑战自我。




设计亮点
🍽餐岛一体居中摆放,与沙发形成双洄游动线,不仅让空间更加宽敞便利,也在开放关系中,相互交流,渗透和融合;
软装搭配
✅台面统一使用了和橱柜台面一致的岩板,日常可作为厨房的补充操作台使用,也能同时满足4-6人用餐。




设计亮点
✨厨房整个打开,靠墙做U字型橱柜,嵌入冰箱和洗衣机烘干机等家用电器,满足收纳和实用的同时,整洁又美观; 💧岛台+餐桌长2.6m,宽0.9m,两边过道预留0.9m,岛台柜2边开门,满足分区收纳和充裕的收纳需求。
软装搭配
🚩鱼肚白哑光砖通铺到厨房,深灰色岩板上墙,搭配白色橱柜和同款岩板台面,形成深浅对比,柜门无拉手设计让整个厨房更加极简又大气!



设计亮点
❤在空间的优化上进行重新分配,将封闭狭窄的楼梯移到窗边,给予空间崭新的格局,延伸视野的同时,达到光线通透明亮的效果。 🎶木质地台作为楼梯起步,并暗藏灯带,加之悬浮感和层次感十足的堆叠楼梯,将现代主义与几何美学完美结合,灵动又高级,赋予空间独特的美感。
软装搭配
🌿楼梯下的地台向下嵌入,并增加绿植的点缀,为整个空间增加了几分活力与生气,也在楼梯下创造一个独特别致的休闲空间。



设计亮点
🥓拾级而上,二楼作为屋主的私密空间,延续一楼大白墙的调性,通铺地板+开放式的布局,让整个二楼通透无比。
软装搭配
🛏床头留白的设计+豆沙色的枕头+巧克力色的被子,搭配时尚别致的装饰画,整个空间顿时充满了年轻的活力。



设计亮点
💦四分离卫生间分区明显,完全开放的浴缸用透明玻璃作为隔断,既有效防止水花四溅,也不会让视觉效果产生狭小压抑,满足实用的同时,洒脱随意又个性十足。
软装搭配
✨浴缸区和干区都采用灰色瓷砖,墙地一体的整体感,搭配白色的浴缸和悬空浴室柜,呈现出静谧洁净的沐浴氛围。


设计亮点
💻书房也没有任何隔断,靠墙做整面收纳柜,并在转角处延伸出桌面,不仅补充了卧室收纳空间,也满足了屋主居家办公的需求。
软装搭配
柜门一门到顶+无拉手设计,搭配亚克力渐变桌腿,简洁轻盈,时尚个性。
