



装修前
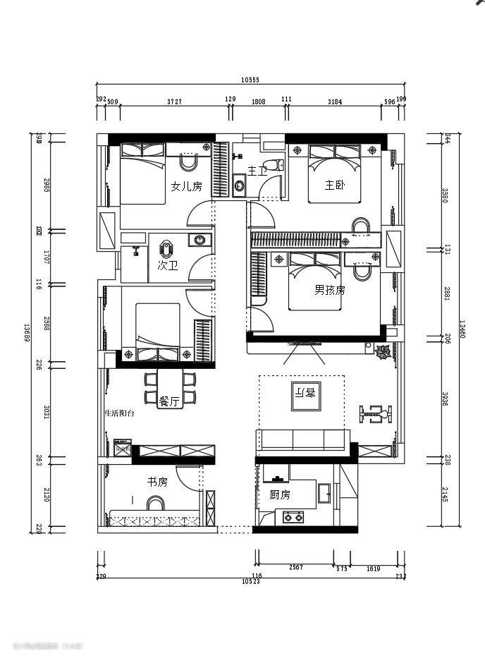
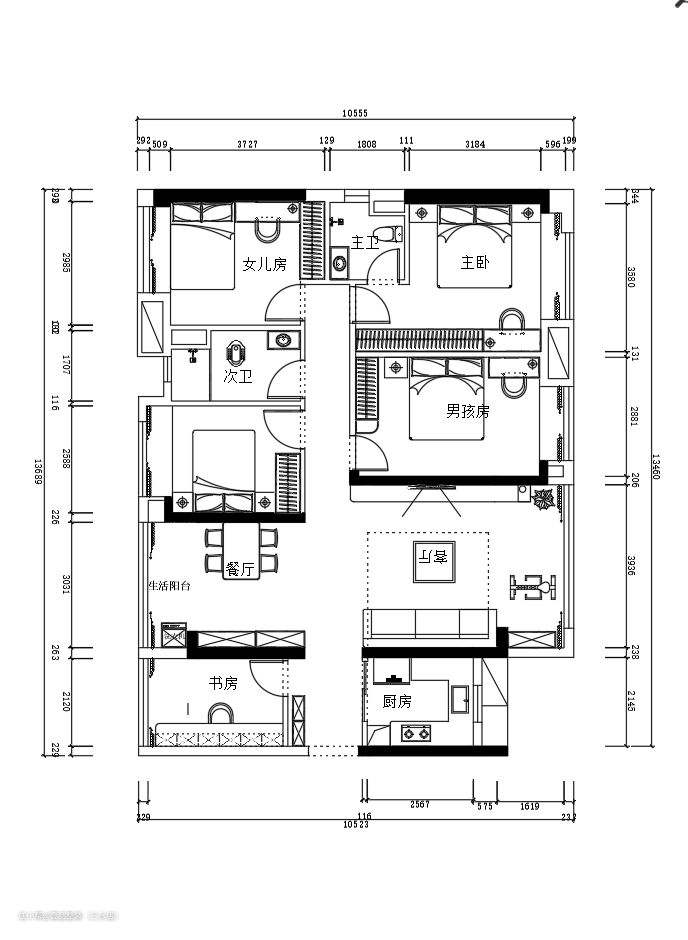
本案的屋主两夫妻都是教师,这套主要是孩子读书使用,楼盘正对就是图书馆,当初是为了孩子能从小养成良好的学习习惯才买的这套,全屋设计需要足够的学习空间以及两夫妻办公空间,对房间隔音要求比较高。 原始户型解析: 1、入户玄关位置太窄,做嵌入柜设计会导致小房间里面存在尖角 2、南北通透双阳台户型,如果不将阳台打通利用起来,会造成很大空间的浪费 3、主卧这边衣帽间位置不合理,占用小房间太多面积,后期进门空间只能浪费 方案分析: 1、入户玄关位置的门垛打通,将小房间的门往里移,保证房间里的完整性 2、两个阳台打通做封窗,厨房这边与餐边柜一体做嵌入洗衣机,搭配电动晾衣架更加方便整洁 3、主卧这边取消衣帽间,将凹口移平,原衣帽间纳入小房间里面,门洞上移至与主卫齐平,保证卧室门开启刚好能顶到衣帽间上面 4、主卧床尾5m长的到顶书桌一体柜,充分利用空间加强全屋高级感




设计亮点
客厅吊顶以简约设计为主,回字形吊顶、里面镂空嵌入灯带、搭配四周筒灯,中间吸顶灯,不同灯光带来的不同灯光效果。电视背景墙长达4111,满墙护墙板,底部全包定制柜+侧边竖柜,增加展示空间。其余墙面铺贴奶咖色墙布,雾面带微闪效果,3m长的橄榄配色皮质沙发内敛温柔,地面通铺灰色系大板砖,同色系的空间更显舒适温馨。




设计亮点
餐厅设计吊顶与阳台相似,中间风扇吊灯,满墙餐边柜与阳台连接一起做嵌入式洗衣机,深木色柜身+奶咖色柜面,搭配黑玻展示柜面,里面嵌入灯带,营造朦胧感。可折叠岩板圆桌,平时靠墙摆放,减少中间占地面积。



设计亮点
厨房吊轨推拉门减少卫生清理难度,里面做U型布局,窗台这边安装大单槽,分体式灶台油烟机+蒸烤箱,加强空间利用,简洁明了的空间配色,真正做到了方便、耐看好打理的厨房设计。




设计亮点
主卧主打银灰色+橙色,用灰蓝色做点缀,构建知性优雅的气息,适当亮色点缀能让人心情舒缓,进而带来更好的休息感受。床尾设计到顶一体柜,12方的定制柜备足充分的储物空间。


设计亮点
男孩房设计以简约大气为主,墙面铺贴浅蓝色调的墙布,搭配同为蓝色系的四件套,加强整体感,窗台摆放软垫,合理利用空间,多出休闲时间给孩子放松。



设计亮点
卫生间干湿分离,干区定制墙排浴室柜,造型简约、使用大方,台下盆更符合日常使用需求。通体灰色大理石增添高级质感。
