

装修前
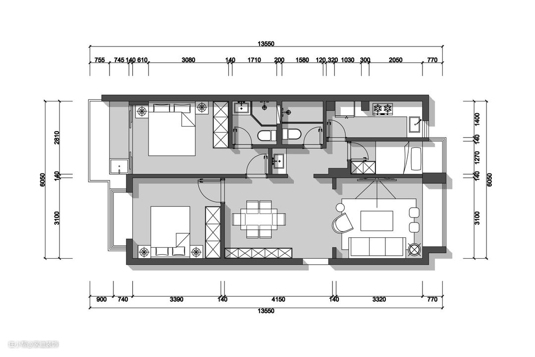
原始户型缺点 Original house type disadvantage 1、老式户型,入户没有玄关,不方便换鞋 2、采光不佳,房子是相对典型的长方形结构,公共区域采光受到一些影响 3、原有厨房空间较大,却没有得到合理的利用 业主需求 The owner needs 1、学区房面积较小,希望空间通透些,不然住起来很压抑 2、公共卫生间希望做干湿分离 3、考虑到后期长辈会来协助照顾孩子,人口多,一个卫生间不够使用 4、两房改三房,孩子目前仍与大人同住一个房间,但需要提前为之后孩子的独立空间做考虑
装修后
户型改动 Family changes 1、将收纳做到极致,让每一寸空间都运用得恰如其分,实现了小房子的储物最大化 2、厨房缩小做封闭式中厨,余下的空间改造为儿童房 3、借用主卧面积进行了合理的改造与优化,增加了一个卫生间,解决了卫生间使用紧张的问题



设计亮点
黑白灰的巧妙搭配直击视觉感受,整个空间设计简约高雅,营造一种干净利落的高端气质。简单的配色贯穿整个空间,使得自然的成为了一个整体。深灰色豆腐块沙发搭配白色大理石纹茶几以及时尚童趣的橘色小马凳,为整个空间带来闲适自由的点缀感,既高雅又耐看。 同一色系家具提升空间整体质感的同时,也奠定了整个空间的统一性,定制的电视墙以简约为设计理念出发,用简单的护墙板+灰玻+岩板设计凸显现代简约,达到以少胜多的效果。

设计亮点
餐厅的色彩搭配采用了简单的黑白灰色调,让整个空间更加干净、清爽和舒适。从玄关餐厅,整墙一体柜设计,视觉延伸感更强,一下子兼有鞋柜+餐边柜+展示区+储物柜的功能,超强收纳!柜门全用无拉手设计,使得整体性更好。

设计亮点
白色橱柜与黑色的电器相契合,简单的颜色搭配出高级的效果。采用白色石英石台面,比起大理石台面更能防渗透,可以防止油醋污渍侵入台面,也方便日常清洁。柜体整体都做无明显拉手设计,上方柜子做门板下盖工艺,下方柜子做45°切角拉手,让整个柜体视更加简约干净。


设计亮点
黑白相间的浴室柜,碰撞出经典时尚,营造安静优雅的视觉感受。双层大抽设计,解决了小户型的收纳难题,小空间也可以干净整洁。简洁舒适的搭配,在明亮自然的采光之下,让生活充满轻松的惬意感。 静谧温柔的灰色大面积铺尘,低调细腻的灰色,更显雅奢,兼备功能与美学,让生活显得更加品质高档。干湿分离的设计,干区和湿区之间互不干扰,能有效提升卫生间的使用率,同时减轻日常清洁打理的压力。



设计亮点
主卧延续了客餐厅一样的黑白灰色系,简约而不简单,精致耐看。顶面也是无主灯的设计,暗藏了灯带,高级感拉满。背景墙做了整面的白色格栅设计,边缘承重柱做了刷黑处理,氛围感不就来了嘛!整个空间采用线条来丰富空间,用不同材质与肌理来赋予整个空间的层次感。

设计亮点
采用灰色瓷砖做墙地通铺,色调统一,让原本狭小的空间,看起来更大更宽敞。洗漱区选用了黑白拼色浴室柜自带灯光的智能镜,冷色系的灯光效果,打造出高级和质感并存的卫生间视觉效果!利用玻璃将淋浴区和马桶区分隔开来,保持了空间的私密感的同时又实现了干湿分离,让小户型每一个区域都能发挥到最极致的作用。



设计亮点
一体式的衣柜,使整体空间显得简洁大方,黑色的床头柜体搭配墨绿色的柜门,加上不同材质和色调的配饰相呼应,整体视觉是十分和谐与统一的,宽大的窗户赋予了极大的采光,想象一下,微风带动窗纱微微拂过脸颊的感觉,是不是会有些许的睡意来临?


设计亮点
虽然房间小,也不能辜负屋主要为孩子建一间卧室的心啊!为了让空间隔开,这是好不容易诞生的迷你卧室~开门即是1.2米单人床,小孩睡觉足够了,小小卧室挤出了榻榻米+衣柜一体式设计,床头的小窗户也不必担心通风光线问题。
