



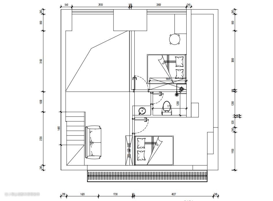
天晴了,一阵微风拂过,路边的黄葛树在盛夏绽放出最翠绿的色彩,来来往往的行人忙忙碌碌……🌿🌿 这套案例位于成都市•成华区•弘创名座,建筑面积68m²,套内面积48m²,层高4.9m,净空有4.75m,房型是一套loft复式公寓形式,长度为8.18m、宽度为6.52m。 🔶🔸🔹🔷 屋主是80后,从事房地产的工作,喜欢现代简约风,一切从简,避免繁冗多余。户型设计上,要求保留三个卧室、一个茶室,长辈房放在一楼;一二楼都要有阳台。根据这些设计想法和需求呢,设计师给出以下几点设计思路: 1️⃣公寓保留三个卧室,建议布局:一楼长辈房、二楼两个卧室,二楼一个卧室靠窗、另一个卧室拥有晾衣服的阳台; 2️⃣公寓采光只有一面窗户,因此整体方案考虑镂空搭建的方式,选择1/4式的房型布局,保留4米多挑空设计,有效增加室内采光和通风效果; 3️⃣公寓楼梯,建议选择比较省空间的7字形楼梯,这样楼梯下方还能做成餐边柜,餐厅放在旁边,让相邻的空间相互衔接,又各自独立; 4️⃣公寓一二楼阳台在同一个位置,面积基本一直,区别在于:一楼是安装了门分隔阳台,有效杜绝厨房的油烟味;二楼是安装了门和帘子分隔阳台,空间通透感更好。





公寓入户设计,往往注重鞋柜的格局,由于面积有限,入户空间巧妙利用变得很重要! 一起来看看这套loft入户空间是如何设计的呢🔻🔻 进门便能看到通顶玄关柜,中间镂空35公分,方便储放日常物品,或者绿植、摆件装饰品等。底部镂空15公分,换鞋穿鞋很便捷,清洁打扫也毫不费力。搭配了氛围灯条,看上去更好看,空间感更明亮。玄关柜门选用简约白门板+黑色拉手,经典色彩设计,雅致又自然~~🏝 可以看到,进门右手边一堵白墙上,设计师设计了全身镜,出门打扮的美美哒,拥有一整天的好心情,很棒~~👍







客厅,设计在镂空区域,拥有4米多的绝佳挑空感,给人带来的视野感辽阔、大气。 值得注意的是,沙发背景墙选用白色乳胶漆涂刷,电视背景墙则选用高光岩板拼接式设计,在不违背整体风格的前提下,节省成本又高端上档次。灯饰上,搭配的是复古式烛台水晶灯,营造出温馨浪漫的氛围感~~✨✨ 客厅保留了全景窗户,保证了室内的良好采光,设计师还贴心地设计了扶手护栏,生活安全性有效提高。飘窗台能改造成简单的休憩空间,闲暇时欣赏窗外的美景,放松身心也不错~~



装修建材
厨房,7字形格局,封闭式厨房设计,一整排的吊柜+地柜,收纳功能十足。整体色调以白色和灰色为主色调,简约干净。墙砖和地砖通铺整个空间,防水做了两遍,保证了很好的防水防潮效果,生活舒适性也更好。



装修建材
一楼卧室,是长辈房,不用上下楼,安全、舒适度更好,起居也更方便。长辈房安排了通顶式推拉门衣柜+一米八大床+飘窗区,这里也安装了扶手护栏,设计细节很到位~~





装修建材
儿童房,设计在2楼里侧,巧妙利用赠送的过道空间,改造成衣物收纳区,放置一米五的床,最里面还拥有独立阳台,功能十分全面。 墙面选用蓝色乳胶漆上墙,与简约白搭配,舒适又自然~~



装修建材
主卧,设计在2楼靠窗位置,通顶式衣柜+一米八大床+飘窗区,功能全面。飘窗这里也安装了扶手护栏,安全系数有保障,全屋的细节设计都是看得到的,很棒👍👍




装修建材
二楼设计了独立的开放式休憩区,可以做书房,也可以做茶室。最里面还拥有赠送空间,同样可以改造成储物柜,将畸零空间有效利用起来,生活舒适性也会更好。







装修建材
一二楼都设计的有卫生间,都是干湿分离得格局,外面浴室柜,里面是淋浴+马桶区,满足基本生活功能。墙砖、瓷砖同样通铺开来,浅灰色+白色设计,简洁又明亮,室内空间素雅、干净。









楼梯是一套公寓成形的关键点,这套选用7字形楼梯连接一二楼,大理石踏步+实木玻璃扶手+梯下餐边柜,简约大气又实用。踏步长80cm、宽23cm、高19.6cm,这个是根据常住人口身高设计的,上下楼梯会更舒适。



装修建材
一楼阳台,放置了洗衣台、洗衣机,可以满足日常洗衣晾晒,采光通风效果还很好~~
