
装修前
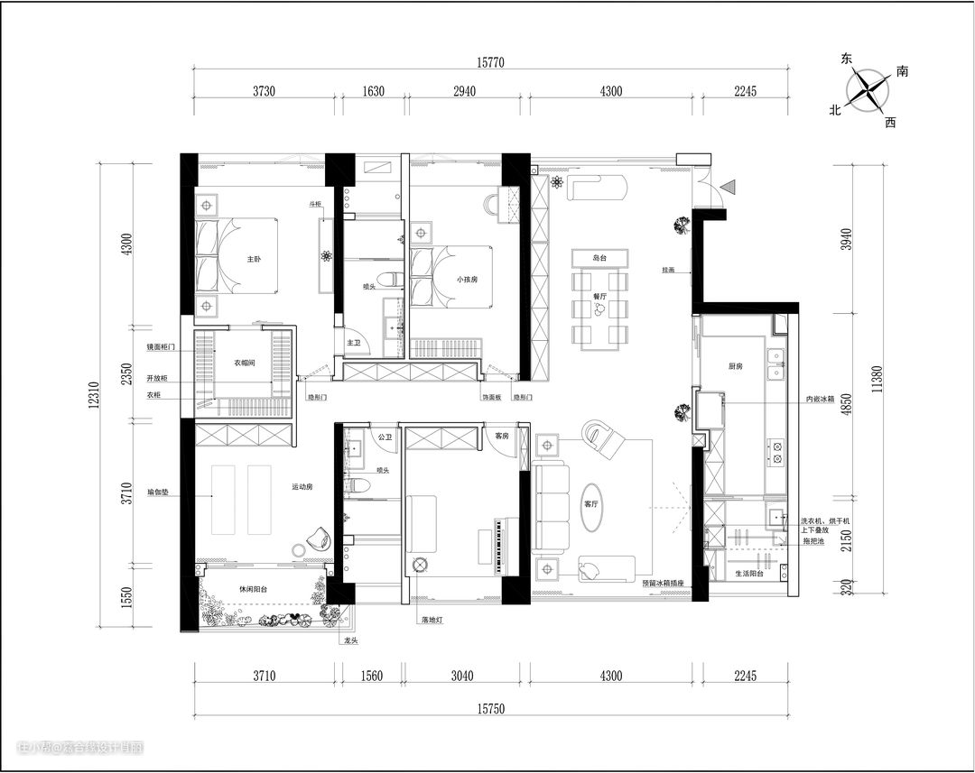
📌业主夫妇都极度爱干净,喜欢极简主义🤍 📌客厅原先采用空间隔断,空间分割不合理❎ 📌厨房杂乱不堪,空间小以及规划不合理❎ 📌原先颜色鲜艳不适合睡眠居住环境💆♀️ 储物空间也严重不足⚙️ 📌女主人爱好运动瑜伽与普拉提👩 希望有一间单独的运动房🧘 📌客人留宿较少,家人居家生活活动居多👨👩👧 想将次卧变为多功能房👀
装修后
⚪️本案设计采用极简和北欧相结合🌿 打造一净到底极简主义环境🤍 ⚪️取消餐厅与客厅的隔断🚫 客厅餐厅玄关打通更显通透💎 ⚪️用简单利落的线条搭配素色软装🕰 扩大厨房空间的视觉效果🍳 ⚪️卧室搭配素色乳胶漆🏷 简化家具并增加储物空间🛏 ⚪️运动房连接了阳台加落地窗的设计🪟 可以边运动边看风景🧘 ⚪️次卧改造成多功能房间🎡 集办公💻/会客👥/休闲娱乐🎤于一体






设计亮点
取消餐厅与客厅的隔断,客厅餐厅玄关通透到底,餐厅大面积的奶咖白储藏柜背景,希望能给空间居住者带来敞开大气的空间感受又有强大的储物空间。绿植斑驳的影子,给客厅带来浑然天成的艺术美感。
软装搭配
极简主义者的挚爱搭配:素雅奶咖白,一净到底,犹如闯进琉璃白瓦,一尘不染的瑶台仙境。细节干净整洁,暖调灯光,让空旷清朗的空间多一丝温馨与浪漫。

设计亮点
餐厅设计简单却富有层次,色彩统一不乏味,暖色原木餐桌椅,让素雅的空间,增添几分来自大自然的温馨感。
软装搭配
餐厅软装吊灯形状不一的白色外表搭配暖色灯光以及木质支撑,与餐桌椅木色相呼应,为空间增加大自然的气息。



设计亮点
与自然呼应的则是简单利落的线条,厨房内暖白色简洁的烤漆饰面板、拉丝不锈哑钢,搭配餐厅的木色餐桌椅与黑铜色椅脚,保持了沉稳的气质感。



设计亮点
搭配素色乳胶漆,除了床褥、衣柜、梳妆柜等必需家具,再无其他装饰,甚至干净得连一副装饰画都没有。绿色的花与豆沙绿的床互相呼应,营造出舒缓、清雅的氛围,给人夜夜好梦。极度的简洁,灰与暖白的世界,不惹一丝尘埃。


设计亮点
女儿房间的设计同样彰显高洁与优雅。一束雏菊,寄托了父母对女儿的希望与祝福。

设计亮点
女主人平时喜欢做瑜伽和普拉提,我们特意设计一间运动室。连接阳台,做了落地窗的设计,让主人可以边运动,边看着窗外的自然景色,更加的放松身心,享受生活。


设计亮点
次卧改造成多功能房间,增加空间的多样功能性。既可以办公,又可以接待客人,同时也是孩子的钢琴房。简洁清丽,配色暖中带一点蓝色点缀,温和护眼。

设计亮点
墙和地砖的色调统一让空间显得开敞;小小绿植,打破灰白空间的单调之感,同时带来一丝生气。
