

装修前
本案是一套来自长沙御香山的150㎡四室两厅一厨两卫,业主为一对即将要订婚的小情侣,未来也会将生宝宝的计划提升日程,对于他们来说,家的意义便是相互温暖、治愈的开始,二人在同一家新媒体公司工作,生活需要仪式感,日常忙碌的同时,女业主对美食也有一番研究,因为喜爱美食的他们,私下里有经营自己的美食账号,也称得上是一枚百万博主啦~所以可想而知,对美食热爱的人对生活的热爱也不会少,在整体的风格上咱们设计师采取了日式极简风格,材质上主要选用了极具包容性的原木,倾心为他们打造了一个有质感、有功能、有颜值的家;用淳朴自然的色调,造一个慵懒治愈的家,享一份慢调惬意的生活!
装修后
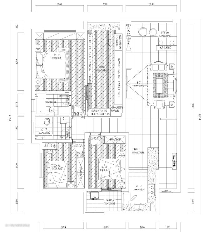
原始户型图: 整屋空间较为周正,原始户型的动静分区也比较的明确,只需在采光和通风问题上多费点功夫了: 1、布局相对合理,坐北朝南的地理位置佳,但入户玄关门厅处的采光通风不够,如遇到下雨天的鞋物打湿后容易发霉潮湿;入户见厅,私密性也不够到位。 2、应业主日常生活所需,厨房是使用率较高的区域,所以收纳空间不足,不利于日常操作,采光通风方面也不够。 3、日常工作需求,男业主需要一个书房,女业主也需要一个光线好的梳妆台,主卧空间不足无法同时满足这二者需求。 4、父母节假日会过来一起聚聚,平时还有亲朋好友,所以需要改造一间客房区域,以满足业主的需求。 平面布置图: 1、客厅阳台纳入室内做开放式处理,大片的落地窗设计将采光功能拉满,玄关处到顶式的立柜用作收纳,上可密封下可通风,二者兼备,加入LED灯带,护眼节能又能满足采光。 2、餐厨一体,整屋公共空间LDK式设计,形成洄游动线,避免空间浪费,最大化的扩大整屋自由活动空间。 3、小书房改造成多功能房,集储物、梳妆、办公于一体,采用半推式落地窗,不占用室内面积,更加利于隔音、采光和通风,营造一个更加舒适的使用感受。





设计亮点
公共区域采用时下最流行的----大横厅LDK一体式布局,空间利用率大大提高,无论是从采光通风方面还是活动空间方面都是“无敌”的~纯粹的奶白加上治愈的原木,构筑眼前眼前这副岁月静好的光景;整屋无主灯设计,视觉效果更为温馨,让采光无死角,沙发和懒人椅呈一字排开,让人忍不住想沉陷这个家中~
软装搭配
奶白色的一字型布艺沙发搭配充满活力的抱枕,巧妙的色彩点缀让客厅区域变得生动活泼,将传统的笨重茶几摒弃掉,转换为更为精巧的小圆桌,活动空间更为开阔无磕碰,此时再摆上一束沁人心脾的花,让居家生活也变得浪漫无比,无处不充斥着满满仪式感!质地软糯的米灰色懒人沙发,为客厅增添了一丝趣味和慵懒。



设计亮点
无需繁复的堆砌,也无需刻意的营造,餐厅以自然而然的姿态融入到家中,与客厅温暖的原木地板不同,餐厨区域采用的是灰色哑光的磨砂瓷砖,防渗、不怕脏、防滑度极佳的同时,清洁也十分的便利,让使用者更加游刃有余;同样采用的是橡木桌椅套装,亚克力材质的桌脚,极简格调油然而生,透气的藤椅样式搭配一字型长凳,让简约的空间陈设更加充满韵律和层次,观感上的“轻”与“重”,色彩上的“深”与“浅”;成就了餐厅区域柔和清爽的腔调~餐厅背面的到顶式立柜顶天立地,2m双开门大冰箱也巧妙的嵌入进来,中间挖空处理,为屋主提供了更多的收纳摆放空间。
软装搭配
岛台+餐桌的形式,从厨房石英石台面延申出来的原木桌面,功能使用上更加丰富的同时,边角处也特地采用圆润的包边处理,避免日常活动中造成磕碰受伤,安全性能大大增加的同时也让整个空间更加人性化和贴心;依旧是未采用主灯,筒灯的采用搭配大片透明窗,纳入1.6m宽尺阳台,延申视觉,开阔大气的同时,日常通风采光不在话下,与客厅相互辉映,达到真正的南北通透!


设计亮点
岛台+餐桌的形式,从厨房石英石台面延申出来的原木桌面,功能使用上更加丰富的同时,边角处也特地采用圆润的包边处理,避免日常活动中造成磕碰受伤,安全性能大大增加的同时也让整个空间更加人性化和贴心;依旧是未采用主灯,筒灯的采用搭配大片透明窗,纳入1.6m宽尺阳台,延申视觉,开阔大气的同时,日常通风采光不在话下,与客厅相互辉映,达到真正的南北通透!


设计亮点
主卧延续整体风格,纯粹的白色作为主基调,奶咖色皮质软包的光泽,烘托出大气不失格调的休憩空间,在这样静谧舒适的独处空间里,一抹绿植更显生机勃勃,白色纱幔搭配奶咖色的温柔布艺帘,整面落地床的采光更是拉满,搭配简易梳妆台,实用和美观二者兼备,床头柜采用悬空抽屉式,卫生无死角,向右延申,干净利落的LED壁灯,护眼的同时也烘托出层次分明的安睡氛围。
软装搭配
L型步入式衣帽间的设计,给人一种“隔而不断”的视觉感受,与墙面融入一体,为业主打造一个独立的收纳空间,丰富整个空间机能的同时,也完全不影响活动,奶咖色的运用,给人清新细致的感受,防眩筒灯作为此处的主要光源,隐形柜门更富有未来科技感,一侧暗格摆放盎然绿植,让整个空间都变得灵动惬意起来。

设计亮点
卫生间通铺白色哑光LED瓷砖,防潮防湿的同时也能更好的打理,明朗、澄澈的色调让洗漱时光也能变得十分美好;台盆柜采用统一和谐的奶咖色系,悬空处理,收纳空间充足的同时,底部形成一个强大的通风口,防潮防湿、也能较好的防止细菌的滋生,让卫生无死角,洗漱区、如厕区、淋浴区呈一字型规整排开,其更有效的避免动线的交叉,实现更为流畅的日常活动轨迹,淋浴区墙面的壁龛处理,满足收纳的同时也能彰显出一丝格调,百叶窗的加入也让此区域更是增添了高级感,日常让光线均匀撒入的同时也能从多种角度调节卫生间光线的明暗程度,通铺的450*450mm彩点仿古砖更是为此空间注入温度和灵魂~
