
装修前
设计理念:这是一套现代轻奢风格的装修案例。设计师深入了解业主一家的喜好与日常景况,整体基调定位为轻奢优雅的【灰白色系】,空间在灰色的底色中加入温润的软装元素,构建起冷暖平衡的空间韵律,再加上材质和灯光的运用凸显,使整个布局的质感与舒适度得到结合,提升一个层次,舒适性与高颜值兼具。
装修后
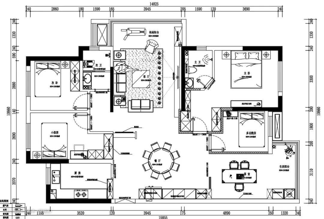
▲ 平面布局图: 1.入户巧用屏风作为隔断,客厅打通阳台,扩充室内空间,客餐厅一体化布局; 2.休息区呈包围结构,将公区环绕于中间,合理规划家居动线; 3.将原始大次卧联通小阳台,改造为开放式茶室,增加生活功能性;



设计亮点
▲ 入户左手侧定制鞋柜,鞋柜中部和底部留空,留有呼吸空间,方便放置包包与鞋子,留空区域安装嵌入式感应灯带,进行局部照明。
软装搭配
▲ 玄关望向客厅,巧设长虹玻璃屏风作为隔断,穿插的端景台面以绿植点缀装饰,保证空间的独立和通透,呈现若隐若现的美感。



设计亮点
▲ 原始厨房内推,扩充餐厅场域功能,通铺高级灰大理石地砖,天然的纹理设计自带高端属性,金属点缀的吊灯,让空间高级感满满。
软装搭配
▲ 大理石纹岩板餐桌,可容纳八人位的围绕布局,水晶质感的球形镂空主灯,璀璨富有轻奢格调,轻松满足三代同堂的就餐需求。







设计亮点
▲ 客厅,现代高级灰的理性质感,与纯粹的整体色调搭配,搭配上精致的金属质感、细致优雅的软装布置,呈现出一个低调的华丽空间。客厅打通阳台,带来宽阔明亮的视野,空间布局上干净简洁,通过暖色调的灯光烘托,把灰色调的空间营造出一个稳重优雅的氛围感。
软装搭配
▲ 选择橙红色拐角沙发,优雅的转角设计,拉扯出沙发的线条感,防污防水性能的科技布材质,解放空间的束缚,赋予自然灵动的魅力。电视背景墙采用整块岩板铺陈,底部搭配超长地台设计,一侧衔接通顶开放格+储物柜,收纳展示两不误,还能丰富柜体的层次感。

设计亮点
▲ 原次卧改为开放式茶室空间,茶台背靠墙面布置,摒弃华丽的点缀设计,纳入小阳台面积,整面的落地窗占据采光优势。
软装搭配
▲ 一张岩板方桌搭配单椅长凳,简约大气,阳台一端嵌入洗衣、烘干机,利用结构设计壁龛置物,作为多功能生活空间使用。

设计亮点
▲ 女儿房设计,背景墙与床品都是统一的粉嫩色调,部分粉色格栅作为背景装饰,点缀一盏星星壁灯,营造出梦幻而温馨的氛围。
软装搭配
▲ 通过精美的软装进行搭配,浅浅的粉色搭配柔和暖白,为房间增加一些活泼与梦幻。



设计亮点
▲ 主卧,遵循灰白色调的规律搭配,一抹墨绿色点缀出复古气息,干练的空间没有任何多余的装饰,更显空间的开阔和利落。
软装搭配
▲ 太空灰背景墙+浅灰色床头搭配,沉稳高级,局部细节处,辅以零星金属饰品点缀,轻奢中又透露着些许调皮与灵动。
