
走进这个客厅,你仿佛可以感受到空间的流畅与和谐。原本的阳台被纳入了客厅,使得整个空间更加宽敞明亮。客厅与餐厅之间的界限变得模糊,形成了一个开放式的空间布局。真皮的沙发摆放在一旁,背面是餐厅空间。电视墙一侧,白色的电视墙和吊顶整体连接,形成了一个整体感十足的空间。

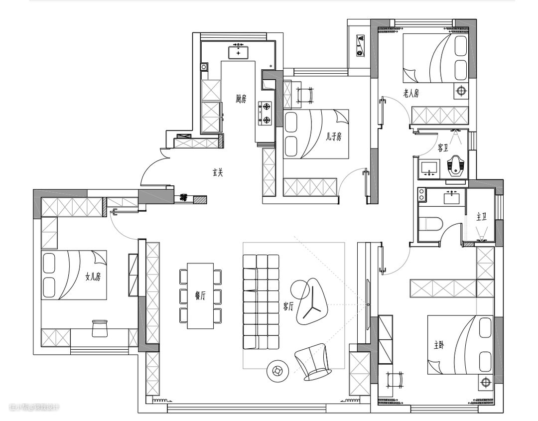
客户需求: 1、夫妻二人加一个7岁的女儿和2岁的儿子。 2、需要保留一个客房的空间。 3、厨房面积比较小,想要扩大一下。 4、空间的储物需求要多,喜欢看书。 5、主卧需要有衣帽间 入户的空间比较小,厨房的面积比较小。

平面改造: 1、拆除了原有玄关的隔墙,将入户的玄关空间扩大。 2、拆除了厨房到生活阳台的隔墙,将生活阳台纳入厨房空间使用,以扩展厨房的使用空间。 3、阳台的视野比较好,将客厅阳台的空间纳入了客厅使用, 4、调整了原有布局的规划,将入户旁白的客房改为了女儿房使用,同时拆除了原有卧室的飘窗,增加了实际的使用空间。 5、小儿子的房间原有的飘窗也做了拆除,这样可以更加合理的利用空间。
客厅选用海信激光电视100L8K,该款电视机不管是正面还是侧面看,光色不变,层次感十分丰富,立体也十分逼真,电视机四面发声,澎湃的音浪可以给客厅空间营造很强的观影感受。阳台区域被巧妙地设计成了家政空间,使得整个客厅的功能更加多样化。#海信视像尽显美好生活-家的100种可能

餐厅整面墙体做成了收纳柜,既增加了储物空间,又使得整个空间看起来更加整洁、统一。西厨柜和收纳柜整体结合,使得整个客餐厅的吊顶做了四分之一弧的造型,将客厅的天花弧形过渡到了墙面。在餐厅靠窗户的角落放置了一个海信移动智慧屏,全能的场景可以实现多样化的需求,智慧屏自带很多运动健身、早教学习的课程,放在阳台的空间既可以将餐厅作为和孩子亲子学习的空间,还可以利用阳台做瑜伽训练等事情。

主卧的设计同样充满了巧妙的心思。床头半高的床头背景板和衣柜整体连接,既增加了储物空间,又使得整个卧室看起来更加整洁、统一。白色的背景墙简约而不简单,给人一种清爽、舒适的感觉。 卧室地面采用原木色木地板,增加了整个空间的温暖感。床位成品的斗柜可以收纳,使得卧室更加整洁有序。天花上还预留了投影仪的空间,使得主卧不仅可以休息,还可以娱乐。

次卧是儿童房空间,靠近窗户一侧。设计师拆除原有的飘窗,巧妙地设计成孩子的写字台,为孩子提供了舒适的学习环境。右侧的储物柜和左侧的写字台整体结合,既美观又实用。飘窗上还放置了一台电脑,显示器选择的是一款海信电竞显示器作为写字台空间的显示器,该产品具有金属感的精致外观,看起来科技感十足,稳定的支架支持升降和旋转,不管是玩游戏,或则是看学习视频上网课都有优异的表现。整个儿童房空间充满了童趣和创意,设计师通过细节的处理,为孩子创造了一个快乐、舒适的成长空间。

厨房的设计功能分区较为明确,墙面采用了水磨石的条纹砖,柜体采用了木纹的颜色,地面沿用了客厅的地砖,整个空间看起来是温馨、简洁、舒适!

卫生间干湿分区比较明确,墙面采用了白色大理石纹理的墙砖,地面采用了素色的地砖,干湿分区让空间使用起来十分舒适,黑色的五金也让空间更加的突出。
