

装修前
设计理念:这是一套现代原木风格的装修案例。本案房屋是Loft格局,设计师主要针对空间功能进行规划与设计,在全屋大面积使用了木质元素,根据业主一人居的需求,客餐厅个性化设计,半开放式厨房和客厅衔接而立,使得传统工艺与时尚潮流相辅相成,为一人独居的小家赋予温馨复古的家居氛围。希望你们会喜欢。
装修后
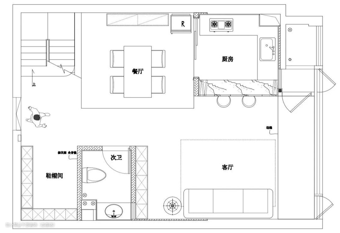
▲ 一层平面布置图:一楼以客餐厅、会客区域为主,客餐厅个性化设计,开拓出临窗小榻和阅书区,半开放式厨房,以早餐吧台和客厅衔接而立,美观与烟火气并存。 二层平面布置图:二楼主要用作休息,打造步入式衣帽间,主卫干区外移,“玻璃盒子”式主卫构造,以可旋转的化妆镜作为隔断。



设计亮点
▲ 入户见餐厅,质感胡桃木糅合现代与复古,在布局空间的时候采取楼梯式的设计,草帽吊灯与铁艺围栏交织,让空间显得更加灵动有趣。
软装搭配
▲ 布置复古木纹的餐桌椅,木色餐边柜靠墙搭配长虹玻璃隔板,中部留空满足小家电的使用,明暗交错下,承载收纳有序。


设计亮点
▲ 餐厅横向方位,即为半开放式厨房设计,以早餐吧台联动客餐厅,吧台设计可移动折叠窗,按需开合,趣味实用,尽显随性无拘束。
软装搭配
▲ 隐藏式投影幕布巧置于吧台上方,放下时满足大屏观影需求,收起时也不会阻碍早餐吧台,内部为小型厨房,“麻雀”虽小,“五脏”俱全。


设计亮点
▲ 客厅简单大方,去茶几化布置,卡其白双拼沙发靠墙摆放,提高空间利用率,一边休闲一边阅读,阳台纳入室内,采光和视野更加通透。
软装搭配
▲ 沙发一侧,做到顶的木质开放格书架,摆满了屋主珍藏的书籍、手办,背景以长虹玻璃隔断,为次卫空间引入采光,改善暗卫环境。

设计亮点
▲ 阶梯向上蜿蜒入二楼,铁艺实心小柱+红橡实木扶手设计,智能感应踏步灯保障夜晚安全性,搭配射灯、筒灯营造多层次光源。



设计亮点
▲ 靠栏杆处空间规划成书房,定制实木悬浮书桌,与轻巧的软椅相搭配,装上遮光效果好的窗帘,打造了一片属于自己的办公空间。
软装搭配
▲ 书桌上下预留出插座位置,侧面做壁龛置物架设计,发挥出收纳和展示的作用,与墙漆同色拉伸空间感,勾勒空间品质细节。



设计亮点
▲ 主卧,简雅留白与沉稳木色相搭配,全景落地窗视野采光俱佳,光影将空间分解消融,更多一丝自然随性和浪漫之美。
软装搭配
▲ 床尾,与主卫半打通设计,紧靠隔墙规划梳妆储物功能区,Z字形成品柜复古气息拉满,多抽屉式+黄铜拉手点缀,突出空间层次感。


设计亮点
▲ 主卫干区外移,可旋转的椭圆立镜既是隔断,也方便屋主人在两侧自由使用。
软装搭配
▲ 借助主卧阳台采光,打破暗卫弊端,洗漱台+浴室柜+洗烘区一体,木色与白色交融,最大化提高生活的舒适度。
