

装修前
设计理念:这是一套现代风格的装修案例。以黑白灰为主基调缓缓展开,意在打造一个大气高级的质感空间。横厅设计+客餐厅全开放布局,视觉上扩大空间感,连通阳台,有效提升居住体验感。简洁明朗的无主灯布局,丰富照明层次,适配多元化的生活场景。运用现代设计手法使得空间更加清爽利落。希望能给你们带来灵感。
装修后
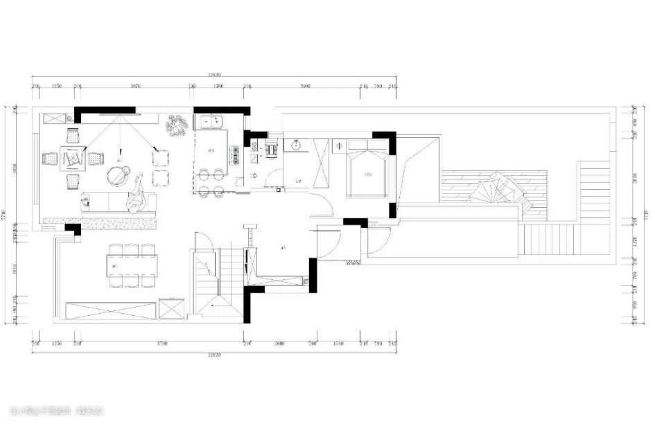
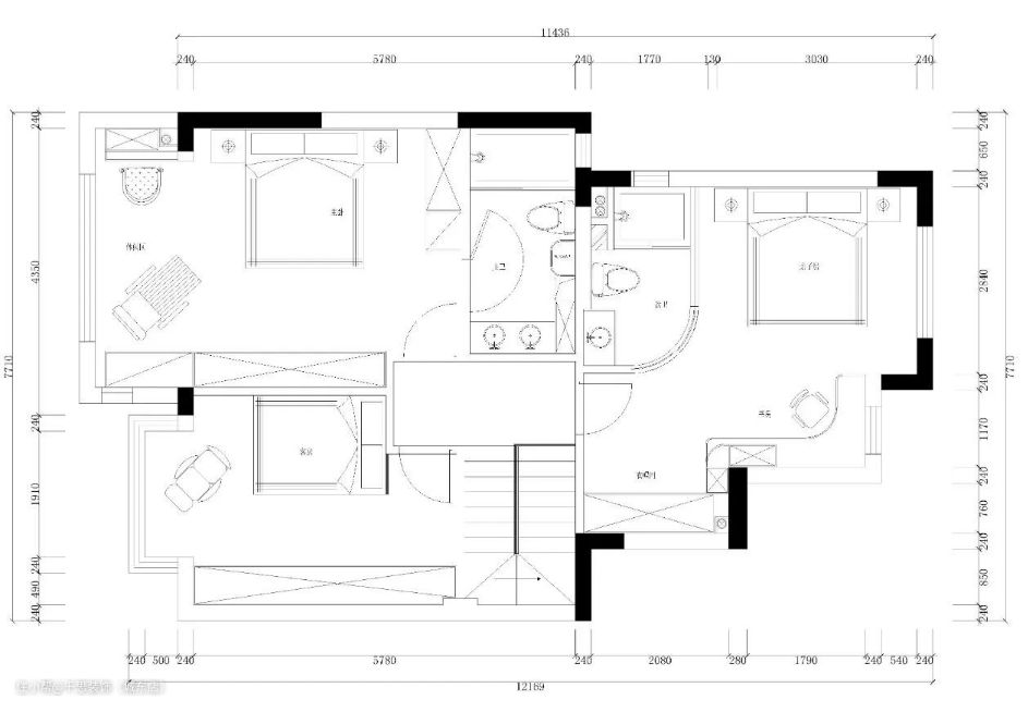
▲ 一楼平面布置图:仅设客餐厨+一间卧室,满足社交、会客主要功能。客餐厅一体+大横厅设计,起到延伸空间的视觉效果。采用7片隐形玻璃移门打造开放式厨房,提升空间交互性。二楼平面布置图:主要用作休息,设三间大卧室。除主次卧以外,另用暗色调和射灯打造炫酷电竞房,满足屋主的个性化体验。



设计亮点
▲ 入户玄关,顶面以交错相织的线灯照明,从墙面延至顶面,营造出明亮温馨的空间氛围,兼具装饰与照明的双重功能,扩大空间感。
软装搭配
▲ 由于原户型,拥有一个开阔独立的玄关区域,整体上使用白色系,视觉上扩大进门视野。地面通过线灯折射出光影斑驳美。定制L型超大体量玄关柜,一柜到顶设计,中部留空处理满足实用功能。旁侧镂空隔断设计,避免入户一览无余,虚实相交,简雅清冷。






设计亮点
▲ 经玄关左转便进入公区。客餐厅一体+大横厅的设计,纳入阳台后,引入充沛丰裕的自然光。以黑白灰为主要用色,经典永不过时。客餐厅设吧台做功能性隔断,有效利用空间。连通大阳台,形成大横厅格局。整块悬浮吊顶搭配无主灯布局,带来简洁的视觉感受。
软装搭配
▲ 橙灰色系组合的科技布沙发,玲珑小巧,为过道留出富裕的空间来。以超长吧台为背景,线灯交相辉映,营造出柔和的意境和氛围。电视墙极简设计,大面积留白处理,定制悬空电视柜,左侧与到顶高柜衔接。设黑玻展示柜用来展示,美观又额外增加收纳空间。



设计亮点
▲ 从过道看向客餐厅视角。打破传统布局,餐厨并非毗邻而设,别出心裁地把餐厅设置于客厅靠窗位置,为整个空间增加采光和生机。
软装搭配
▲ 外开窗设计,用餐时可全部打开,美食与风景同时拥有,不失为一件人间美事。黑色餐椅组合大理石长桌,构建舒适的用餐环境。靠墙定制一整排餐边柜,预留出足够空间将冰箱内嵌,为厨房减压。封闭柜门+黑玻展示柜组合设计,承担起收纳+装饰的双重功能。



设计亮点
▲ 客厅与厨房毗邻而设,采用7片隐形玻璃移门来打造开放式厨房,有效解决暗室布局的压抑感,营造出一个明亮舒适的烹饪空间。
软装搭配
▲ 进入厨房内部,出口处悬空岛台加入,呈现宽敞的U型布局。大理石纹路的白色墙砖搭配灰色系橱柜,给整个空间增添质感与层次。



设计亮点
▲ 在二楼单独规划出一个独立的空间作为电竞房,主要满足屋主办公、游戏的需要。沿用暗色调搭配朋克灯,带来沉浸式的光影体验。
软装搭配
▲ 背景墙以黑色+米色进行分墙设计,丰富空间层次与质感。自带卫浴空间,并以玻璃隔断,壁龛设计不显突兀,使整体品质得到提升。床头利用立面规划出小型书房。不规则的弧形设计+开放式隔板书架,最大限度地利用空间。顶面“神秘”灯光渲染下,打造炫酷格调。




设计亮点
▲ 次卧设计清新而亮丽,背景墙以牛油果绿乳胶漆全面铺刷,营造舒适明媚的空间氛围。将阳台包裹进来后,横梁以淡奶绿进行过渡。
软装搭配
▲ 床头两侧皆安装创意个性小吊灯,搭配同款灰色床头柜,形成对称设计。不同于公区的沉稳安谧,主卧更注重营造适宜的睡眠环境,米白色沙发点缀阳台一角,为屋主提供一个惬意慵懒的冥想空间。床侧和床对面均定制摩卡清灰的到顶衣柜,色彩温柔,氛围美好。


设计亮点
▲ 主卫,钢琴键图案衔接黑调与灰调墙砖,为清冷的空间注入灵动之美。马桶上方安装挂壁式小型洗衣机,小尺寸设计对小空间十分友好。
软装搭配
▲ 地面铺设黑白棋盘格地砖,清爽耐看。挑选岩板陶瓷台下盆,并与LED智能灯镜组合设计,营造高级大气的卫浴环境,功能性极强。
