设计亮点

现代简约风格的主要设计理念是简洁、舒适,没有多余的装饰,线条简单,室内空间大方。简约风格的设计不是缺乏设计要素,而是一种更高层次的设计境界。
客厅


喜欢简洁干净的黑白灰空间,但是传统的黑白灰会给人一种冰冷感,她希望我们能在软装上能做一些不一样的搭配突显空间的精致氛围。
餐厅


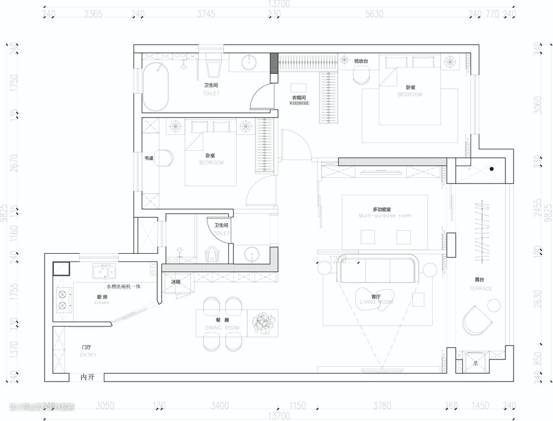
打通厨房、餐厅、生活阳台之间的墙体,采用玻璃移门作为空间分隔,使餐厨空间变得更加通透。 就餐区采用了时下非常流行的中岛台+餐桌的设计,宽敞明亮的环境让这里便成为了一家人的社交中心。
主卧

合理利用空间的属性,最大化空间体验感,色彩不因区域不同而做区分,在同色系里区分明暗,不同灯光组合,增强空间层次。
