设计亮点


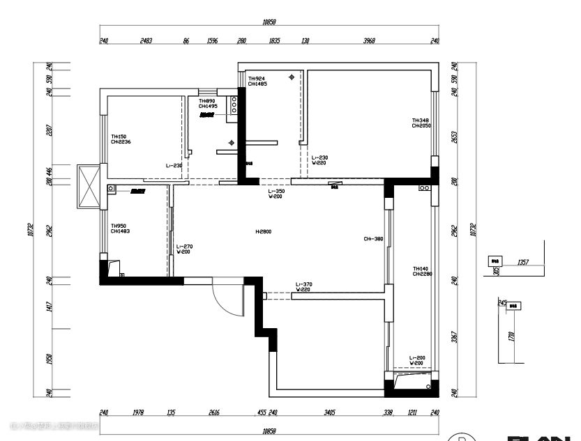
今天分享的案例是89㎡大两室户型,屋主二人性格温暖随和,在风格的要求上希望简单平静又不失精致。 由于房屋面积不大,所以设计师在风格上选择更适合小户型的简约风格来扩大空间整体视觉感。 在后来的交流中,业主觉得现代的简约风格虽然非常的高级,但是缺少了一些生活的氛围,因此,设计师将现代简约风和原木风进行了融合,以柔和的木色和宁静的白色营造出一种清新、自然的治愈力量。
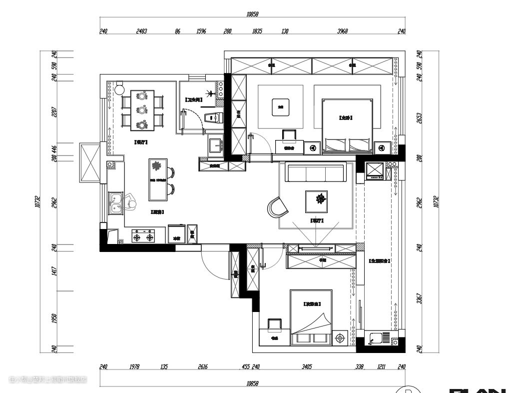
客厅



原木风就是要自然柔和,所以客厅在整体的色彩搭配上,也都是围绕着原木色为主题,偏暖色系的木质家居设计给人带来浓烈的自然气息。无主灯的设计手法能够扩大客厅空间感,大落地窗显得空间更加宽敞且明亮。
餐厅


整体餐厅区域朴素且简约,半开放式与餐厅隔而不断,使得空间更加开阔大气,实现了空间与空间的情感交流,给生活增添一些意趣,餐厅、餐桌椅依然选择原木风,一张原木长方桌+四人位座椅,呈现出自然材质的温润。
厨房


厨房整体延续客厅区域的风格,白色+木纹,就像一层恰到好处的温柔滤镜,让厨房空间变得格外轻盈~ L型的上下柜组合,满足了厨房的储物需求,方便屋主在厨房生活杂物的存放。
主卧


卧室空间原木+米色的结合,空间自然清新充满舒适与简约,布置铁艺的床头桌,一盏奶黄色的床头灯悬挂于床头处,暖色的灯光打在被子上晕染出舒适安逸的氛围感,散发温暖的光源营造出休息空间的静谧感。
卫生间

卫生间原木风的浴室柜清新自然,搭配大理石的白色台面+柜镜,氛围灯源辅助照明,呈现出纯粹的温馨感且具有实用性。
