
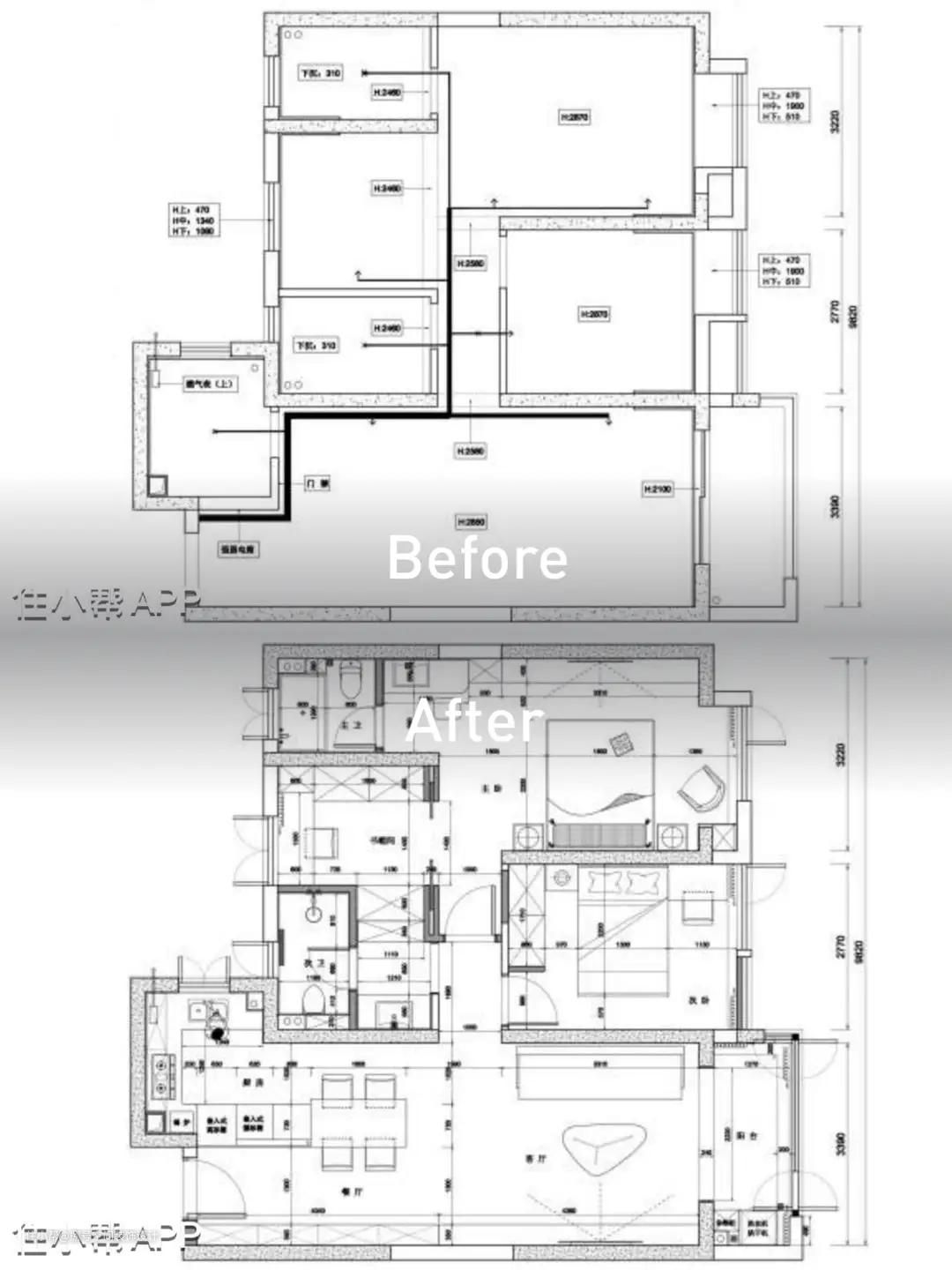
改造重点: 1.拆除客厅阳台移门,与室内保持互通,提升公共区域的采光; 2.打通厨房,做开放式餐厨一体空间,增设岛台,串联起餐厨场域的动线; 3.业主夫妻两人常住,儿子很少回家住,但是需要保留一个卧室; 4.保留两间卧室,另外一个房间纳入主卧室,改造为多功能书帽间,满足更多的生活需求。






设计亮点
公共区域以走廊延伸动线为界,一分为二,一边是用于休闲的客厅,一边是承载一日三餐的餐厨空间。 选用低饱和度的米咖色系,展现出沉稳、静谧又不失高级感的空间情绪。 软皮沙发让靠坐更加舒适,调和客厅氛围,无论是一家人围坐闲谈还是社交待客,营造了一个轻松舒缓,自由度较高的环境。 阳台移门拆除后,增加了客餐厅的采光面,回家后的敞亮感扑面而来。 精心测量沙发到电视的距离,放弃了满墙柜的设计,选用更加简洁的地柜+壁挂电视,大面积的留白让布局更显通透、轻盈。 无主灯在客餐厅两个空间内延续,双列并行的线性轨道灯搭配边吊,视觉上拉伸层高,线条与模块的双重作用下,空间的层西顿钓鱼灯,黑色哑光+三色智能调节,置于沙发一角,补充区域光线的同时,也让客厅拥有了十足的氛围感。



设计亮点
入户左侧是一体化的餐厨场域,以宽度为720mm的岛台延伸出餐台,沿墙柜结构嵌入高矮两个冰箱,同时收获西厨操作台与充足的冷鲜收纳空间。 入户右侧定制长约4m的悬浮柜,玄关柜与餐边柜一体布局,统一的白色无把手柜,视觉上保持高度一致。 玄关柜中部留空,内置感应灯带,功能分区,同时满足进出门小物的随手置放需求。

设计亮点
厨房将隔墙拆除后,实现了开放式,与餐厅动线串联,U型布局实现小空间的最大化利用。 除了上下的橱柜,台面置放收纳篮,解放烹饪操作台,避免瓶瓶罐罐的杂乱堆砌。


设计亮点
主卧配色主打低调与清爽,床头硬包采用同色系拼接,加深层次感。 内凹式吊顶除了顺应和弱化空间结构,也实现了无主灯预埋与隐藏通风口,整体的氛围更显大气、自然,入睡无压力。 软皮床头靠背更加亲肤,顺应季节变换调节触感与温度,单侧床头柜满足基础的床头储物需求。 另一侧留出更多的空间,结合阳台做休闲区,让夫妻二人能够拥有一个专属静心地。


设计亮点
次卧是为3岁的小女孩预备的儿童房,从布局到家具都显得更童趣一些:复古风十足的公主床、粉色窗帘...高度契合小主人的喜好,打造一个让大人和孩子都满意的空间。 衣柜选用了浅灰色亲肤材质,同样采用了无把手的设计,留出过道空间,也避免产生磕碰。 右侧靠窗的床头留出位置,为未来的求学阶段做准备,后期可以置放书桌椅,让孩子也能够拥有自主学习的空间。

设计亮点
次卫面积扩充后做干湿分离设计,洗漱台外移,保留1.2m面宽,台下盆设计以及背后增设的储物柜,让日常洗漱不再拥挤,台面也更加整洁有序。
