
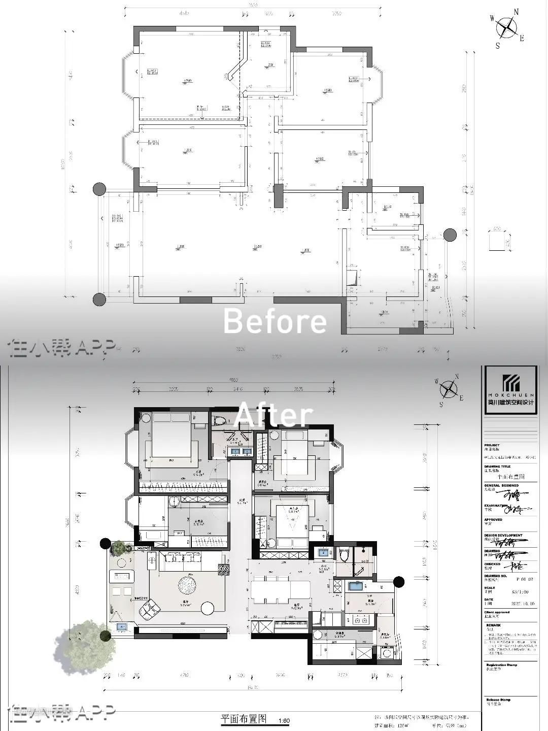
装修前
原始户型&存在问题: 1.厨房的位置,空间比较局促; 2.餐厅区域光线较暗,采光不足; 3.主卧区域,衣帽收纳空间不足; 4.2个阳台功能混乱,不知道怎么合理利用。
装修后
平面布置&问题改造: 1.厨房朝生活阳台,合理布局,充分利用空间; 2.将原厨房与餐厅打通,光线互通,弥补餐厅采光的不足; 3.主卧空间重组利用,功能性整合,增设衣帽储物空间; 4.分双阳台使用,生活与休闲分开,互不干扰。



设计亮点
入户右边是弧形全身镜,业主进出门时可以整理仪容仪表,保持一整天的好心情。左边是嵌入式的玄关柜,业主进出门时可放置钥匙、包包等,精致的空间功能性十足。









设计亮点
1.通透明亮的客厅,融入书墙概念,利于培养家中的2位小朋友,阅读习惯从娃娃时期抓起; 2.嵌入式的储物柜,满足书籍和玩具的收纳,背景是充满了法式韵味的墙纸,丰富了储物空间; 3.另一侧的沙发空间,背景以石膏线条随沙发铺开,纳入宝格丽岩板的材质,同时具备立体感与艺术感; 4.天花吊顶同样以石膏线环绕包裹,搭配鱼骨拼接形式三层木地板,将法式氛围渗透进整个客厅。







设计亮点
1.为解决餐厅采光不足的问题,设计师拆掉了立体墙面,从而增强了用餐空间的通风与采光; 2.岛台延伸至餐桌,包括水吧区,均用了宝格丽岩板,搭配黑白双色餐边柜,材质与灯光的配合,氛围感十足; 3.餐厅一角,钢琴落座于拱门之间,分毫不差的嵌入,这里便是男女主人的音乐舞台。



设计亮点
1.原户型厨房空间局促,将生活阳台纳入厨房,再将保姆房置最内里,使得家政动线更加分明,减少了使用厨房时的窘迫感; 2.空间上以黑白色调为主,使用白色方块小砖拼接分隔凹凸造型的烤漆的柜体,过道由黑白相间马赛克瓷砖通铺,色彩的对比、层次的构造,充满了法式韵味。



设计亮点
吧台采用宝格丽岩板的材质,高端大气中透露着沉稳的格调。连接餐桌,增强了与客餐厅的互动性,功能性十足。




设计亮点
1.主卧设计地台床,地面抬高15公分,然后将地台与床融为一体,降低居室重心,更贴近地面,安全感十足,利于提高业主的睡眠品质; 2.床头背景,由软包与石膏线横竖相连构成,搭配低饱和度的鱼骨拼木地板、形态不一的线条感边几,绿植点缀,营造一个灵动又治愈的居家环境; 3.一整面顶天立地的衣柜,做了几何椭圆形烤漆设计,搭配几扇小灯芯玻璃门,通透又温柔,衣柜上黄铜材质球形小拉手,点缀白色的柜门,勾勒出法式精致美。


设计亮点
1.次卧主要预留给偶尔过来居住的2位老人,综合老人的喜爱,以简约大气的设计手法进行设计; 2.素净的墙面由石膏线条框起,天花保留原始顶不做装饰,进门右侧沿墙造柜,对向窗边摆放可移动的小型书桌,墙上安装小巧实用的隔板置物架,满足日常储物需求,强调了睡眠空间的舒适性。


设计亮点
1.女孩房用浅粉作色彩铺垫,纳入弧形元素,占据衣柜、书桌、床头背景,软包形式搭配可爱兔子造型置于床头,在灯带的照耀下,少女心十足; 2.进门两侧用收纳方式代替白墙,固定的衣橱叠加可移动的衣帽架,梳妆打扮一步到位,给女孩提供了更大的便利性。




设计亮点
1.设计与女孩房同款弧形软包床头,自带灯带为睡前故事提供余裕照明; 2.右侧学习区将大面积的蓝色洞洞板上墙,增加了灵活的储物空间,随着孩子的成长,可做调整; 3.洞洞板对侧整面书柜,满足储物,同时为未来提供无限可能。






设计亮点
1.公卫做三分离设计,地面用木地板、马赛克砖、与防滑大理石交替通铺; 2.燕子花砖上墙,下侧腰线铺贴黑色格子砖,几种色彩拼贴仿佛回到18世纪的法国,让人一见倾心。




设计亮点
1.业主封阳台的想法得以实现,阳台区增高地台,可以看到客厅的一举一动,整个空间更加的通透,将其打造成开放性的休闲空间,可品茶可写作,功能性十足; 2.温润不失质感的地台搭配质感十足的茶几,奶白色的坐垫,纱帘点缀,温馨又惬意。



设计亮点
1.走廊承担起了连接各个空间的桥梁,使得开放性的格局,生活与休闲两不误,功能分区明显但是又不影响互动性; 2.素净的墙面,筒灯提供照明的同时,又营造了氛围感,搭配鱼骨拼接木地板,起到温润而不失质感的效果。
