
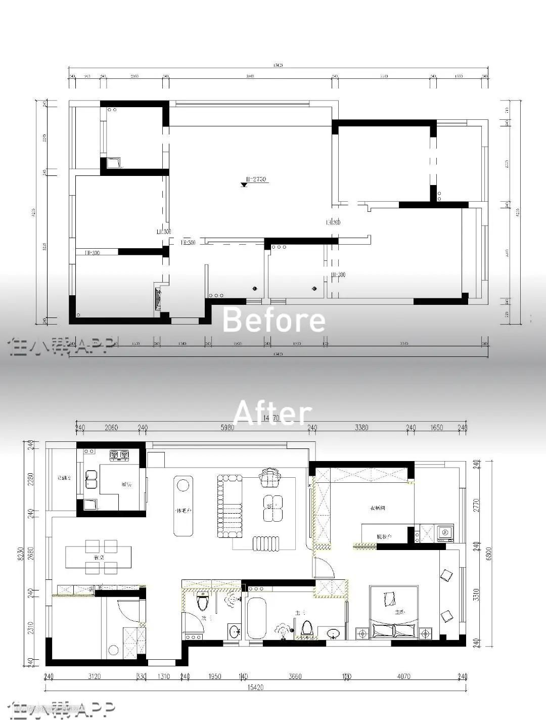
平面设计图 屋主需要的并不是寻常的房子,而是既能邀请三五好友聚会,又能独自享受一切美好的家。 格局改造: 1.四房改两房,从实际需求出发 2.相邻两房合并成套房,带独卫+衣帽间+阳台 3.厨房改成开放式,设备台和西厨延申到客厅 4.一间房改成餐厅,和客厅打通为一体





设计亮点
公共区域打通为一体,充分展现了大横厅的优势。全屋智能覆盖的空间内,舒适度和便捷性共存。 飘窗的地台下口嵌入线性灯带,带来轻盈感,落地大窗仅用纱帘装扮,光影肆无忌惮,衬托的空间加了一层滤镜 围绕意式极简的主题,有力的线条,无主灯吊顶,有质感的软装,无不塑造出客厅纯粹、极致的气质。 电视背景墙、电视柜都是大面积的白色,靠近飘窗的区域做了黑色装饰板,搭配上灯光和不规则的肌理感,墙面瞬间有了质感。

设计亮点
哑光灰和奶油色交织出宁静恬淡的世界,喧嚣繁杂被摒弃在一门之外。 竖线条的格栅玄关柜,让空间更有延伸感,散发灵动的气质,整体设计虽然简洁却让人感觉非常舒适。底部做了悬空设计,方便日常更换鞋子,同时安装灯带,这样整体光线不仅明亮很多,找东西也会变得明亮清晰。



设计亮点
消除墙壁的隔阂, 餐厅也充满了可塑性。2.5m长的黑色餐桌,搭配金属靠背椅,呈现意式的高级感。 设计师为喜爱藏酒的屋主定制了整墙酒柜,内嵌20公分和墙体齐平,实用且好看。


设计亮点
卧室依然以凝练的黑白为主,原木材质弱化大理石的生冷感,悄然释放温馨治愈的气息。放一株绿植,赏心悦目。主卧里安排了卫生间,用黑色玻璃做了外门隔断,既降低了透明度,也增加了安全感,高级风满满。 背景墙做了硬包+格栅的设计,一眼看上去层次感满满又不失设计感。深色系落地皮床,环抱的床头搭配同色床头柜,温暖又显高级。

设计亮点
次卧是备用房,床头做了木饰面半墙,直接做床头使用,性价比高又显温馨感。 床头和床底都内嵌灯带线,见光不见灯,氛围感十足,还可以充当小夜灯,方便晚上起夜。床侧的通顶衣柜,柜门运用玻璃的元素让空间视觉更通透开阔,同时搭配灯光,也显得更有调性。


设计亮点
卫生间推拉门,利用玻璃镜面效果延展空间的纵深感,出门前也可在此处整理仪容。 内部是L型的格局,台盆极简又轻便,搭配异性镜子和灯带,氛围感满满‘淋浴区做了半玻璃隔断,保持空间通透的同时打造干湿分离的效果。

设计亮点
书房的设计比较简单,仿佛繁复感只为能够让使用者更快的静下心来投入到工作中。开放式的陈列架子珍藏美酒or装饰品都很不错的哦
